← Back to Melton Borough Council

Status

Unknown New housing
Received
05 Feb 2025
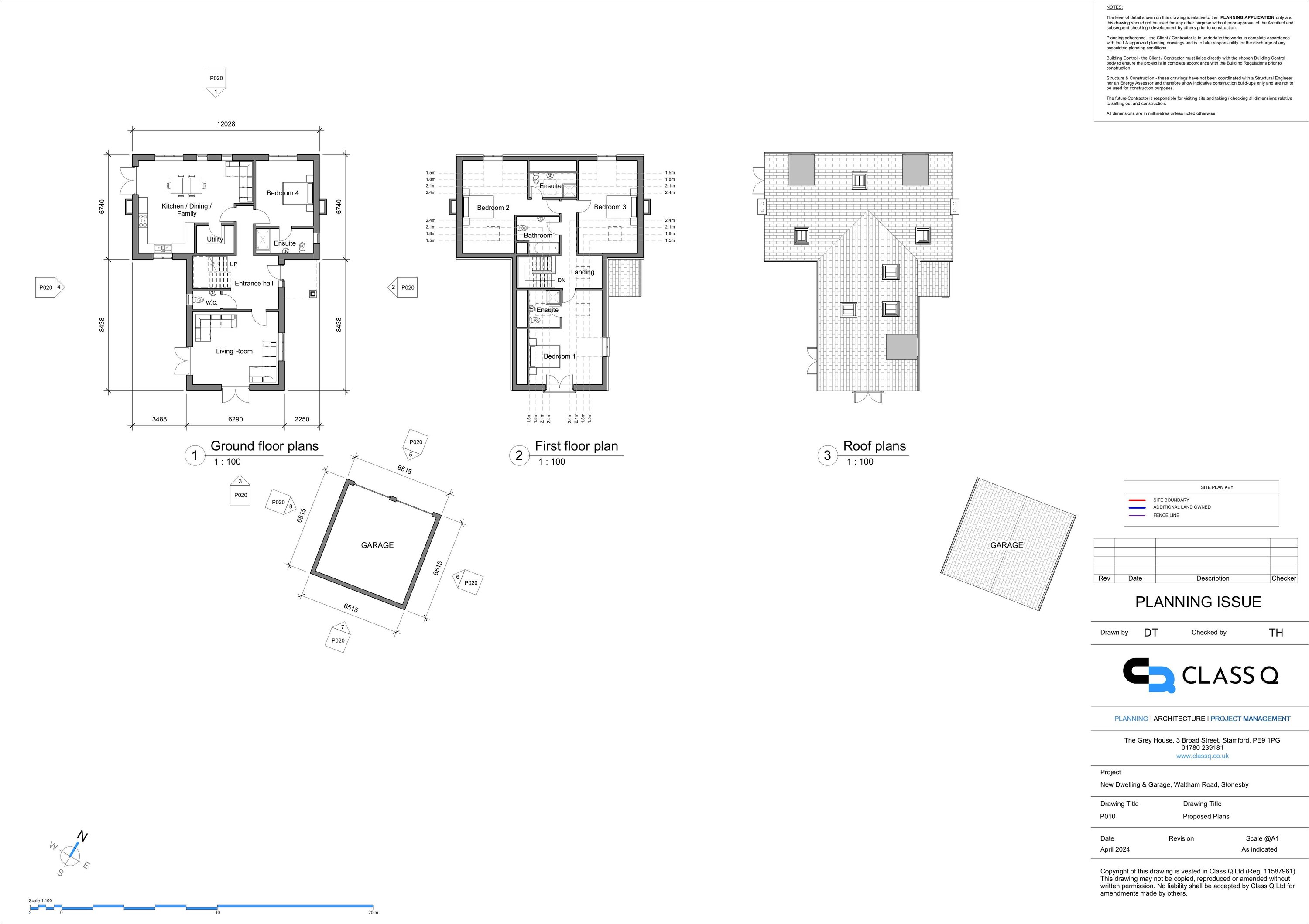
New dwellings
1

Summary

Construction of one dwelling.

Full Proposal

Construction of one dwelling

Documents

Additional - biodiversity net gain assessment 12.01.2026
Application Documents
Not archived · Council Link
Additional - statutory biodiversity metric calculation tool 12.01.2026
Application Documents
Not archived · Council Link
Additional - statutory biodiversity metric condition assessments 12.01.2026
Application Documents
Not archived · Council Link
Additional - statutory biodiversity metric condition assessments 16.12.2025
Application Documents
Not archived · Council Link
Amended - biodiversity net gain assessment 08.12.2025
Application Documents
Not archived · Council Link
Amended - statutory biodiversity metric calculation tool 08.12.2025
Application Documents
Not archived · Council Link
Application form - redacted 05.02.2025
Forms and plans
Not archived · Council Link
Bng assessment
Application Documents
Not archived · Council Link
Bng metric
Application Documents
Not archived · Council Link
Ecological appraisal 05.02.2025
Application Documents
Not archived · Council Link
Ecological assessment
Application Documents
Not archived · Council Link
Ecology comments 25.04.2025
Consultation replies
Not archived · Council Link
Gcn method statement 08.12.2025
Application Documents
Not archived · Council Link
Highways comments received 03.04.2025
Consultation replies
Not archived · Council Link
Housing needs assessment 05.02.2025
Application Documents
Not archived · Council Link
Lcc ecology comments 15.01.26
Please Choose
Not archived · Council Link
Lcc ecology comments 15.12.2025
Consultation replies
Not archived · Council Link
Lcc ecology comments 19.12.2025
Consultation replies
Not archived · Council Link
Parish council 21.03.2025
Consultation replies
Not archived · Council Link
Proposed elevation 6.2.25
Forms and plans
Not archived · Council Link
Forms and plans
Archived · Council Link

Take Action

Make your voice heard. Authorities need to hear from people who support new homes.

✉️ Write Email in Support View on Council Portal