← Back to Melton Borough Council

Status

Unknown New housing
Received
04 Sep 2025
New dwellings
1

Full Proposal

Erect detached single storey dwelling (self-build)

Documents

Additional - arboricultural method statement 07.01.2026
Application Documents
Not archived · Council Link
Additional - pre development report 07.01.2026
Application Documents
Not archived · Council Link
Application form - without personal data 04.09.2025
Forms and plans
Not archived · Council Link
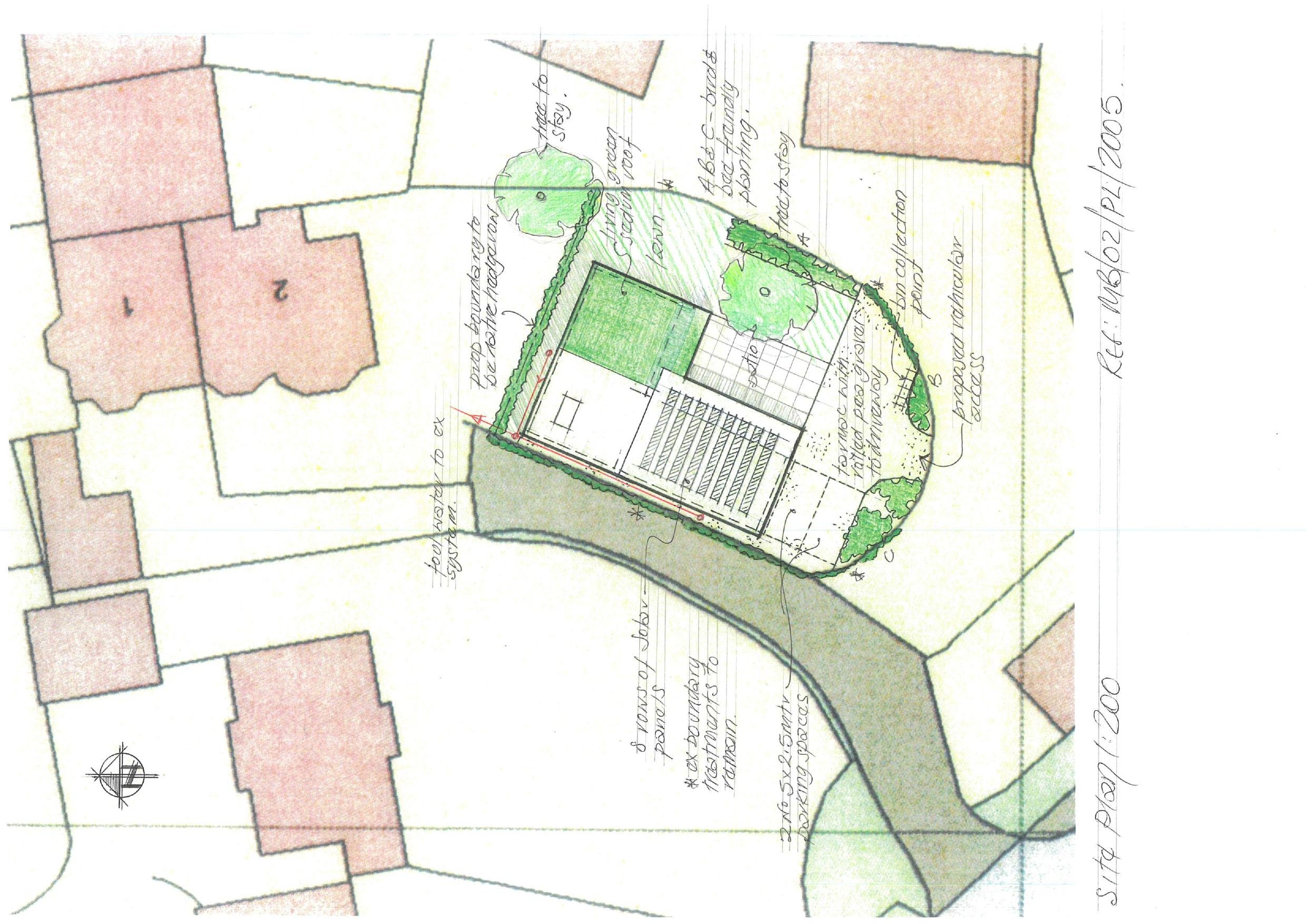
Block plan of the site 04.09.2025
Forms and plans
Not archived · Council Link
Design and access statement 04.09.2025
Application Documents
Not archived · Council Link
Ecology comments 13.10.2025
Consultation replies
Not archived · Council Link
Forestry comments 15.10.2025
Consultation replies
Not archived · Council Link
Lcc environment and transport comments 01.10.2025
Consultation replies
Not archived · Council Link
Lcc forestry comments 27.01.2026
Consultation replies
Not archived · Council Link
Planning drawings 04.09.2025
Forms and plans
Not archived · Council Link
Forms and plans
Archived · Council Link
Forms and plans
Archived · Council Link

Take Action

Make your voice heard. Authorities need to hear from people who support new homes.

✉️ Write Email in Support View on Council Portal