← Back to Melton Borough Council

Status

Unknown Change of use
Received
24 Sep 2025
New dwellings
1

Full Proposal

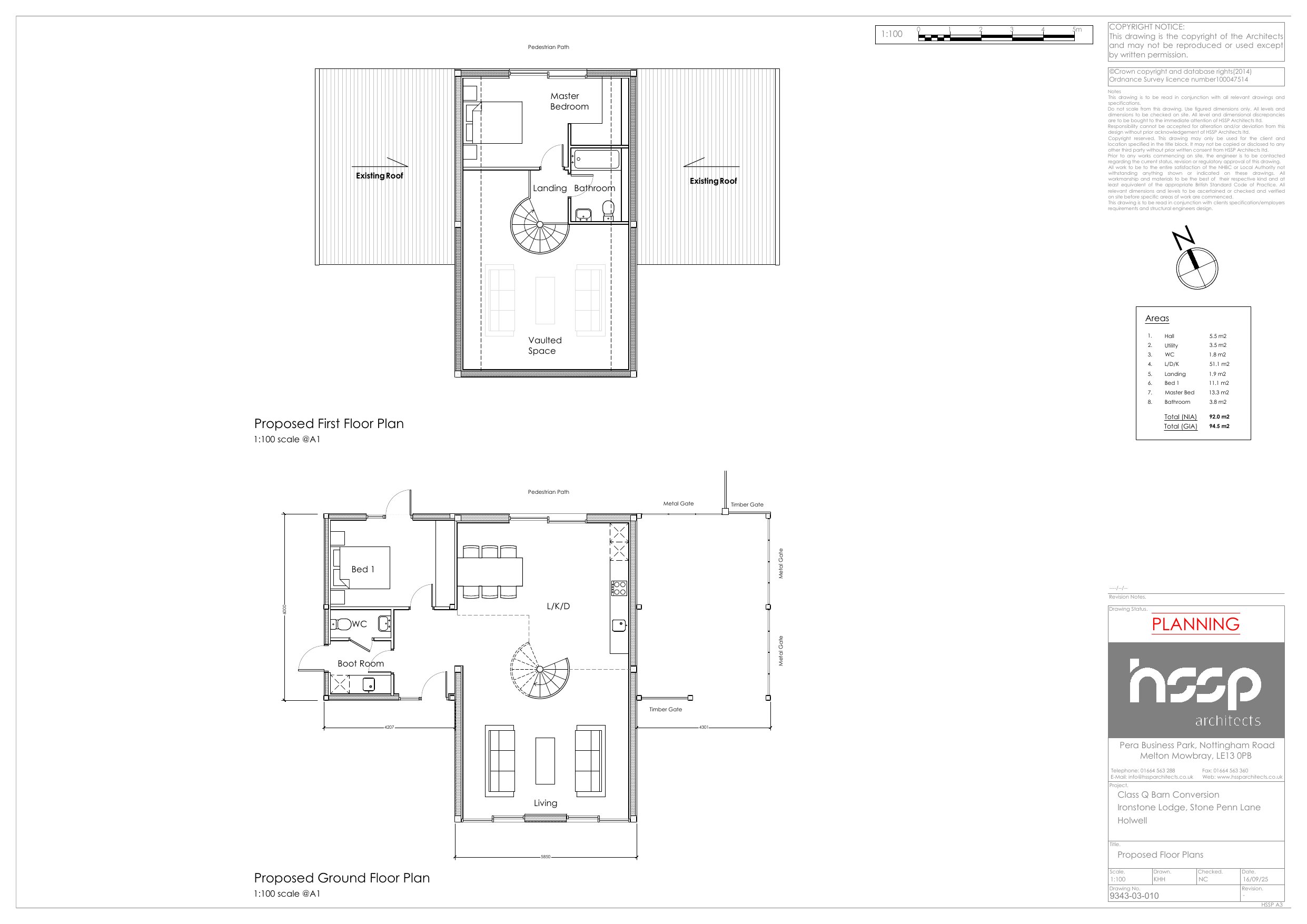
Conversion of an existing agricultural building into a modest 2 bedroom dwelling.

Documents

Application form - without personal data 24.09.2025
Forms and plans
Not archived · Council Link
Decision notice
Decision
Not archived · Council Link
Design and access statement 24.09.2025
Application Documents
Not archived · Council Link
Existing elevations 24.09.2025
Forms and plans
Not archived · Council Link
Existing floor plan 24.09.2025
Forms and plans
Not archived · Council Link
External perspective 24.09.2025
Forms and plans
Not archived · Council Link
Lcc ecology comments 20.10.2025
Consultation replies
Not archived · Council Link
Lcc environment and transport comments 15.10.2025
Consultation replies
Not archived · Council Link
Proposed elevations 24.09.2025
Forms and plans
Not archived · Council Link
Forms and plans
Archived · Council Link
Forms and plans
Archived · Council Link
Report on a structural inspection 24.09.2025
Application Documents
Not archived · Council Link
Forms and plans
Archived · Council Link

Take Action

Make your voice heard. Authorities need to hear from people who support new homes.

✉️ Write Email in Support View on Council Portal