← Back to Mendip District Council (Legacy)

Status

Decided Change of use
Received
19 May 2025
New dwellings
4

Summary

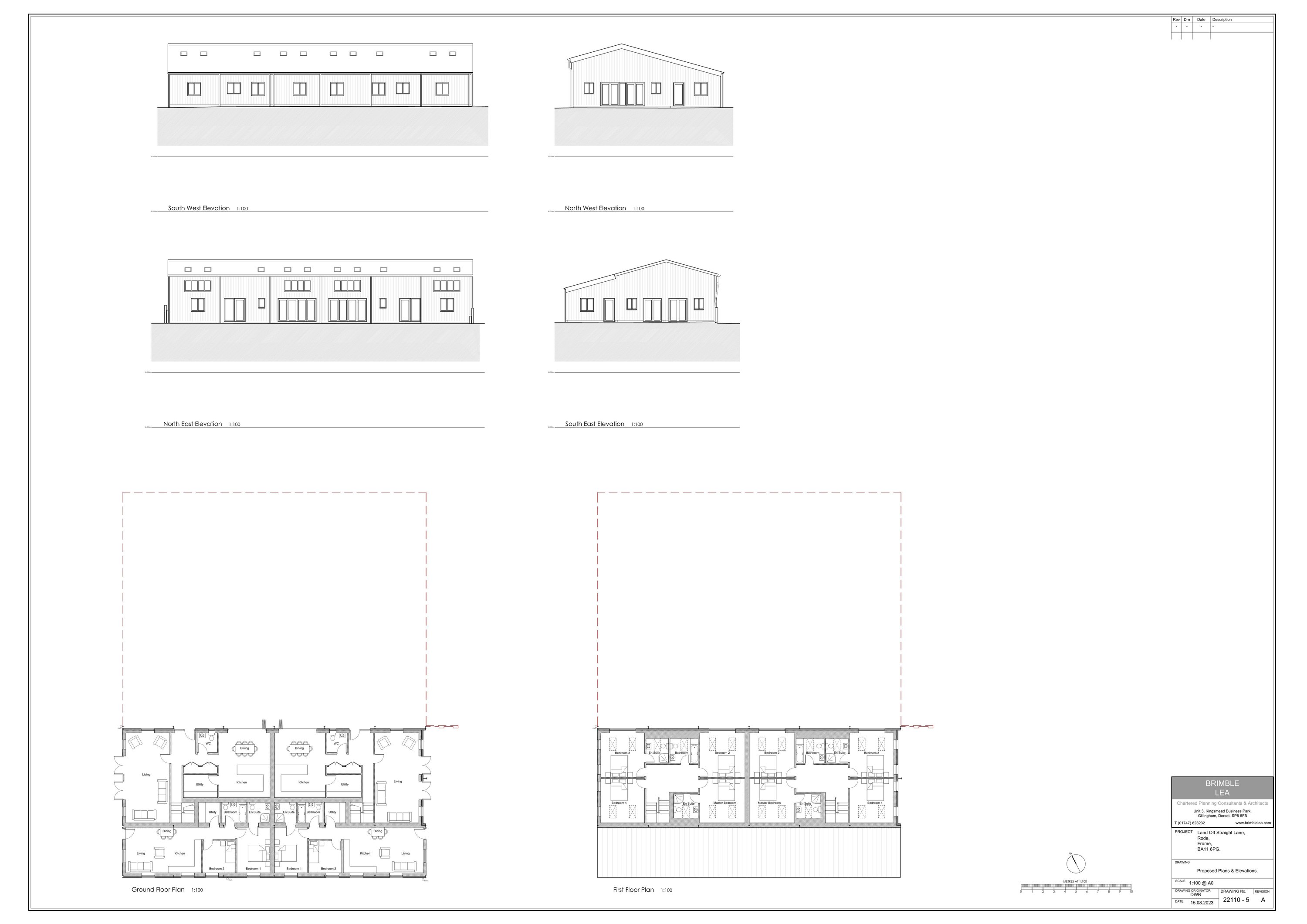
Change of use of two agricultural buildings to four dwellings with associated works (prior approval).

Full Proposal

Prior Approval for a proposed change of use of 2no. agricultural buildings to 4no. dwellinghouses (Class C3) & for associated operational development.

Documents

APPLICATION FORM - WITHOUT PERSONAL DATA
Application Form
Not archived · Council Link
CONLI - CONSULTEE LIST
Neighbour Notification List
Not archived · Council Link
COVERING LETTER
Correspondence
Not archived · Council Link
ECOLOGICAL IMPACT ASSESSMENT MEMO
Report
Not archived · Council Link
EXISTING SITE SURVEY
Drawing
Not archived · Council Link
EXISTING SITE SURVEY
Drawing
Not archived · Council Link
LOCATION PLAN
Drawing
Not archived · Council Link
MR DAVID JUPP-OBJECTS
Public Comment
Not archived · Council Link
MR RICHARD ALLARD - SENIOR ENVIRONMENTAL HEALTH PRACTIONER
Consultee Comment
Not archived · Council Link
MR RICHARD FEATHER-OBJECTS
Public Comment
Not archived · Council Link
MR RICHARD KEITH-HILL ENVIRONMENT AND COMMUNITY PROTECTION
Consultee Comment
Not archived · Council Link
MR RICHARD LIVINGSTONE-OBJECTS
Public Comment
Not archived · Council Link
MRS KATHRYN GREENLEAF-OBJECTS
Public Comment
Not archived · Council Link
PGZPGZ - PRIOR APP GIVEN
Decision
Not archived · Council Link
PLANNING STATEMENT
Report
Not archived · Council Link
Drawing
Archived · Council Link
SOMERSET HIGHWAYS (TO BE CONSIDERED FURTHER)
Consultee Comment
Not archived · Council Link
STANDING ADVICE - SOMERSET HIGHWAYS
Consultee Comment
Not archived · Council Link
STRUCTURAL REPORT
Report
Not archived · Council Link

Take Action

Make your voice heard. Authorities need to hear from people who support new homes.

✉️ Write Email in Support View on Council Portal