← Back to Mendip District Council (Legacy)

Status

Decided New housing
Received
27 May 2025
New dwellings
3

Summary

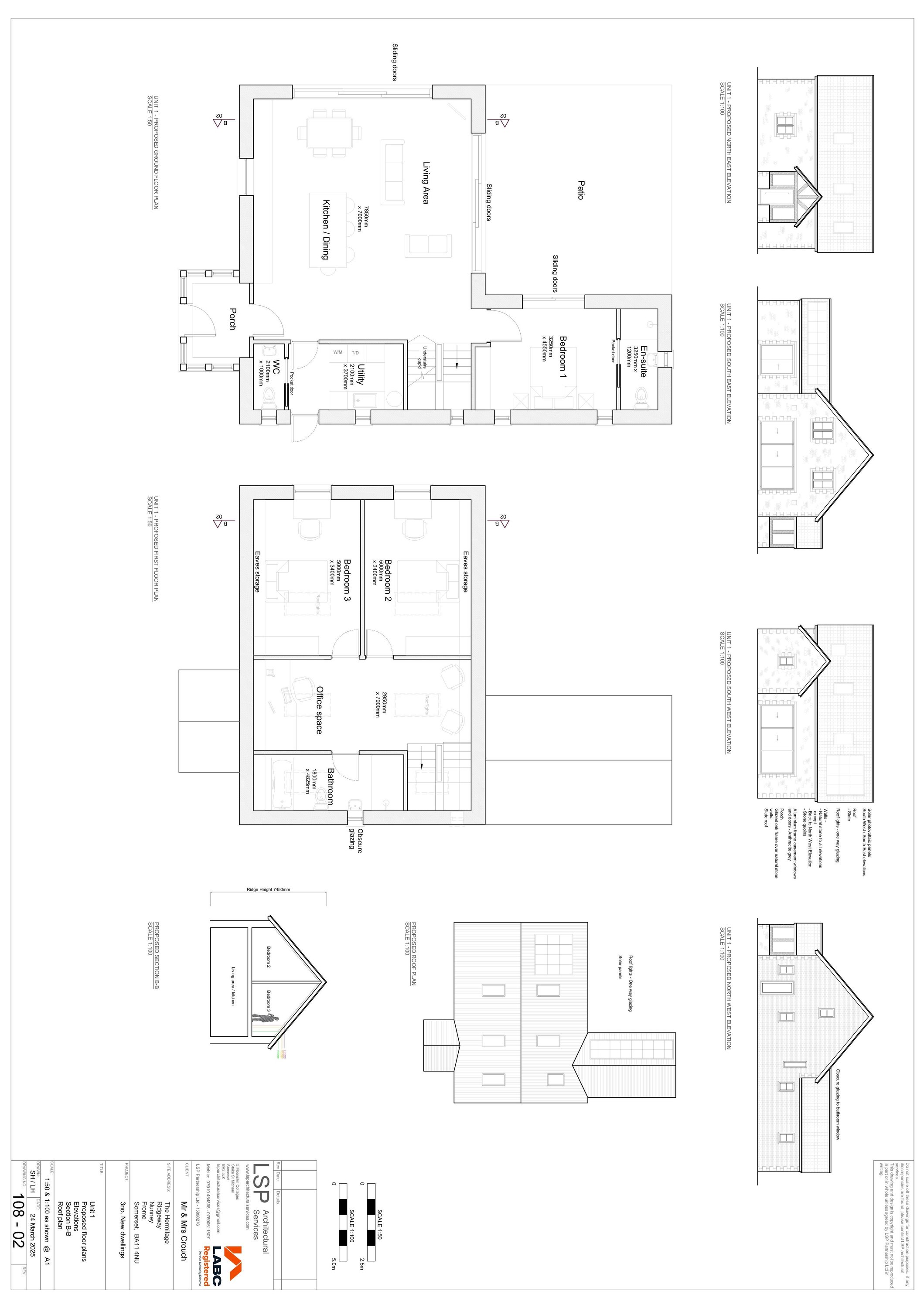
Replace agricultural buildings and erect three dwellings with access, parking and gardens.

Full Proposal

Demolition of existing agricultural building & erection of 1no. dwelling, rebuilding of agricultural building to form 2no. dwellings & associated works to form access, parking & gardens.

Documents

APPLICATION FORM - WITHOUT PERSONAL DATA
Application Form
Not archived · Council Link
APZAPZ - APPROVAL
Decision
Not archived · Council Link
BAT DNA DROPPING ANALYSIS
Report
Not archived · Council Link
BNG METRIC CALCULATION TOOL EXCEL 1 OF 2
Report
Not archived · Council Link
BNG METRIC CALCULATION TOOL EXCEL 2 OF 2
Report
Not archived · Council Link
BNG METRIC CALCULATION TOOL PDF
Report
Not archived · Council Link
BNG STATEMENT
Report
Not archived · Council Link
CONLI - CONSULTEE LIST
Neighbour Notification List
Not archived · Council Link
ECOLOGY
Consultee Comment
Not archived · Council Link
ECOLOGY
Consultee Comment
Not archived · Council Link
EOT AGREED
Correspondence
Not archived · Council Link
EXISTING ELEVATIONS/FLOOR PLAN
Drawing
Not archived · Council Link
EXISTING ELEVATIONS/FLOOR PLAN
Drawing
Not archived · Council Link
Drawing
Archived · Council Link
LOCATION PLAN
Drawing
Not archived · Council Link
MR RICHARD KEITH-HILL ENVIRONMENT AND COMMUNITY PROTECTION
Consultee Comment
Not archived · Council Link
MRS RACHEL NASH-OBJECTS
Public Comment
Not archived · Council Link
PHASE 2 BAT ACTIVITY SURVEY
Correspondence
Not archived · Council Link
PLANNING STATEMENT
Report
Not archived · Council Link
PRELIMINARY ECOLOGICAL APPRAISAL
Report
Not archived · Council Link
PROPOSED OFF-SITE HABITAT
Drawing
Not archived · Council Link
Drawing
Archived · Council Link
Drawing
Archived · Council Link
PVWRCM - OFFICER REPORT
Officer Notes
Not archived · Council Link
SOMERSET HIGHWAYS (STANDING ADVICE APPLIES)
Correspondence
Not archived · Council Link
TREE SURVEY
Report
Not archived · Council Link

Take Action

Make your voice heard. Authorities need to hear from people who support new homes.

✉️ Write Email in Support View on Council Portal