← Back to Mendip District Council (Legacy)

Status

Awaiting decision New housing
Received
30 Oct 2025
New dwellings
9

Summary

Erection of 9 residential dwellings with associated works.

Full Proposal

Erection of 9 residential dwellings with associated works

Documents

APPLICATION FORM - WITHOUT PERSONAL DATA
Application Form
Not archived · Council Link
ARBORICULTURAL REPORT
Report
Not archived · Council Link
ARBORICULTURAL REPORT
Report
Not archived · Council Link
BNG METRIC
Report
Not archived · Council Link
BNG STATEMENT
Report
Not archived · Council Link
CONLI - CONSULTEE LIST
Neighbour Notification List
Not archived · Council Link
DESIGN AND ACCESS STATEMENT
Report
Not archived · Council Link
DRAINAGE STRATEGY
Report
Not archived · Council Link
DRAINAGE STRATEGY
Drawing
Not archived · Council Link
FLOOD RISK ASSESSMENT
Report
Not archived · Council Link
MISS J PRINCE-OBJECTS
Public Comment
Not archived · Council Link
MR DANIEL WHITING-OBJECTS
Public Comment
Not archived · Council Link
MR DOMINIC MAGNANTE-OBJECTS
Public Comment
Not archived · Council Link
MR GUY BENNEWORTH-OBJECTS
Public Comment
Not archived · Council Link
MR JEREMY SEGAL - OBJECTION'
Public Comment
Not archived · Council Link
MR LANDON G. REID-NEUTRAL
Public Comment
Not archived · Council Link
MR PAUL STEVENS-OBJECTS
Public Comment
Not archived · Council Link
MR STEPHEN LISTER-OBJECTS
Public Comment
Not archived · Council Link
MR THOMAS AYRES-NEUTRAL
Public Comment
Not archived · Council Link
MRS ABIGAIL TROMANS-OBJECTS
Public Comment
Not archived · Council Link
MRS EMMA STEVENS-OBJECTS
Public Comment
Not archived · Council Link
MRS JENNIFER GREGORY
Consultee Comment
Not archived · Council Link
MRS JENNIFER SOMERS-OBJECTS
Public Comment
Not archived · Council Link
MRS JESSICA WEEKS-OBJECTS
Public Comment
Not archived · Council Link
MRS JUDITH GREEN-OBJECTS
Public Comment
Not archived · Council Link
MRS MOIRA SEGAL-OBJECTS
Public Comment
Not archived · Council Link
MRS VICTORIA CHRISTOPHERS-OBJECTS
Public Comment
Not archived · Council Link
MS JOANNE OWERS-OBJECTS
Public Comment
Not archived · Council Link
MS SUZI CROSS-OBJECTS
Public Comment
Not archived · Council Link
MS WASTE MANAGEMENT OFFICER SOMERSET COUNCIL WASTE SERVICES-NEUTRAL
Public Comment
Not archived · Council Link
NATALIE MAGNANTE-OBJECTS
Public Comment
Not archived · Council Link
PLANNING STATEMENT
Report
Not archived · Council Link
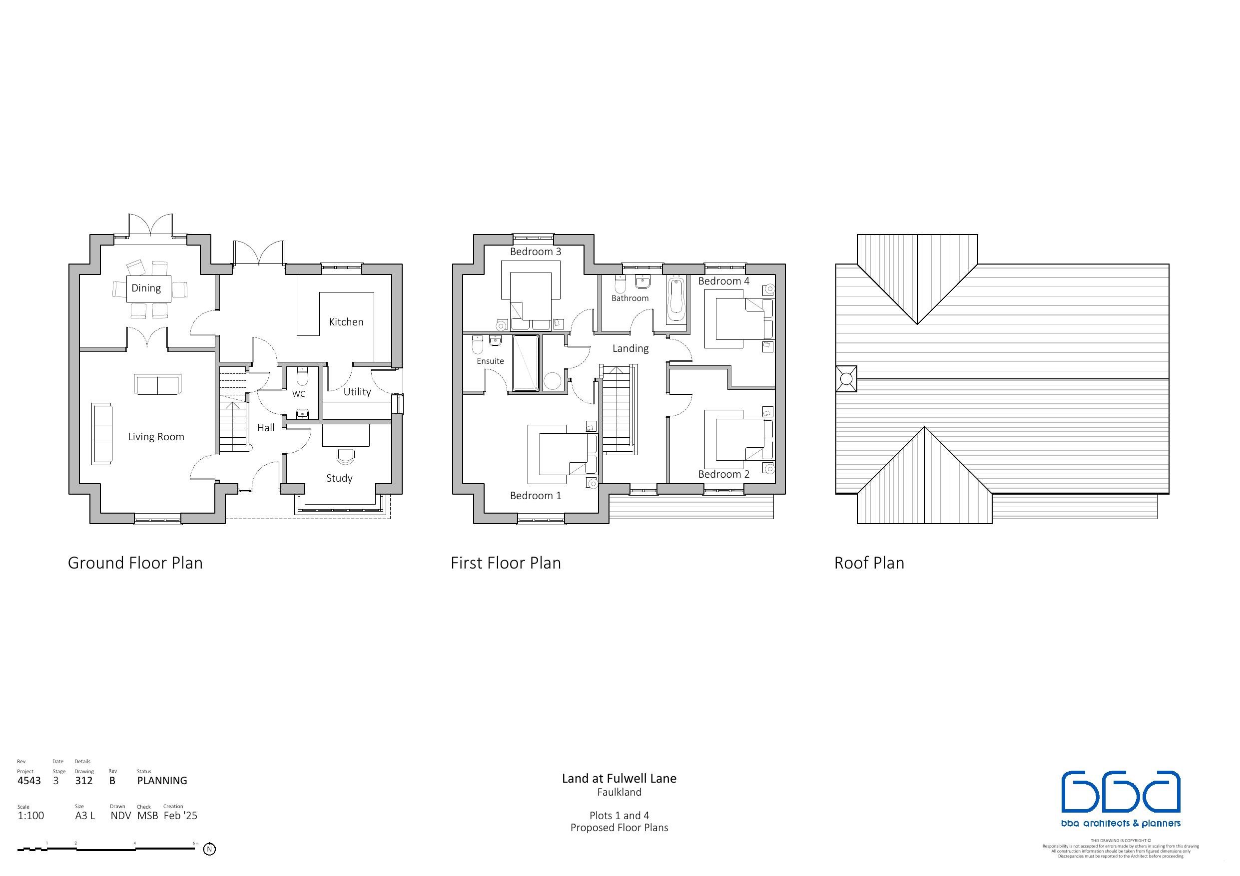
PLOTS 1 AND 4 ELEVATIONS
Drawing
Not archived · Council Link
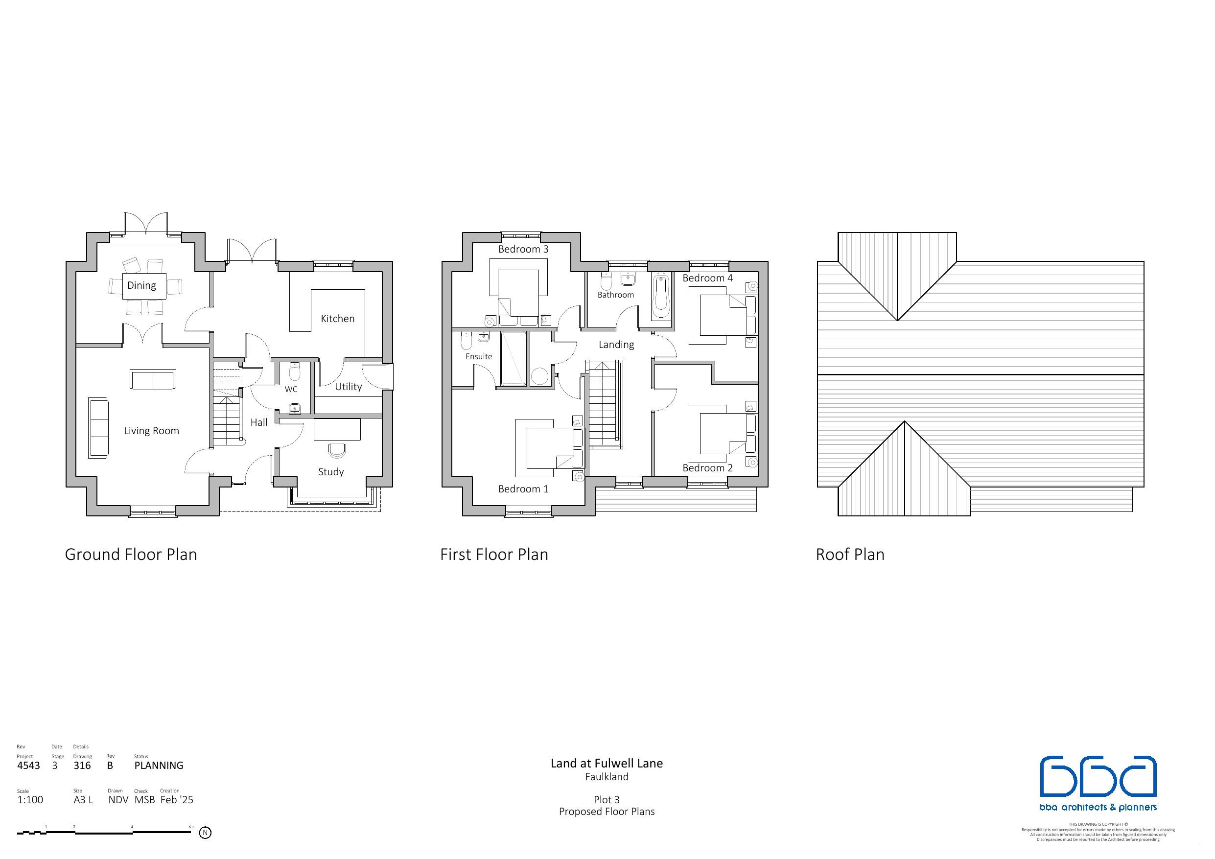
PLOTS 2 & 8 ELEVATIONS
Drawing
Not archived · Council Link
PRELIMINARY ECOLOGICAL APPRAISAL AND ECOLOGICAL IMPACT ASSESSM
Report
Not archived · Council Link
PROPOSED SITE LAYOUT
Drawing
Not archived · Council Link
Drawing
Archived · Council Link
SOMERSET ECOLOGY
Consultee Comment
Not archived · Council Link
SWEPT ANALYSIS, FIRE TENDER
Drawing
Not archived · Council Link
SWEPT PATH ANALYSIS, REFUSE
Drawing
Not archived · Council Link
TRANSPORT STATEMENT
Report
Not archived · Council Link
WASTE AND RECYCLING STRATEGY
Report
Not archived · Council Link

Take Action

Make your voice heard. Authorities need to hear from people who support new homes.

✉️ Write Email in Support View on Council Portal