← Back to Mendip District Council (Legacy)

Status

Awaiting decision New housing
Received
28 Nov 2025
New dwellings
1

Full Proposal

Erection of dwelling incorporating existing ruins with associated access & garden.

Documents

3D AERIAL VIEW
Drawing
Not archived · Council Link
3D APPROACH VIEW FROM LUBBON LANE
Drawing
Not archived · Council Link
3D VIEW FROM LUBBON HOUSE
Drawing
Not archived · Council Link
3D VIEW FROM NORTH WEST
Drawing
Not archived · Council Link
3D VIEW FROM SOUTH
Drawing
Not archived · Council Link
3D VIEW FROM WEST
Drawing
Not archived · Council Link
APPLICATION FORM - WITHOUT PERSONAL DATA
Application Form
Not archived · Council Link
CONLI - CONSULTEE LIST
Neighbour Notification List
Not archived · Council Link
CONSERVATION OFFICER
Consultee Comment
Not archived · Council Link
DESIGN AND ACCESS STATEMENT
Report
Not archived · Council Link
DR MARK PARKINSON-SUPPORTS
Public Comment
Not archived · Council Link
Drawing
Archived · Council Link
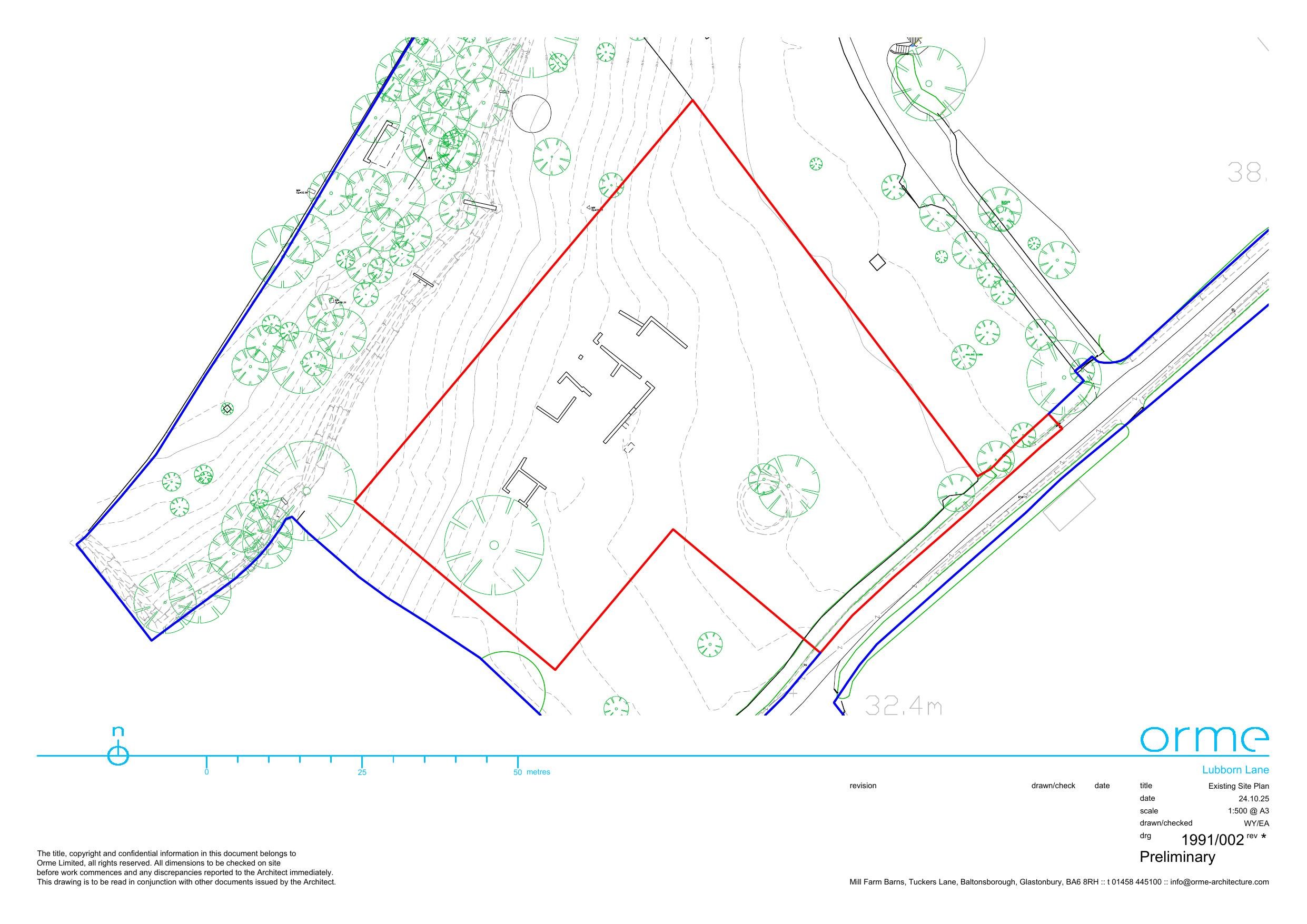
LOCATION PLAN
Drawing
Not archived · Council Link
MR JULIAN MACEY-SUPPORTS
Public Comment
Not archived · Council Link
MR NATHANIEL LEGALL - ECOLOGIST
Consultee Comment
Not archived · Council Link
MR NIK PATEL-SUPPORTS
Public Comment
Not archived · Council Link
MR PAUL FINCH-SUPPORTS
Public Comment
Not archived · Council Link
MR PHILIP TRUELOVE-SUPPORTS
Public Comment
Not archived · Council Link
MR RICHARD ALLARD - SENIOR ENVIRONMENTAL HEALTH PRACTIONER
Consultee Comment
Not archived · Council Link
MR RICHARD ALLARD ENVIRONMENT AND COMMUNITY PROTECTION
Consultee Comment
Not archived · Council Link
MR SCOTT PAYNE-SUPPORTS
Public Comment
Not archived · Council Link
MR STEVEN MEMBERY ARCHAEOLOGY
Consultee Comment
Not archived · Council Link
MRS ANNA PARKINSON-SUPPORTS
Public Comment
Not archived · Council Link
MRS KAREN REINA-SUPPORTS
Public Comment
Not archived · Council Link
MRS MAXINE COTTON-SUPPORTS
Public Comment
Not archived · Council Link
NATURAL ENGLAND
Consultee Comment
Not archived · Council Link
NUTRIENT NEUTRALITY ASSESSMENT AND MITIGATION STRATEGY (NNAMS)
Report
Not archived · Council Link
PARISH CLERK BALTONSBOROUGH
Consultee Comment
Not archived · Council Link
PHOSPHATE CREDIT SHADOW HABITATS REGULATIONS ASSESSMENT (SHRA) REPORT
Report
Not archived · Council Link
PLANNING STATEMENT
Report
Not archived · Council Link
PRELIMINARY ECOLOGICAL APPRAISAL REPORT
Report
Not archived · Council Link
PROPOSED FIRST FLOOR PLAN
Drawing
Not archived · Council Link
PROPOSED GROUND FLOOR PLAN
Drawing
Not archived · Council Link
PROPOSED NE ELEVATION
Drawing
Not archived · Council Link
PROPOSED NW ELEVATIONS
Drawing
Not archived · Council Link
PROPOSED ROOF PLAN
Drawing
Not archived · Council Link
PROPOSED SE ELEVATIONS
Drawing
Not archived · Council Link
PROPOSED SECTION
Drawing
Not archived · Council Link
Drawing
Archived · Council Link
PROPOSED SW ELEVATIONS
Drawing
Not archived · Council Link
SITE ACCESS
Drawing
Not archived · Council Link
SOMERSET HIGHWAYS - STANDING ADVICE APPLIES
Consultee Comment
Not archived · Council Link
SOMERSET RIGHTS OF WAY
Consultee Comment
Not archived · Council Link

Take Action

Make your voice heard. Authorities need to hear from people who support new homes.

✉️ Write Email in Support View on Council Portal