← Back to Mendip District Council (Legacy)

Status

Unknown New housing
Received
04 Dec 2025
New dwellings
1

Full Proposal

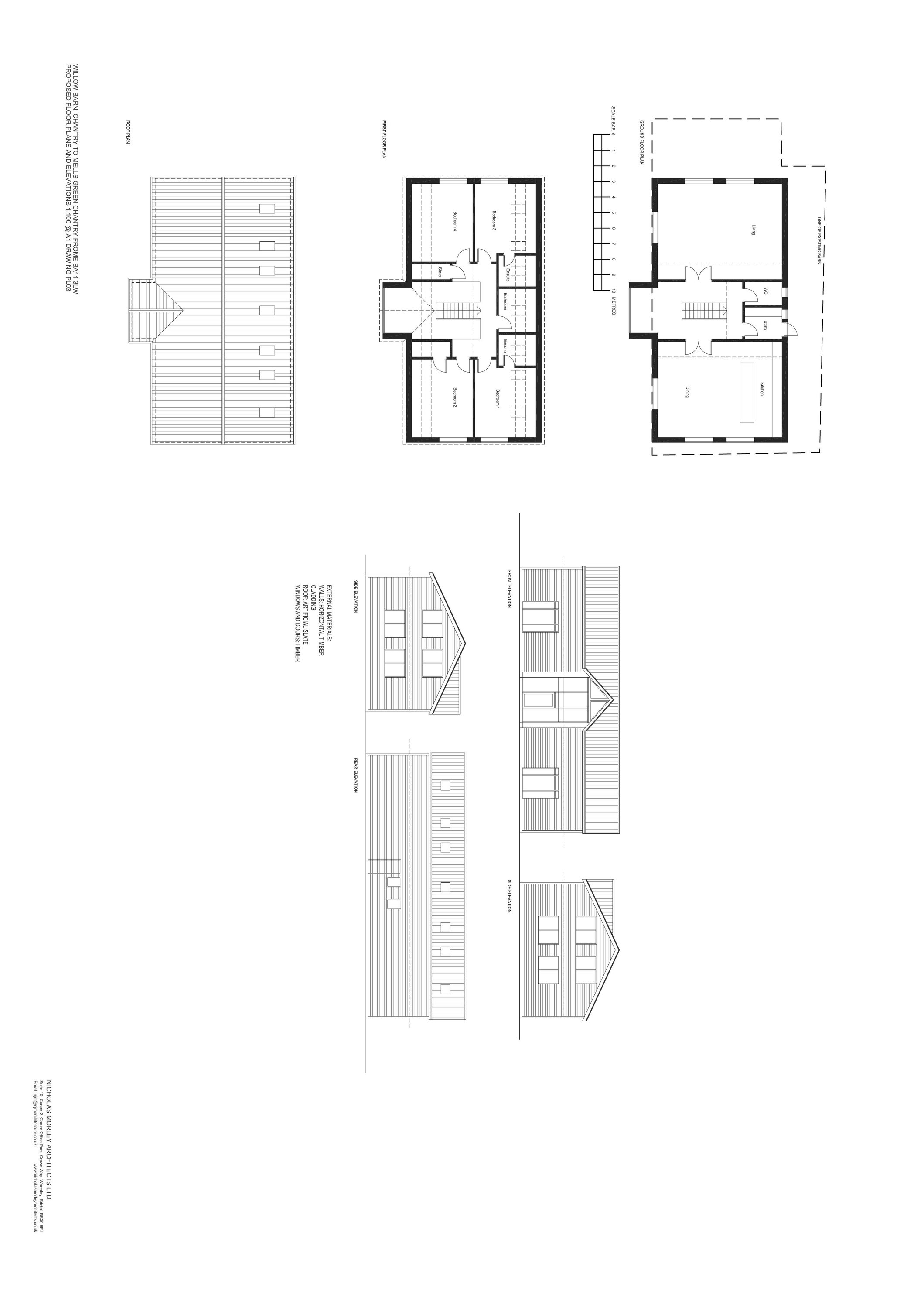
Erection of residential dwellinghouse.

Documents

APPLICATION FORM - WITHOUT PERSONAL DATA
Application Form
Not archived · Council Link
CLLR BARRY CLARKE
Consultee Comment
Not archived · Council Link
CLLR PHILIP HAM
Consultee Comment
Not archived · Council Link
CONLI - CONSULTEE LIST
Neighbour Notification List
Not archived · Council Link
COVERING LETTER
Correspondence
Not archived · Council Link
Drawing
Archived · Council Link
LOCATION PLAN
Drawing
Not archived · Council Link
PRELIMINARY ECOLOGICAL APPRAISAL
Report
Not archived · Council Link
Drawing
Archived · Council Link
PVWRCM - OFFICER REPORT
Officer Notes
Not archived · Council Link
WDZWDZ - APPLICATION WITHDRAWN
Decision
Not archived · Council Link

Take Action

Make your voice heard. Authorities need to hear from people who support new homes.

✉️ Write Email in Support View on Council Portal