← Back to Merthyr Tydfil County Borough Council

Status

Unknown New housing
Received
n/a
New dwellings
3

Full Proposal

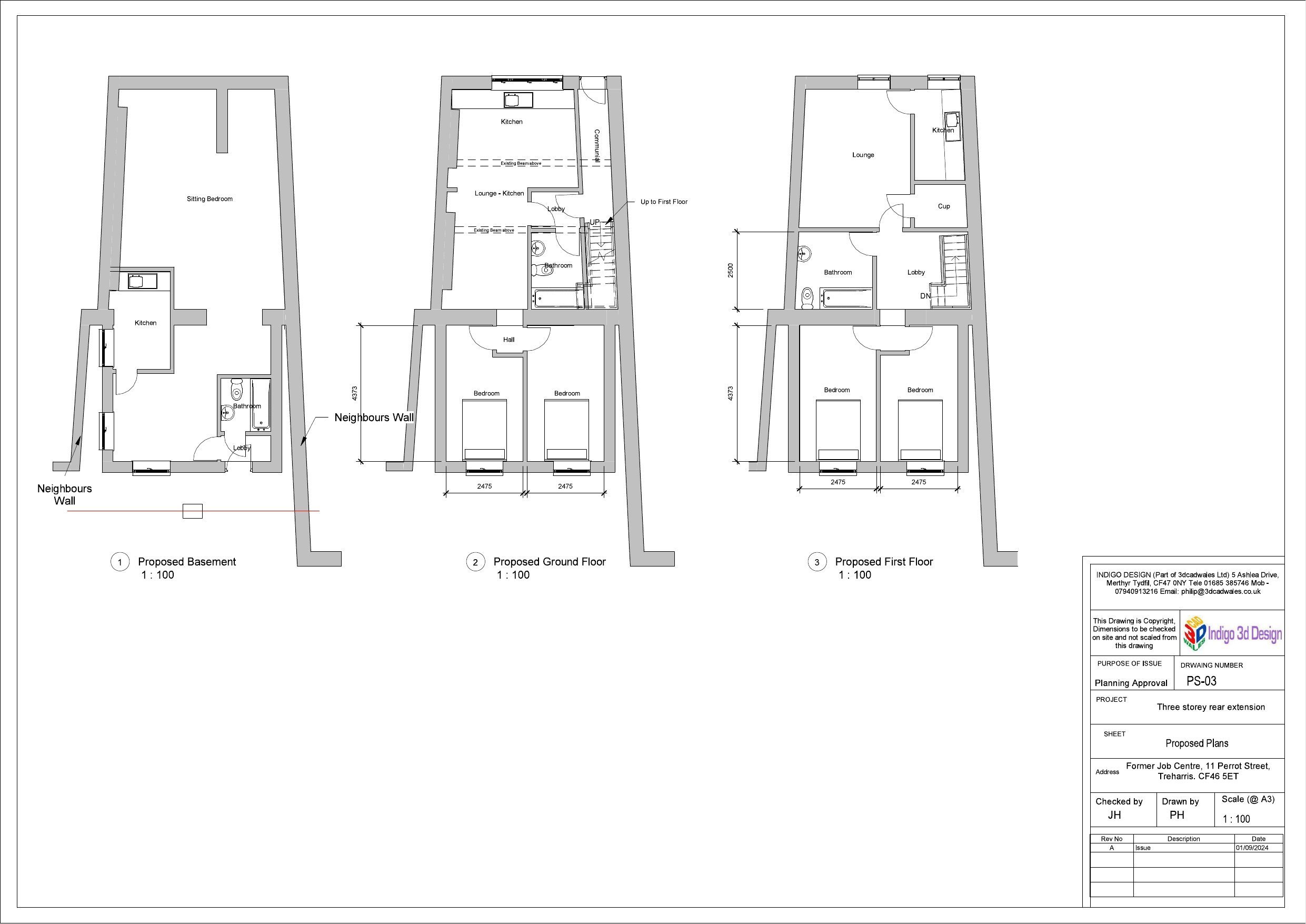
Provision of 3 flats to include three storey rear extension

Documents

Alternative facilities (Policy justification)
Reports
Not archived · Council Link
Appendix to Green Infrastructure Statement
Reports
Not archived · Council Link
Application Form
Application Form
Not archived · Council Link
Bat Activity Survey
Reports
Not archived · Council Link
Bat Survey
Cancelled Document
Not archived · Council Link
Existing Elevations Drawing No. PS-02
Submitted Plan
Not archived · Council Link
Existing Plans Drawing No. PS-01
Submitted Plan
Not archived · Council Link
Green Infrastructure Statement
Reports
Not archived · Council Link
Illustrations Drawing No. PS-07
Submitted Plan
Not archived · Council Link
Illustrations Drawing No. PS-08
Submitted Plan
Not archived · Council Link
Location Plan
Submitted Plan
Not archived · Council Link
Proposed Bat House Drawing No. P2-06
Submitted Plan
Not archived · Council Link
Proposed Elevations Drawing No. PS-04
Cancelled Plans/Details
Not archived · Council Link
Proposed Elevations Drawing No. PS-04
Amended Plans
Not archived · Council Link
Proposed Lighting Plan Drawing No. PS-07
Submitted Plan
Not archived · Council Link
Submitted Plan
Archived · Council Link
Cancelled Plans/Details
Archived · Council Link
Sections Drawing No. PS-06
Submitted Plan
Not archived · Council Link
Cancelled Plans/Details
Archived · Council Link
Welsh Water (Document 1 of 2)
Consultation Response Public Access
Not archived · Council Link
Welsh Water (Document 2 of 2)
Consultation Response Public Access
Not archived · Council Link

Take Action

Make your voice heard. Authorities need to hear from people who support new homes.

✉️ Write Email in Support View on Council Portal