← Back to Mid Suffolk District Council
Status
Awaiting decision
Change of use
Full Proposal
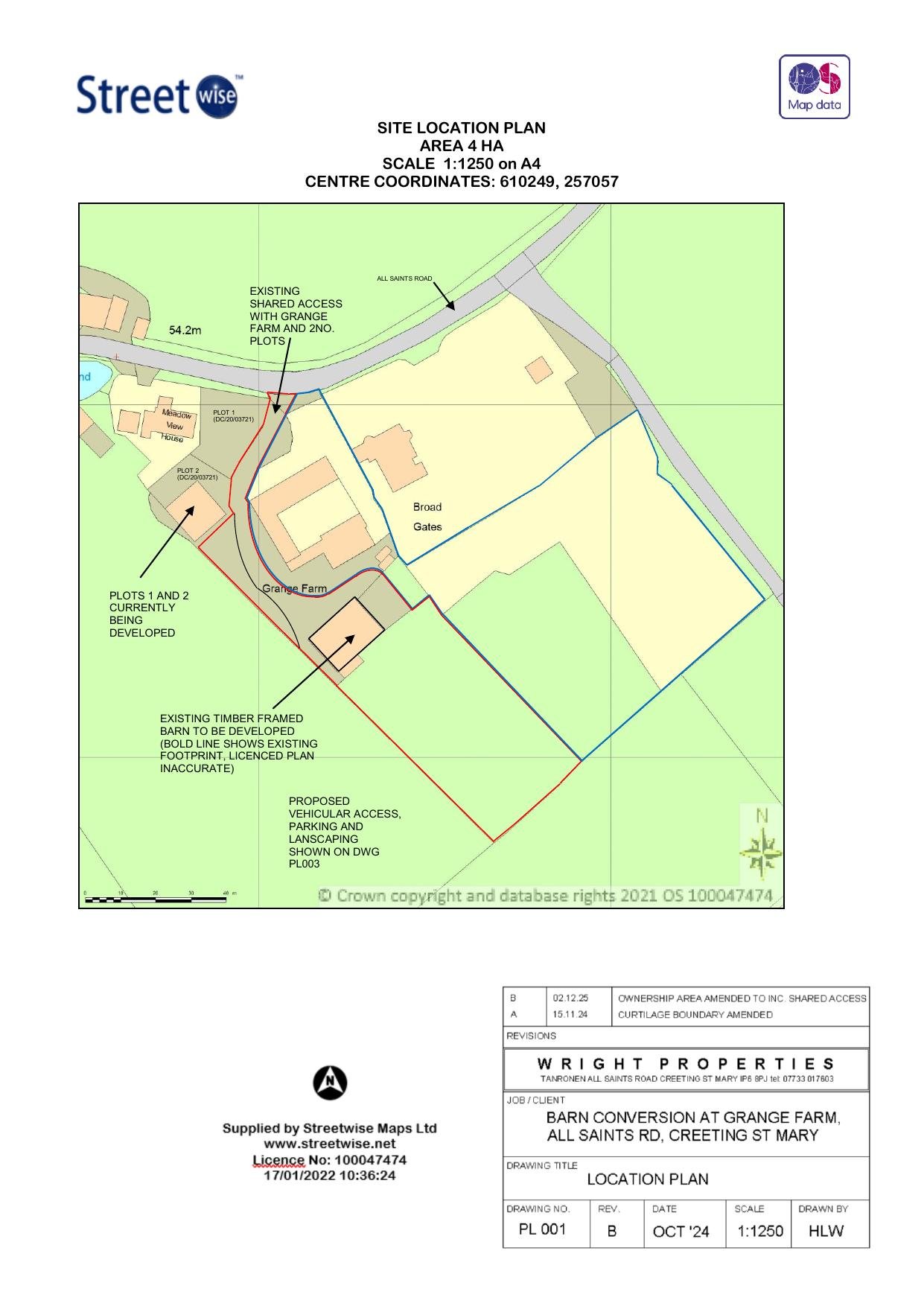
Full Planning Application - Conversion of an existing redundant agricultural building into 1no. two storey dwellinghouse with ancillary parking
Documents
APPLICATION FORM
Application Form
BAT SURVEY REPORT - THE BARN GRANGE FARM
Report
CREETING ST MARY PARISH COUNCIL RESPONSE
Consultee Comment
DESIGN AND ACCESS STATEMENT - THE BARN GRANGE FARM
Report
ECOLOGY RESPONSE
Consultee Comment
ENV RESPONSE LAND CONTAMINATION
Consultee Comment
ENV RESPONSE NOISE ODOUR LIGHT AND SMOKE
Consultee Comment
EO-ENVIRONMENTAL DESK STUDY REPORT
Report
EXISTING ELEVATIONS PL005
Drawing
EXISTING LAYOUT PLAN PL004
Drawing
FLOOD MAP - THE BARN
Additional Information
PRELIMINARY ECOLOGICAL APPRAISAL
Report
PROPOSED ELEVATIONS PL007C
Drawing
PROPOSED LANDSCAPE PLAN PL008B
Drawing
SCC FIRE AND RESCUE RESPONSE
Consultee Comment
SCC FIRE AND RESCUE RESPONSE
Consultee Comment
SCC HIGHWAYS RESPONSE
Consultee Comment
THE BARN GRANGE FARM - PHOTOPAGE WITH REFERENCES
Photo
Take Action
Make your voice heard. Authorities need to hear from people who support new homes.