← Back to Mid Sussex District Council

Status

Not Proceeded With Change of use
Received
06 Jun 2022
New dwellings
1

Full Proposal

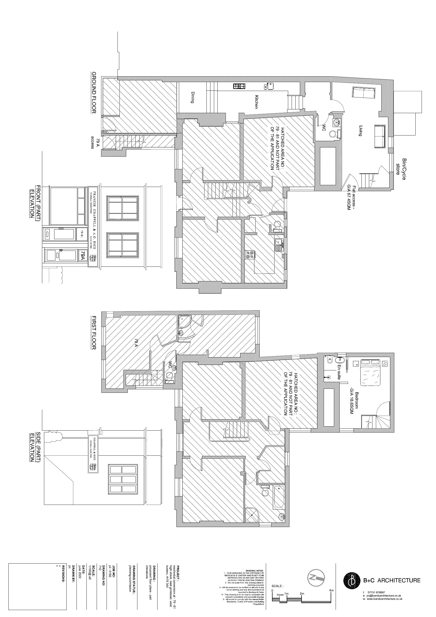
Conversion of existing office space (B1) to 1 bedroom residential dwelling. Updated Heritage Impact Assessment received 25.04.2023. Amended plans and updated Heritage Statement received showing revised layout of proposed dwelling.

Documents

100 rev A Location Plan - superseded
Superseded plan
Not archived · Council Link
210 Existing Plans and Elevations - superseded
Superseded plan
Not archived · Council Link
Amended existing floor plans and elevations
Latest plan
Not archived · Council Link
Amended existing floor plans, part elevations - superseded
Superseded plan
Not archived · Council Link
Amended location and block plan
Latest plan
Not archived · Council Link
Amendment to Heritage Statement
Supporting statement
Not archived · Council Link
Application Form
Application form
Not archived · Council Link
Decision notice
Decision notice
Not archived · Council Link
Delegated report
Delegated report
Not archived · Council Link
East Grinstead Town Council
Consultation response
Not archived · Council Link
East Grinstead Town Council
Consultation response
Not archived · Council Link
East Grinstead Town Council
Consultation response
Not archived · Council Link
Heritage Statement (79A High Street)
Supporting statement
Not archived · Council Link
Heritage Statement (Rear Cottage 79-81 High Street)
Supporting statement
Not archived · Council Link
MSDC Conservation Officer
Consultation response
Not archived · Council Link
MSDC Conservation Officer
Consultation response
Not archived · Council Link
MSDC Conservation Officer
Consultation response
Not archived · Council Link
MSDC Housing Standards
Consultation response
Not archived · Council Link
MSDC Housing Standards
Consultation response
Not archived · Council Link
MSDC Housing Standards Officer
Consultation response
Not archived · Council Link
MSDC Neighbour Notification Sheet
Site notes and file notes
Not archived · Council Link
Natural England
Consultation response
Not archived · Council Link
Natural England - annex A
Consultation response
Not archived · Council Link
Photos of building
Photograph
Not archived · Council Link
Planning Statement
Supporting statement
Not archived · Council Link
Site Notice
Site notes and file notes
Not archived · Council Link
Street Naming and Numbering Officer
Consultation response
Not archived · Council Link
Updated Heritage Impact Assessment
Supporting statement
Not archived · Council Link
WSCC Highways
Consultation response
Not archived · Council Link

Take Action

Make your voice heard. Authorities need to hear from people who support new homes.

✉️ Write Email in Support View on Council Portal