← Back to Mid Sussex District Council
DM/25/2474
Mid Sussex District Council · IDOX
Status
Pending Consideration
New housing
Received
01 Oct 2025
New dwellings
12
Full Proposal
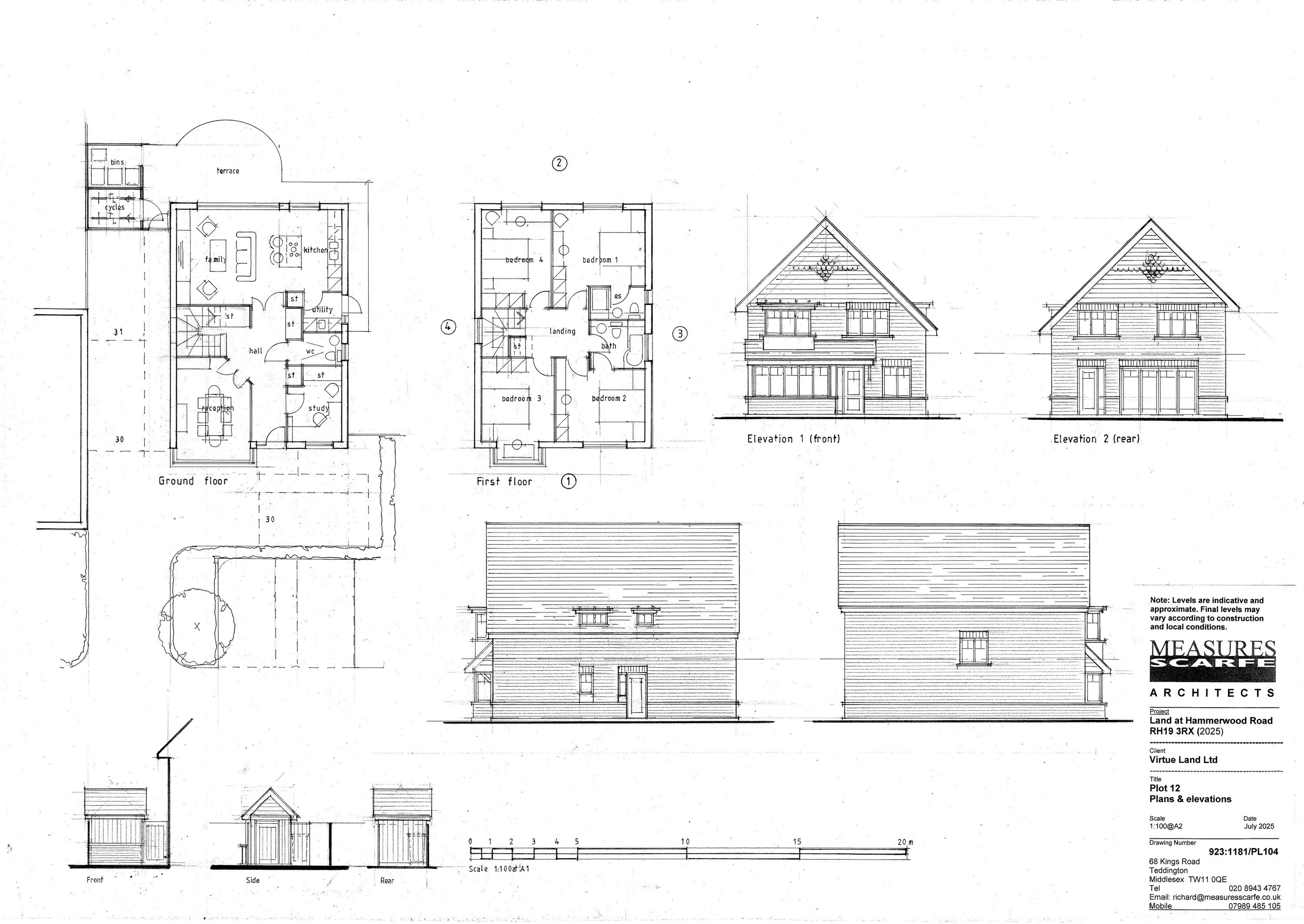
The erection of twelve houses, comprising 4x two bedroom houses, 4x three bedroom houses and 4x four bedroom houses, with associated access (Via Yewhurst Close) and parking. ADDITIONAL INFORMATION received 1/12/25, 2/12/25 in relation to Great Crested Newts, Drainage, updated site layout, cycle stores for plots 1-8 and clarification on parking.
Documents
1 School lane Ashurst Wood, East Grinstead,west Sussex
Representation letter
Not archived
· Council Link
Supporting statement
Archived
· Council Link
Agent - further response in respect of Great Crested Newts and NatureSpace consultation response
Supporting statement
Not archived
· Council Link
Arboricultural Implications Assessment and Method Statement
Supporting statement
Not archived
· Council Link
Design and Access Statement including Planning Statement, Affordable Housing Statement, Statement of Community Involvement and Sustainability Statement
Supporting statement
Not archived
· Council Link
Preliminary Ecological Appraisal and Biodiversity Net Gain Assessment
Supporting statement
Not archived
· Council Link
Proposed site layout with Refuse Tracking DWG no 923:1181/PL100
Latest plan
Not archived
· Council Link
Technical Note – Great Crested Newts NatureSpace Response
Supporting statement
Not archived
· Council Link
Take Action
Make your voice heard. Authorities need to hear from people who support new homes.