← Back to Mid Sussex District Council

Status

Pending Consideration Change of use
Received
04 Nov 2025
New dwellings
4

Summary

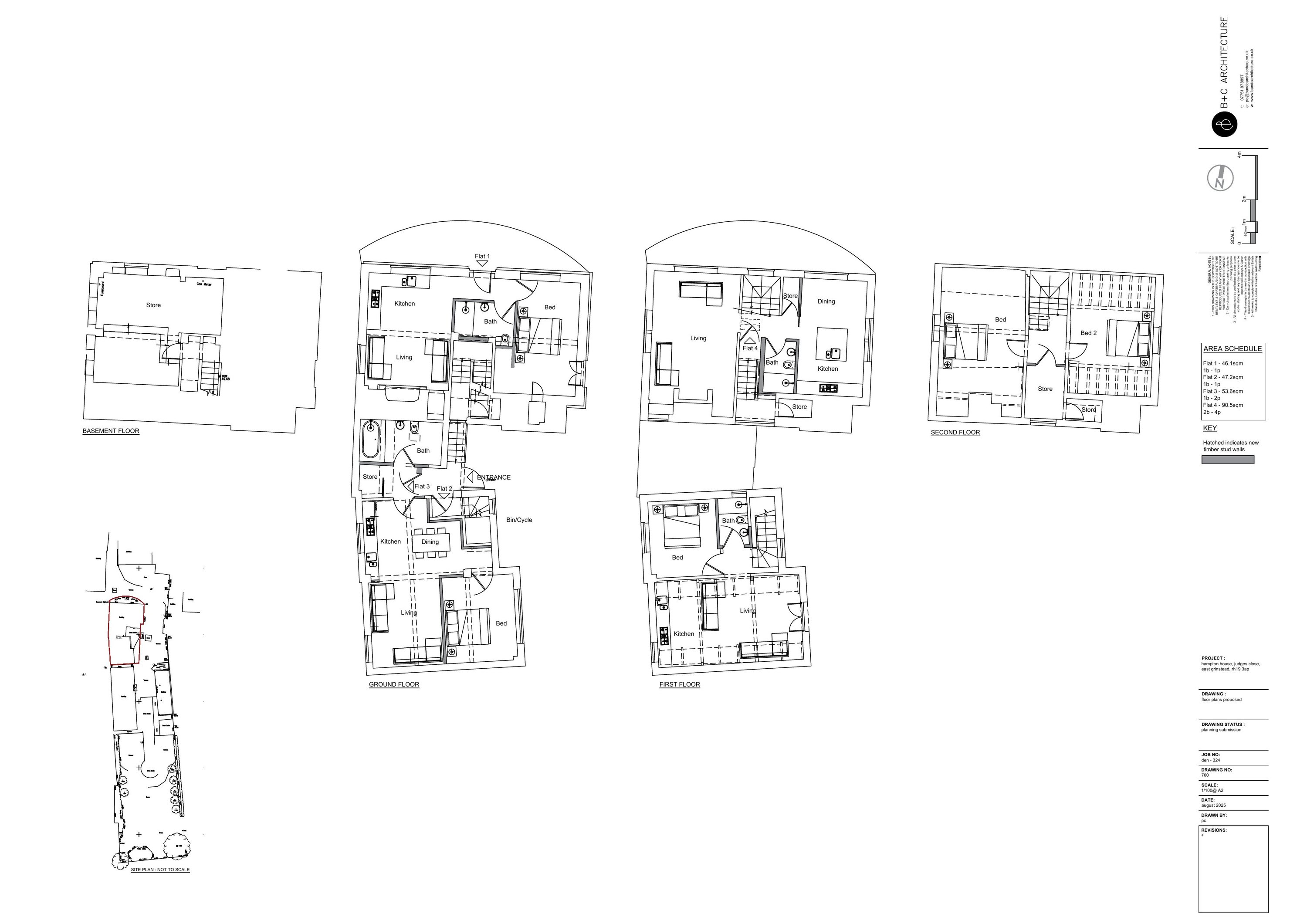
Change of use from Class E to residential to form 4 flats via internal reconfiguration.

Full Proposal

Change of use of building from Class E to residential to form 4no flats, consisting of internal changes to the floor plan. (Revised plans received 27.11.2025) (Revised description agreed 01.12.2025)

Documents

101 Site / Block plan
Latest plan
Not archived · Council Link
Application form
Application form
Not archived · Council Link
Disability Access-East Grinstead Area
Representation letter
Not archived · Council Link
East Grinstead Town Council
Consultation response
Not archived · Council Link
Existing Basement Plan
Latest plan
Not archived · Council Link
Existing Elevations
Latest plan
Not archived · Council Link
Existing First Floor Plan
Latest plan
Not archived · Council Link
Existing Ground Floor Plan
Latest plan
Not archived · Council Link
Existing Second Floor Plan
Latest plan
Not archived · Council Link
Heritage Statement
Supporting statement
Not archived · Council Link
High Street, East Grinstead
Representation letter
Not archived · Council Link
Location Plan and Block Plan
Latest plan
Not archived · Council Link
MSDC Conservation Officer
Consultation response
Not archived · Council Link
MSDC Neighbour Notification Sheet
Site notes and file notes
Not archived · Council Link
MSDC Street Naming and Numbering
Consultation response
Not archived · Council Link
Planning Statement
Supporting statement
Not archived · Council Link
Proposed Elevations
Latest plan
Not archived · Council Link
Proposed Elevations inc Fence detail - Superseded
Superseded plan
Not archived · Council Link
Latest plan
Archived · Council Link
Superseded plan
Archived · Council Link
Site notes and file notes
Site notes and file notes
Not archived · Council Link
Site notes and file notes
Site notes and file notes
Not archived · Council Link
Site Notice
Photograph
Not archived · Council Link
Site Notice
Photograph
Not archived · Council Link
Topographical survey
Latest plan
Not archived · Council Link
WSCC Highways
Consultation response
Not archived · Council Link
WSCC Highways
Consultation response
Not archived · Council Link

Take Action

Make your voice heard. Authorities need to hear from people who support new homes.

✉️ Write Email in Support View on Council Portal