← Back to Mid Sussex District Council
DM/25/2966
Mid Sussex District Council · IDOX
Status
Pending Consideration
Demolition
Received
18 Nov 2025
New dwellings
0
Full Proposal
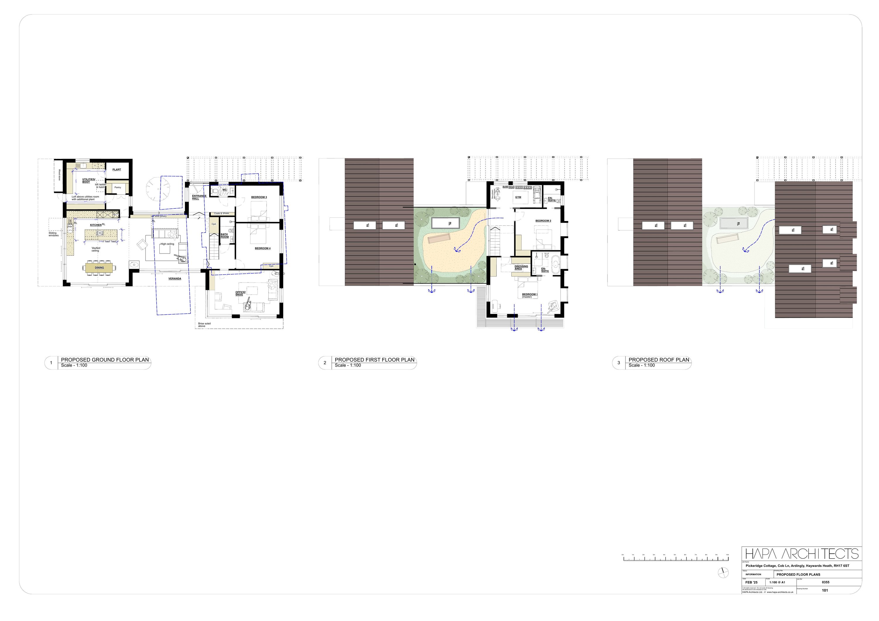
Demolition of existing house, replacement new build house with associated landscaping
Documents
Appendix 8 Landscape Institute Technical Guidance Note 0609 Visual Representation of Development Proposals 7th October 2024
Supporting statement
Not archived
· Council Link
Appendix 9 Landscape Institute Technical Guidance Note TGN 0221 Assessing Landscape Value outside National Designations 7th October 2024
Supporting statement
Not archived
· Council Link
hla 618 R01 Pickeridge Farm Landscape and Visual Impact Assessment LVIA February 2025
Supporting statement
Not archived
· Council Link
hla 618 R02 Appendix 2 Pickeridge Farm Viewpoints 1 to 12 February 2025
Supporting statement
Not archived
· Council Link
Pickeridge Cottage Planning Statement 21_10_2025 V2
Supporting statement
Not archived
· Council Link
West Sussex Historic Environment Record (WSHER)- Consultation Document
Supporting statement
Not archived
· Council Link
Take Action
Make your voice heard. Authorities need to hear from people who support new homes.