← Back to Mid Sussex District Council
DM/26/0160
Mid Sussex District Council · IDOX
Status
Pending Consideration
Agricultural
Received
Last month
New dwellings
0
Full Proposal
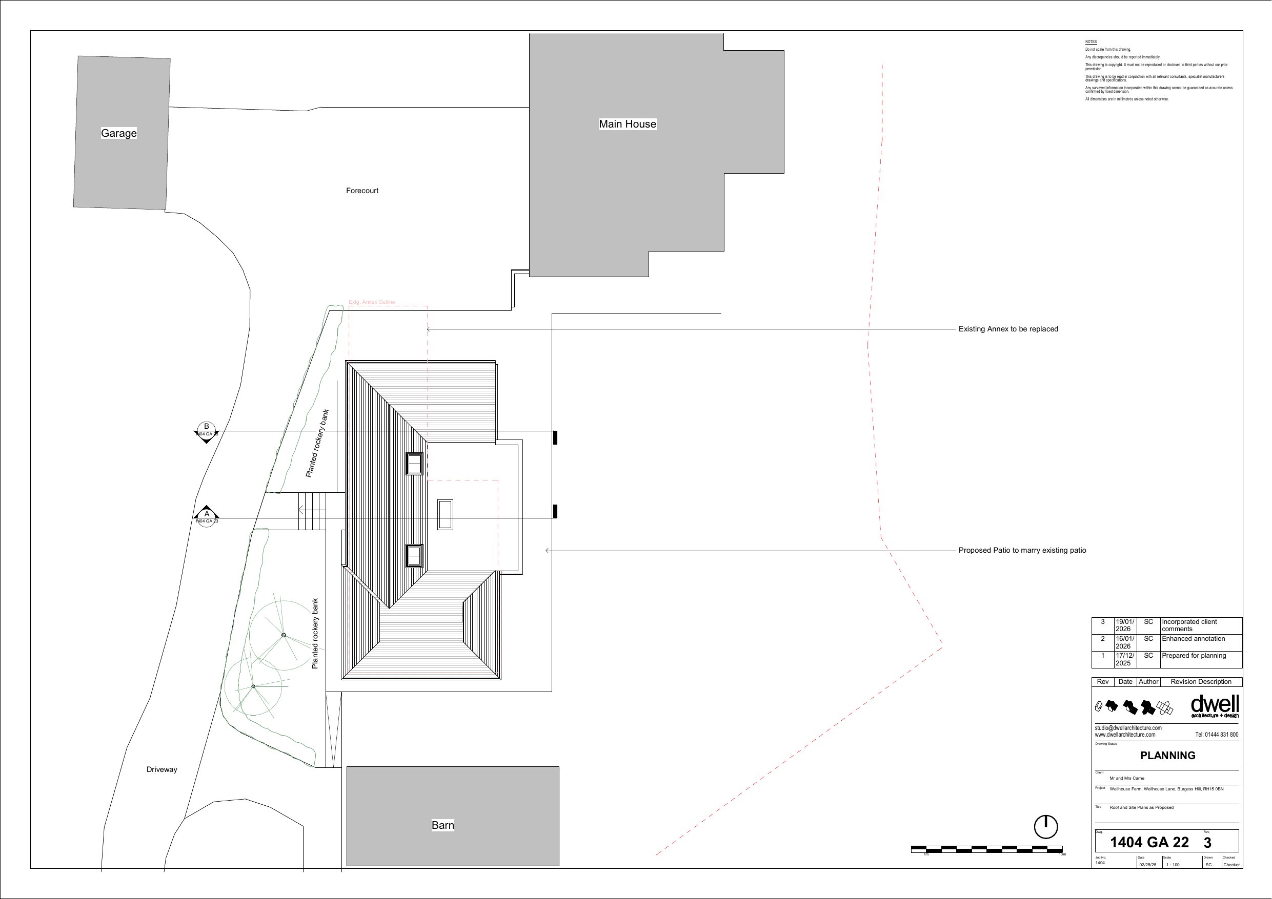
Replacement of single storey annexe, for purposes ancillary to Wellhouse Farm
Documents
Take Action
Make your voice heard. Authorities need to hear from people who support new homes.