← Back to Middlesbrough Council

Status

Appeal Decided House extension
Received
12 Feb 2025
New dwellings
0

Planning Inspectorate

Appeal: Decided Dismissed
Ref3369902
TypeHouseholder (HAS)
Decision09 Sep 2025

Summary

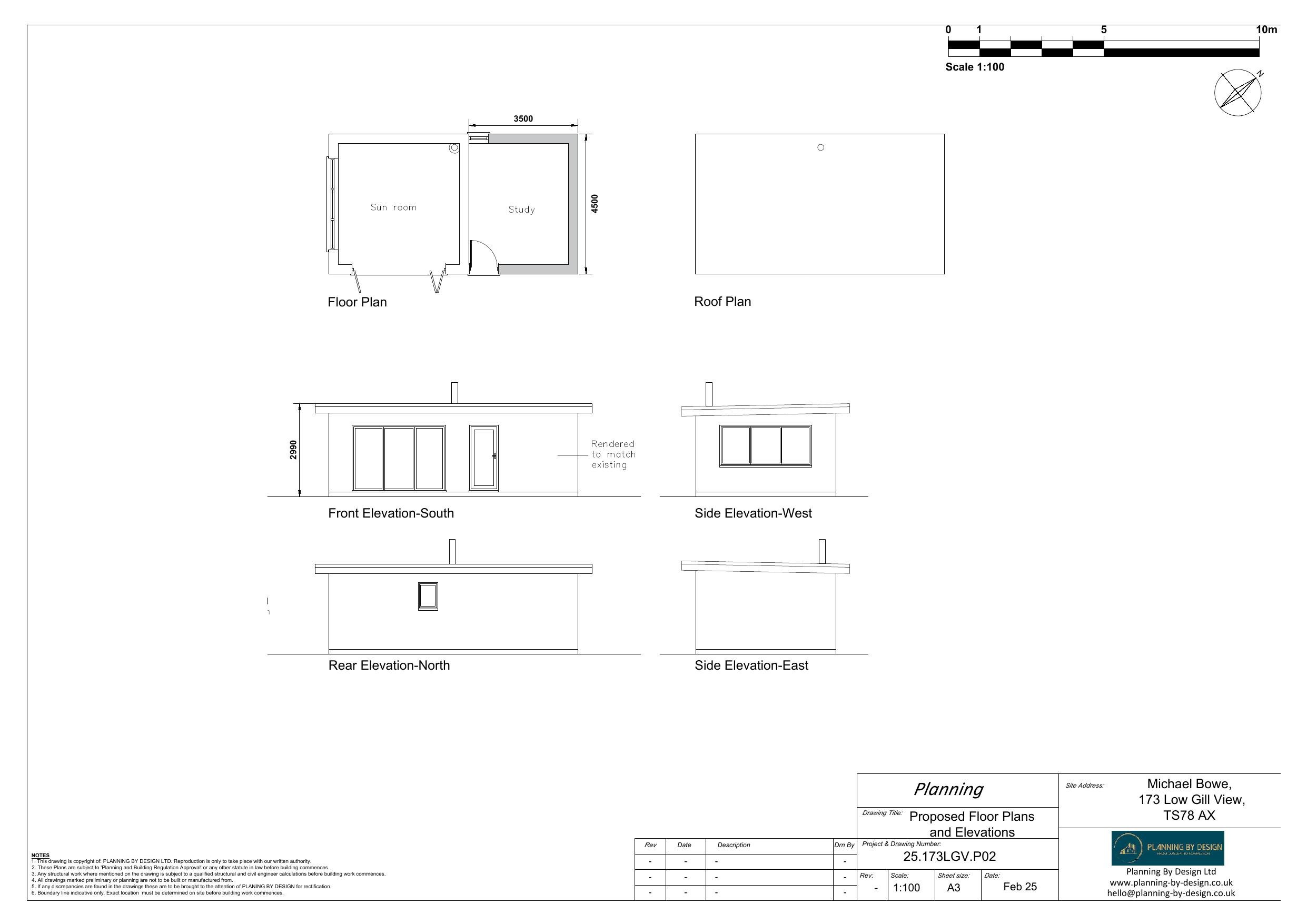
Retrospective extension to existing summer house.

Full Proposal

Retrospective extension to existing summer house

Documents

Appeal Decision 09.09.2025
Appeal Decision
Not archived · Council Link
Appeal Start Letter
Appeal Start Letter
Not archived · Council Link
Appellant's Appeal Form
Appeal Form
Not archived · Council Link
Appellant's Statement of Case REVB
Appellant`s Case
Not archived · Council Link
Application form redacted
Application Form
Not archived · Council Link
Consultee Notification List
Consultation Notification List
Not archived · Council Link
Decision
Decision
Not archived · Council Link
Existing plans & elevations Dwg no. 25.173LGV.P01
Drawing
Not archived · Council Link
Location Plan Rev B PO3v2
Revised Drawing
Not archived · Council Link
LPA Appeal Questionnaire
Appeal Questionnaire
Not archived · Council Link
Neighbour Notification List
Neighbour List
Not archived · Council Link
Officer Report
Report
Not archived · Council Link
Revised Existing Floor Plans & Elevations - 25.173LGV.P01 Rev A
Revised Drawing
Not archived · Council Link

Take Action

Make your voice heard. Authorities need to hear from people who support new homes.

✉️ Write Email in Support View on Council Portal