← Back to Middlesbrough Council

Status

Pending Consideration Change of use
Received
09 Jul 2025
New dwellings
2

Summary

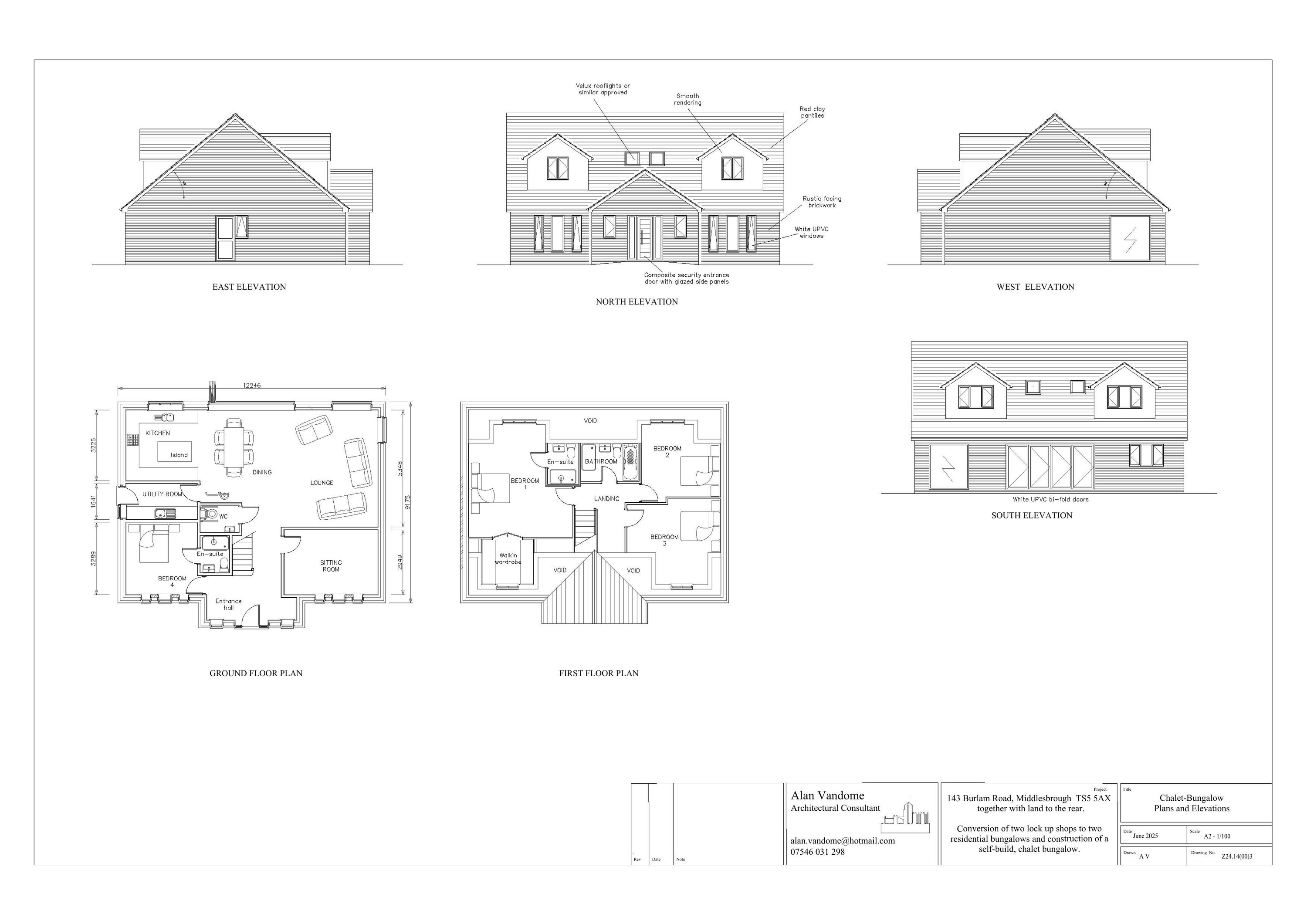
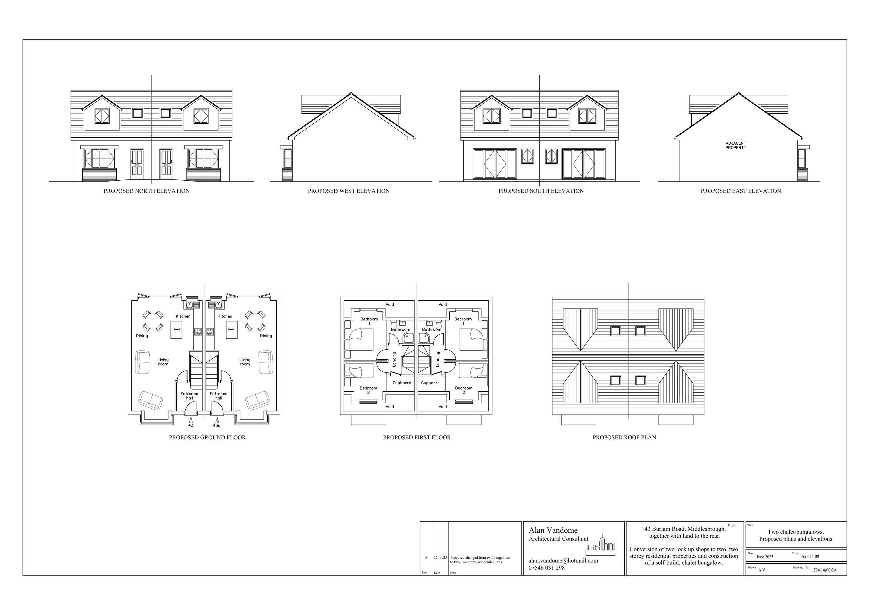
Change of retail units to 2 dwellings and erection of a chalet bungalow.

Full Proposal

Change of use from retail units to 2no. dwellings including single storey extensions to rear and erection of chalet bungalow

Documents

Application form redacted
Application Form
Not archived · Council Link
BNG Final Report
Revised Supporting Document
Not archived · Council Link
BNG report
Supporting Documents
Not archived · Council Link
Consultee Notification List
Consultation Notification List
Not archived · Council Link
Drawing register
Supporting Documents
Not archived · Council Link
Existing Plans and elevations Dwg No. Z24.14(00)1
Drawing
Not archived · Council Link
Revised Drawing
Archived · Council Link
Location plan
Drawing
Not archived · Council Link
Neighbour Notification List
Neighbour Notification List
Not archived · Council Link
Proposed Elevations & Plans Dwg. Z24.14(00)3A (Bungalows)
Revised Drawing
Not archived · Council Link
Drawing
Archived · Council Link
Revised Drawing
Archived · Council Link
Revised Drawing
Archived · Council Link

Take Action

Make your voice heard. Authorities need to hear from people who support new homes.

✉️ Write Email in Support View on Council Portal