← Back to Middlesbrough Council

Status

Decision Issued House extension
Received
18 Sep 2025
New dwellings
0

Full Proposal

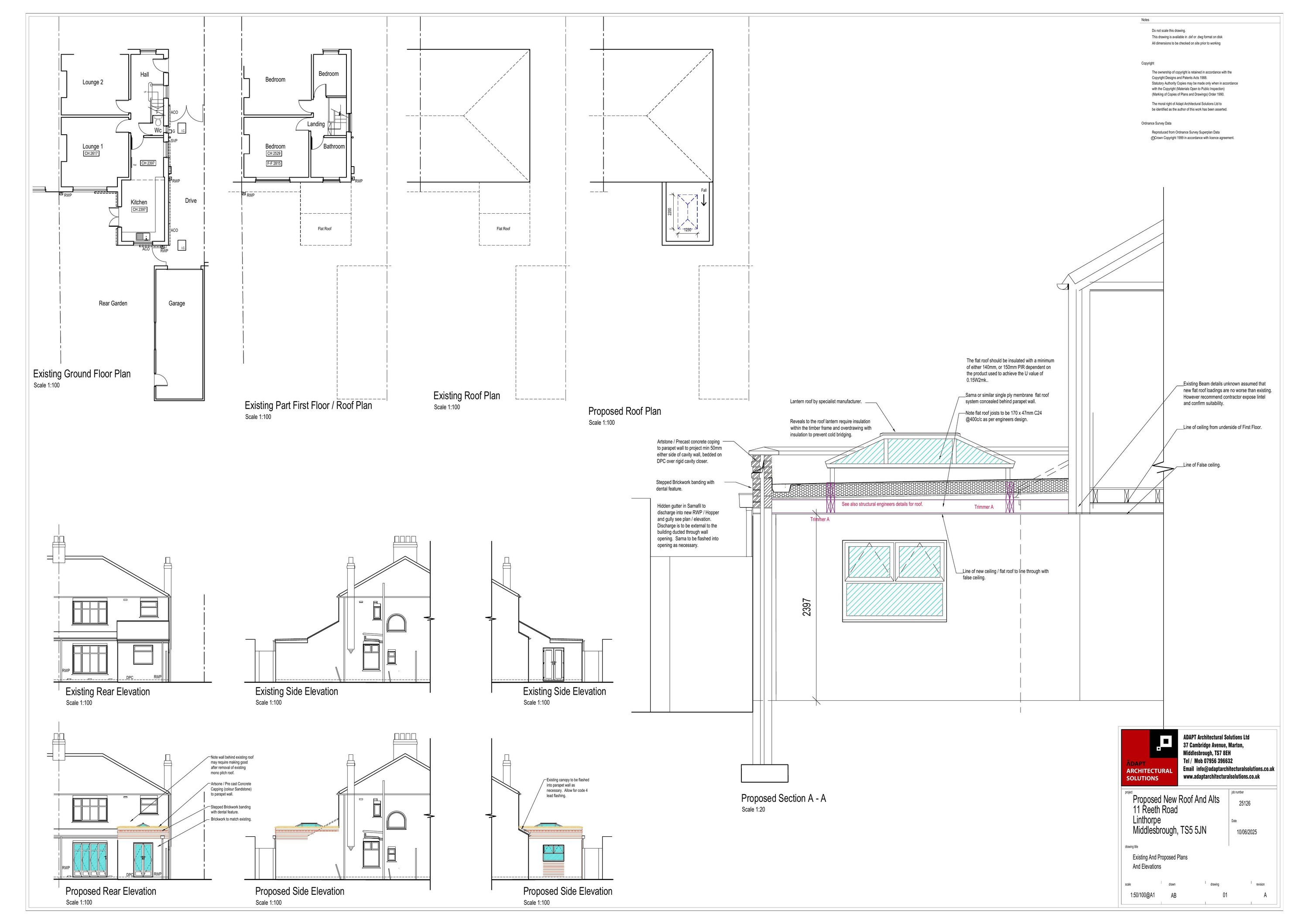
Installation of flat roof to existing offshoot including lantern feature and parapet wall, installation of 1no. window to side and glazed doors to rear (Part demolition of existing offshoot)

Documents

Application form redacted
Application Form
Not archived · Council Link
Block plan
Drawing
Not archived · Council Link
Consultee Notification List
Consultation Notification List
Not archived · Council Link
Copy of Evening Gazette Advert 3.10.25
Adverts
Not archived · Council Link
Decision Notice
Decision
Not archived · Council Link
Heritage statement
Supporting Documents
Not archived · Council Link
Location plan
Drawing
Not archived · Council Link
Neighbour Notification List
Neighbour Notification List
Not archived · Council Link
Officer Report
Report
Not archived · Council Link
Drawing
Archived · Council Link

Take Action

Make your voice heard. Authorities need to hear from people who support new homes.

✉️ Write Email in Support View on Council Portal