← Back to Middlesbrough Council

Status

Decision Issued Change of use
Received
30 Sep 2025
New dwellings
0

Full Proposal

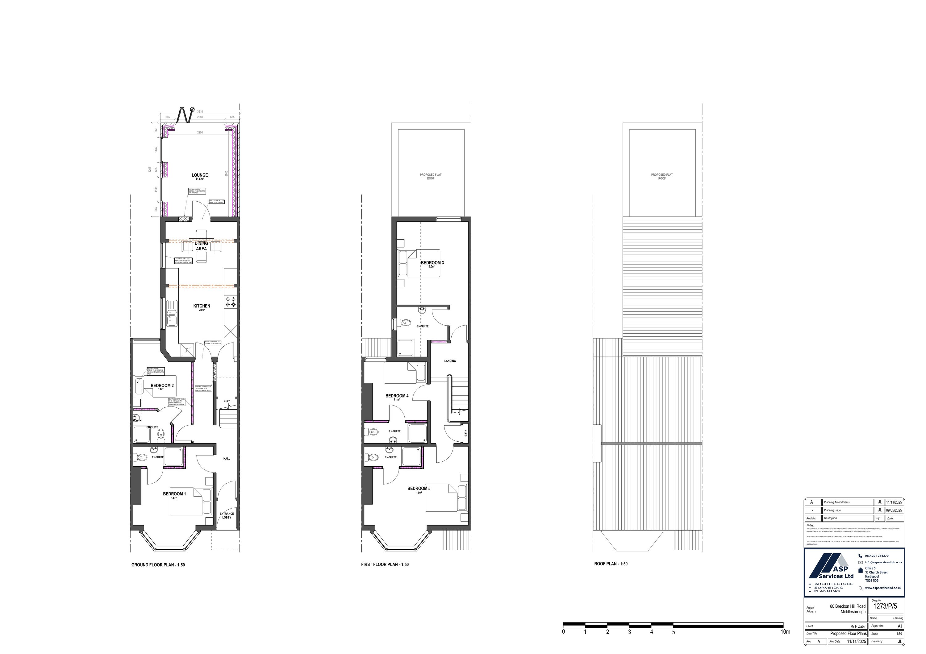
Change of use from dwelling to 5 bed HMO including single storey extension to rear

Documents

1273 - P - 6 - Proposed Elevations - Rev A
Revised Drawing
Not archived · Council Link
1273 - P - 8 - Proposed Block Plan - Rev A
Revised Drawing
Not archived · Council Link
1273 P 6 Proposed Elevations Rev A.
Revised Drawing
Not archived · Council Link
Revised Drawing
Archived · Council Link
1273 P 8 Proposed Block Plan Rev A.
Revised Drawing
Not archived · Council Link
Application form redacted
Application Form
Not archived · Council Link
Consultee Notification List
Consultation Notification List
Not archived · Council Link
Decision Notice
Decision
Not archived · Council Link
Design & access statement
Supporting Documents
Not archived · Council Link
Existing block plan Dwg no. 1273/P/4
Drawing
Not archived · Council Link
Existing elevations Dwg no. 1273/P/2
Drawing
Not archived · Council Link
Existing floor plans Dwg no. 1273/P/1
Drawing
Not archived · Council Link
Location plan Dwg no. 1273/SLP
Drawing
Not archived · Council Link
Neighbour Notification List
Neighbour Notification List
Not archived · Council Link
Officer Report
Photograph
Not archived · Council Link
Proposed block plan Dwg no. 1273/P/8
Drawing
Not archived · Council Link
Proposed elevations Dwg no. 1273/P/6
Drawing
Not archived · Council Link

Take Action

Make your voice heard. Authorities need to hear from people who support new homes.

✉️ Write Email in Support View on Council Portal