← Back to Middlesbrough Council

Status

Pending Consideration New housing
Received
Last month
New dwellings
2

Full Proposal

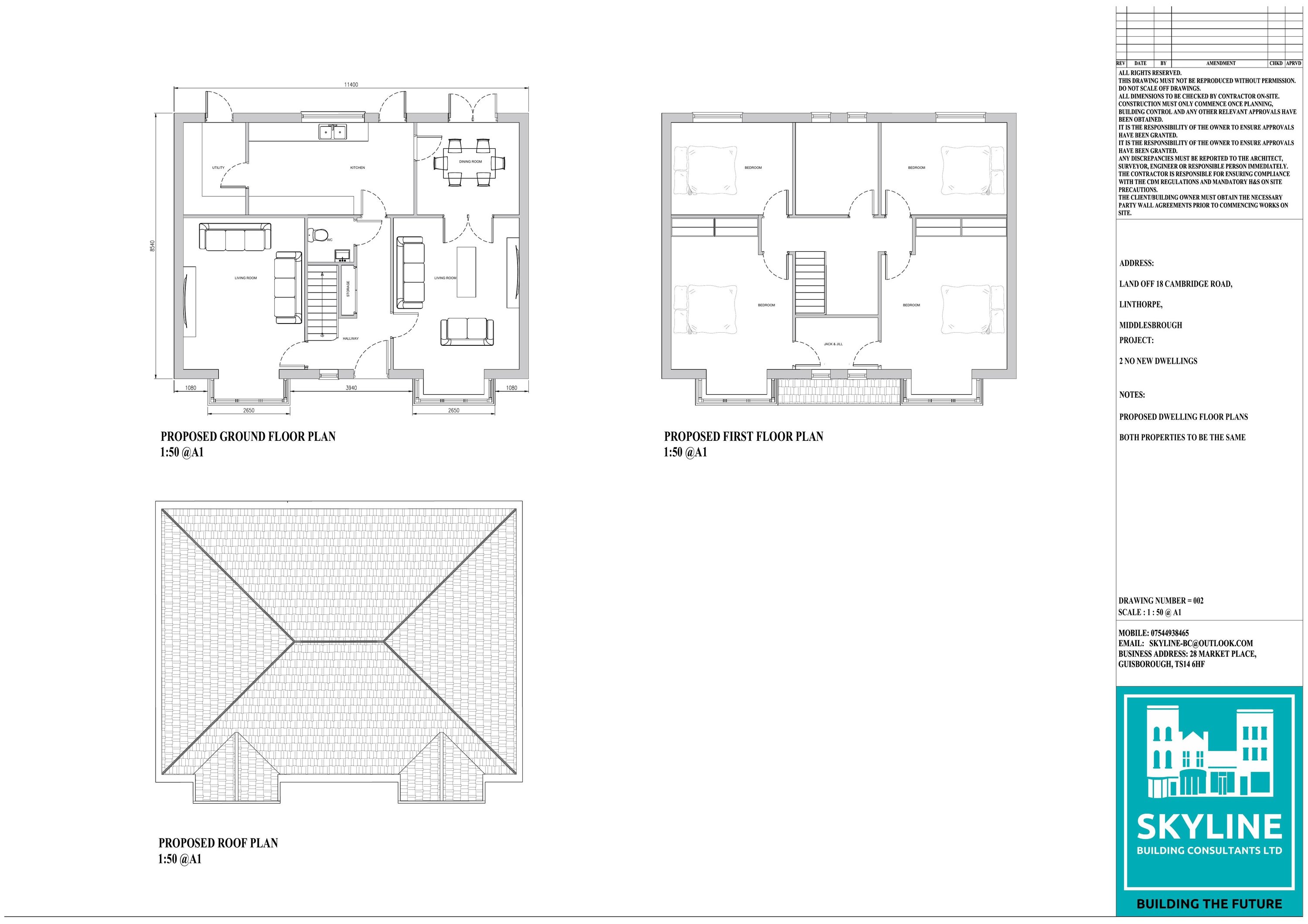
Erection of 2no 4 bedroom detached dwelling houses, Including installation of driveway and detached shared garage

Documents

Application form redacted
Application Form
Not archived · Council Link
Consultee Notification List
Consultation Notification List
Not archived · Council Link
Design & access statement
Supporting Documents
Not archived · Council Link
Heritage statement
Supporting Documents
Not archived · Council Link
Location plan
Drawing
Not archived · Council Link
Location plan
Drawing
Not archived · Council Link
Neighbour Notification List
Neighbour Notification List
Not archived · Council Link
Proposed elevations Dwg no. 003
Drawing
Not archived · Council Link
Proposed garage plans & elevations Dwg no. 001
Drawing
Not archived · Council Link
Site notice
Site Notice
Not archived · Council Link

Take Action

Make your voice heard. Authorities need to hear from people who support new homes.

✉️ Write Email in Support View on Council Portal