← Back to Monmouthshire County Council

Status

Pending Consideration Change of use
Received
14 Nov 2025
New dwellings
1

Full Proposal

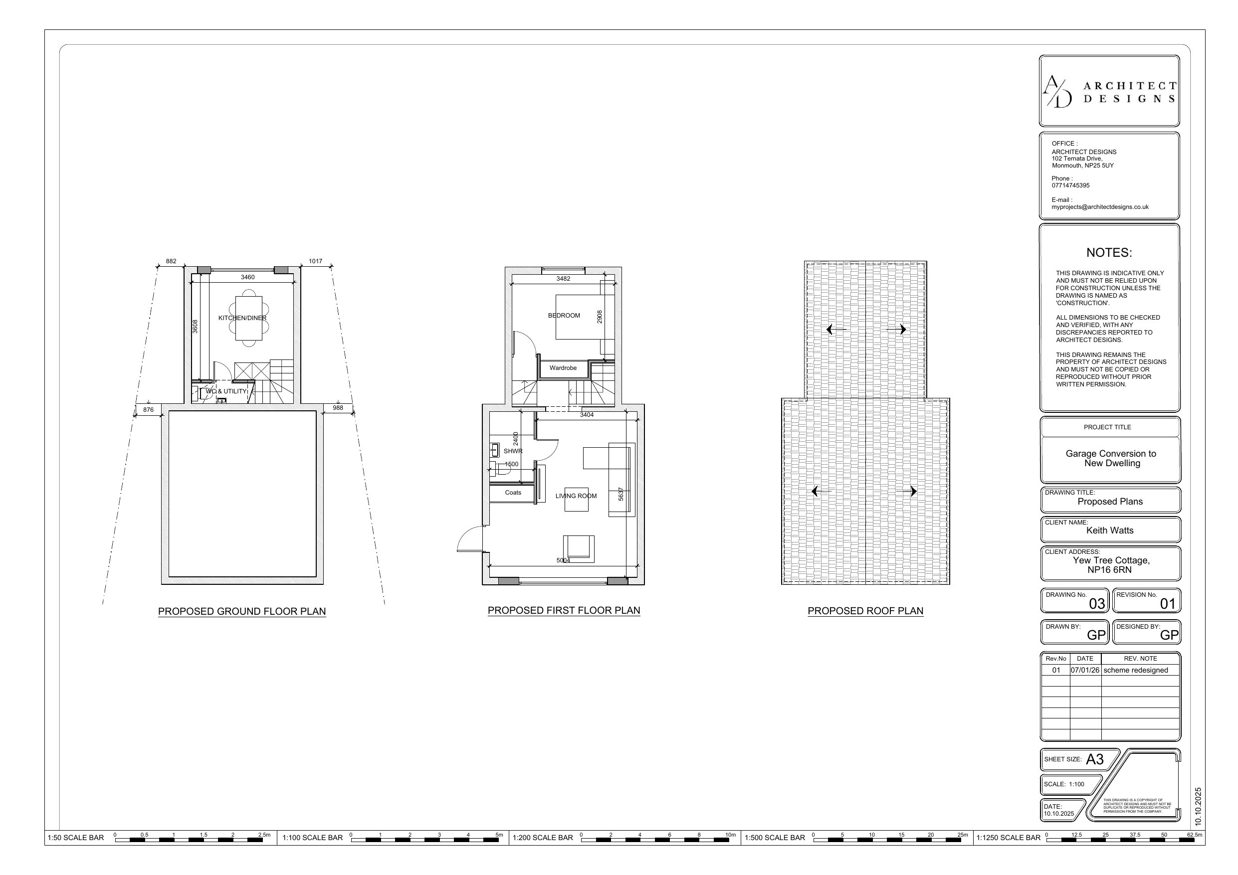
Garage Conversion to 1 Bed Dwelling House

Documents

APPLICATION FORM
Application Form
Not archived · Council Link
BIKE AND BINS
Drawing
Not archived · Council Link
BIODIVERSITY PLAN
Drawing
Not archived · Council Link
COMMENT - MCC CLLR L BROWN
Consultee Comment
Not archived · Council Link
COMMENTS - CLLR BROWN
Consultee Comment
Not archived · Council Link
COMMENTS - DWR CYMRU/WELSH WATER
Consultee Comment
Not archived · Council Link
COMMENTS - HIGHWAYS & FLOOD MANAGEMENT
Consultee Comment
Not archived · Council Link
COMMENTS - WELSH WATER
Consultee Comment
Not archived · Council Link
CONCERNS - SHIRENEWTON COMMUNITY COUNCIL
Consultee Comment
Not archived · Council Link
EXISTING ELEVATIONS
Drawing
Not archived · Council Link
EXISTING FLOOR PLANS
Drawing
Not archived · Council Link
Drawing
Archived · Council Link
LOCATION PLAN
OS Extract
Not archived · Council Link
MCC ECOLOGY
Consultee Comment
Not archived · Council Link
MCC HIGHWAYS COMMENT
Consultee Comment
Not archived · Council Link
OBJECTION - 05/12/2025
Objection Comment
Not archived · Council Link
OBJECTION - MCC HIGHWAYS
Consultee Comment
Not archived · Council Link
ONLINE COMMENT - 2:15 PM
Public Comment
Not archived · Council Link
ONLINE COMMENT 09:12
Public Comment
Not archived · Council Link
ONLINE COMMENT 13:16
Public Comment
Not archived · Council Link
ONLINE COMMENT 13:34
Public Comment
Not archived · Council Link
PROPOSED ELEVATIONS
Amended Document
Not archived · Council Link
PROPOSED ELEVATIONS
Drawing
Not archived · Council Link
Amended Document
Archived · Council Link
Drawing
Archived · Council Link
Drawing
Archived · Council Link
Amended Document
Archived · Council Link
SHIRENEWTON CC RESPONSE
Consultee Comment
Not archived · Council Link

Take Action

Make your voice heard. Authorities need to hear from people who support new homes.

✉️ Write Email in Support View on Council Portal