← Back to New Forest National Park Authority

Status

Extension of Time Change of use
Received
18 Sep 2025
New dwellings
4

Summary

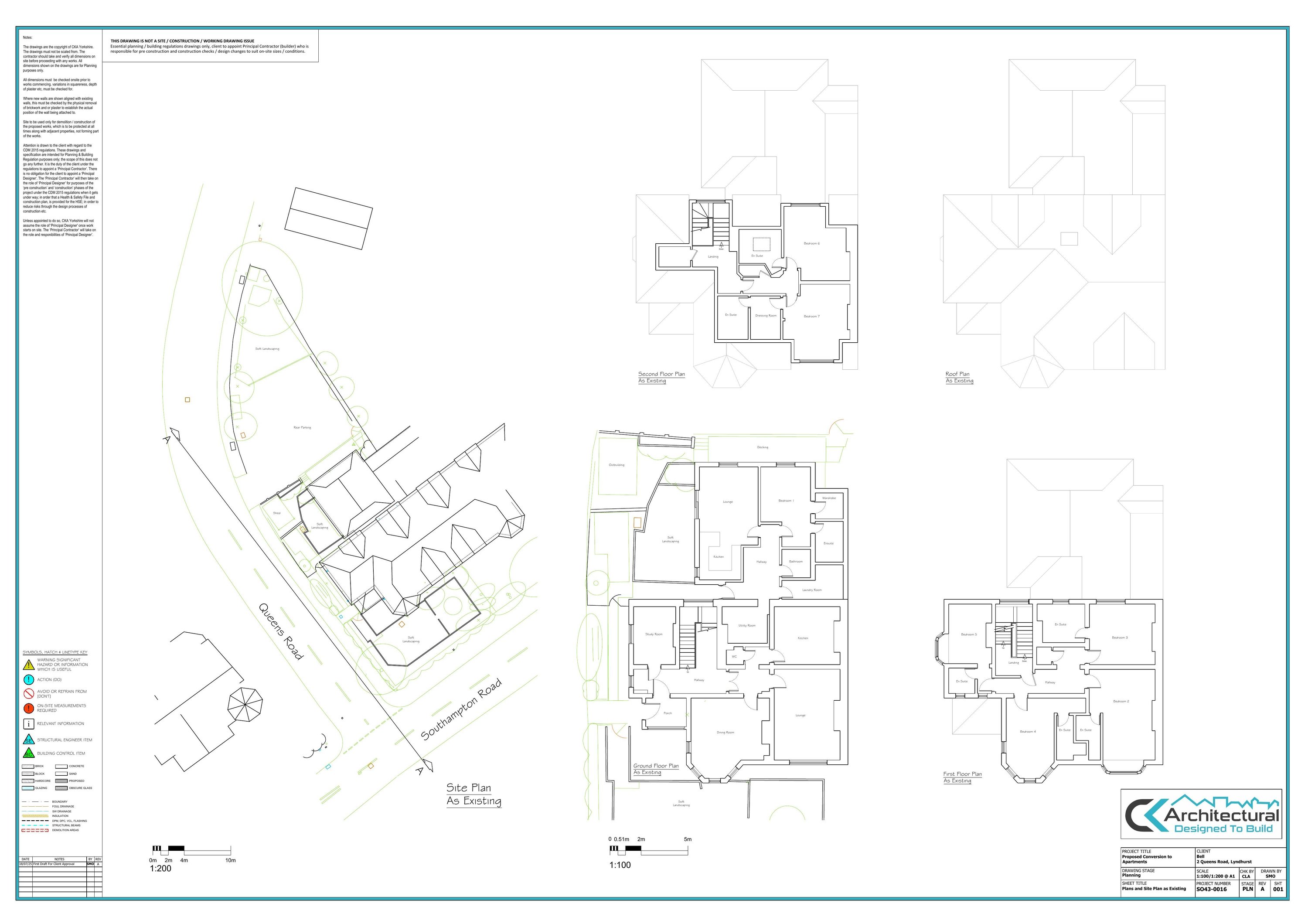
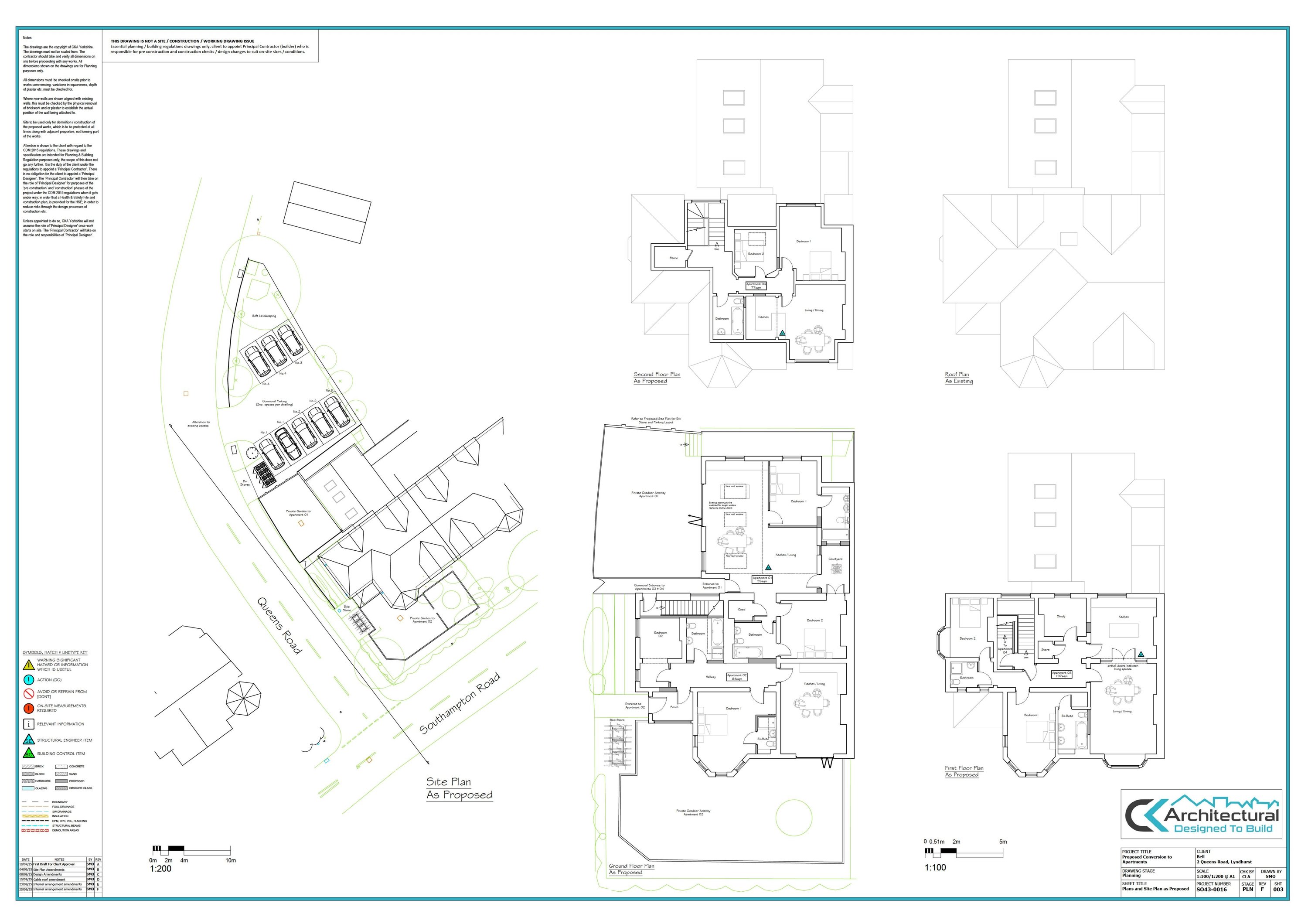
Change of use to four flats with roof alterations, access, parking and landscaping.

Full Proposal

Change of use to 4no flats; roof alterations to existing single storey extension; access alteration; parking; landscaping

Documents

Application for Planning Permission Form
Application Form
Not archived · Council Link
Biodiversity Checklist
BackGround Papers
Not archived · Council Link
Existing Elevations & Street Scene A-A
Drawing
Not archived · Council Link
Existing Roof Plan
Drawing
Not archived · Council Link
Planning & Heritage Statement
BackGround Papers
Not archived · Council Link
Proposed Block Plan
Drawing
Not archived · Council Link
Proposed Elevations & Street Scene A-A
Drawing
Not archived · Council Link
Drawing
Archived · Council Link
Sustainability Statement
BackGround Papers
Not archived · Council Link

Take Action

Make your voice heard. Authorities need to hear from people who support new homes.

✉️ Write Email in Support View on Council Portal