← Back to Newark & Sherwood District Council

Status

Decided Change of use
Received
07 Apr 2025
New dwellings
2

Summary

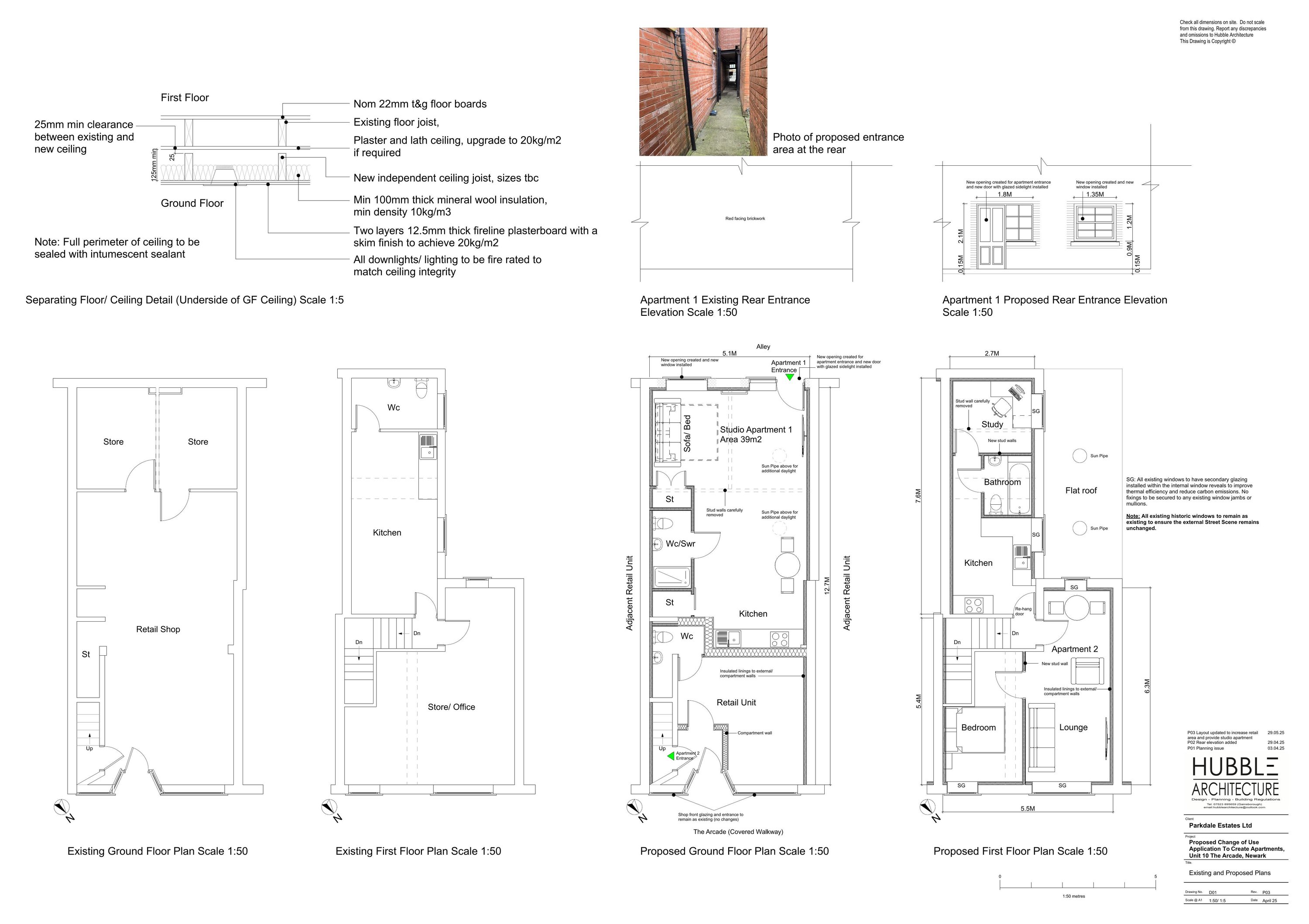
Change of use from retail to provide two residential apartments alongside retained retail.

Full Proposal

Proposed change of use from retail to 2 residential apartments and retail

Documents

APPLICATION FORM - WITHOUT PERSONAL DATA
Application Form
Not archived · Council Link
BIN STORAGE AND CYCLE STORAGE
Drawing or Plan
Not archived · Council Link
CONSERVATION COMMENTS
Consultee Comment
Not archived · Council Link
DECISION
Decision
Not archived · Council Link
DELEGATED REPORT
Officer or File Notes
Not archived · Council Link
DESIGN AND ACCESS STATEMENT INC STATEMENT OF SIGNIFICANCE
Support Information
Not archived · Council Link
DOOR TYPES
Drawing or Plan
Not archived · Council Link
Revised Drawing
Archived · Council Link
HISTORIC ENGLAND
Consultee Comment
Not archived · Council Link
INSTALLATION METHODOLOGY STATEMENT
Support Information
Not archived · Council Link
NEWARK TOWN COUNCIL
Consultee Comment
Not archived · Council Link
Site Location Plan
Archived · Council Link

Take Action

Make your voice heard. Authorities need to hear from people who support new homes.

✉️ Write Email in Support View on Council Portal