← Back to Newark & Sherwood District Council

Status

Decided Change of use
Received
08 Aug 2025
New dwellings
0

Summary

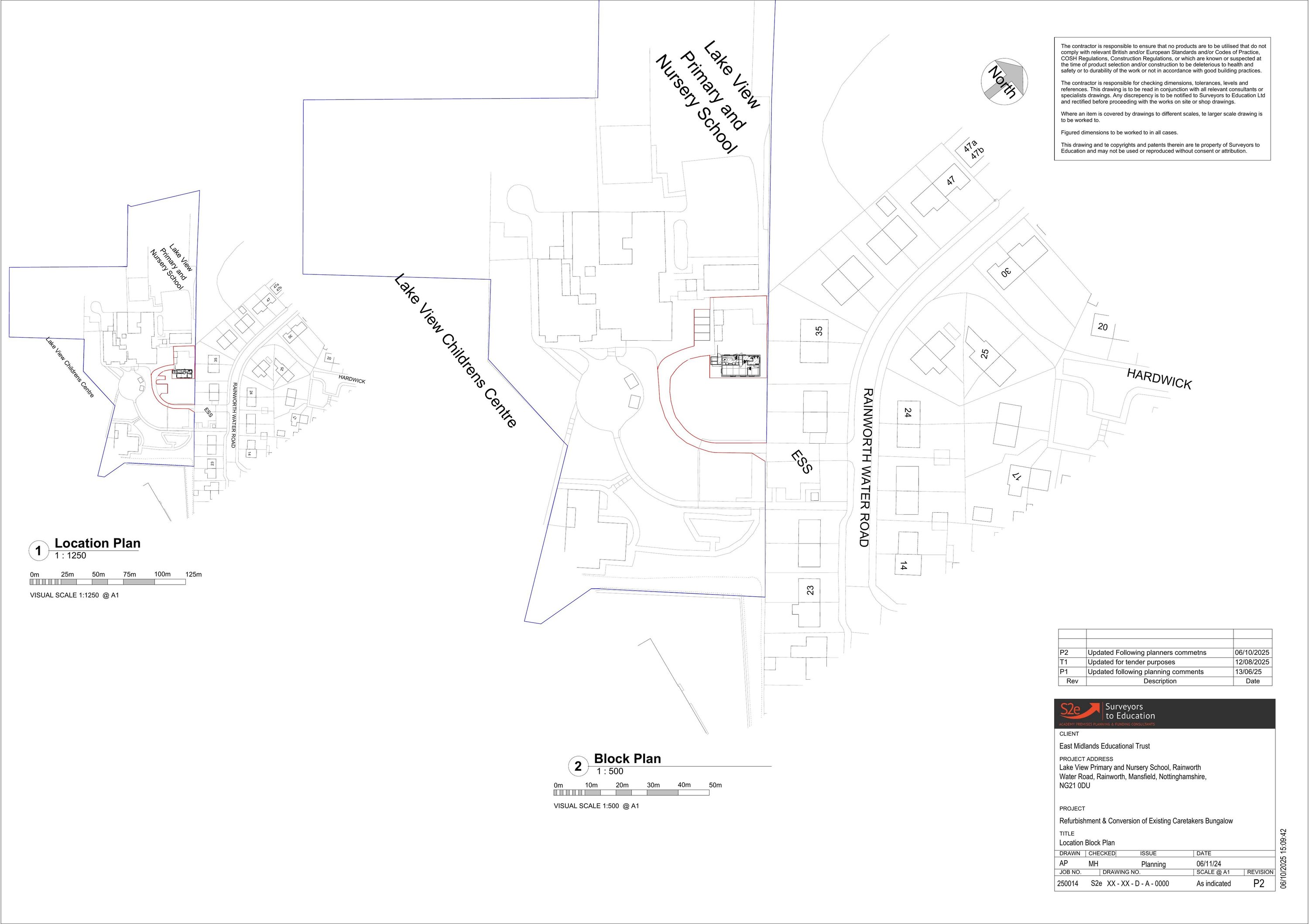
Change use of detached bungalow from dwelling (C3) to children's day nursery (Use Class E(f)).

Full Proposal

Proposed change of use of the existing detached Bungalow from residential (Use Class C3) to a children's day nursery (Use Class E(f)).

Documents

APPLICATION FORM - WITHOUT PERSONAL DATA
Application Form
Not archived · Council Link
COMMENTS FROM HIGHWAYS
Consultee Comment
Not archived · Council Link
COMMENTS FROM HIGHWAYS
Consultee Comment
Not archived · Council Link
Decision
Decision
Not archived · Council Link
Drawing or Plan Superseded
Archived · Council Link
EXISTING ELEVATIONS
Drawing or Plan
Not archived · Council Link
FLOOR PLAN - EXISTING
Drawing or Plan
Not archived · Council Link
Officer or File Notes
Officer or File Notes
Not archived · Council Link
PLANNING STATEMENT
Support Information
Not archived · Council Link
PROPOSED ELEVATIONS
Drawing or Plan
Not archived · Council Link
PROPOSED FLOOR PLAN
Drawing or Plan
Not archived · Council Link
RAINWORTH PARISH COMMENTS
Consultee Comment
Not archived · Council Link
RAINWORTH PARISH COMMENTS
Consultee Comment
Not archived · Council Link
REVISED EXISTING & PROPOSED BLOCK PLAN
Revised Drawing
Not archived · Council Link
Drawing or Plan Superseded
Archived · Council Link

Take Action

Make your voice heard. Authorities need to hear from people who support new homes.

✉️ Write Email in Support View on Council Portal