← Back to Newark & Sherwood District Council
Status
Registered
New housing
Summary
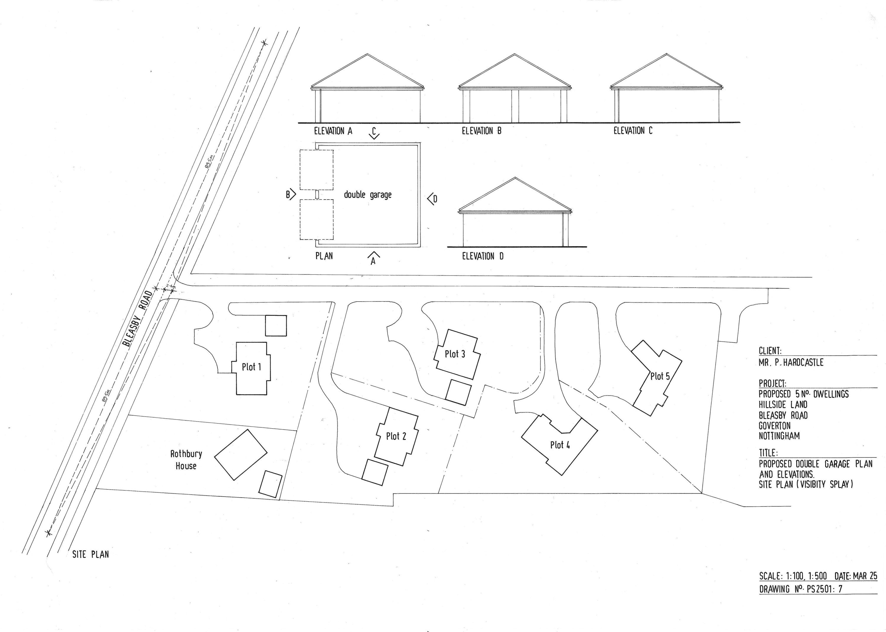
Proposal for 5 new residential units including bungalows and houses.
Full Proposal
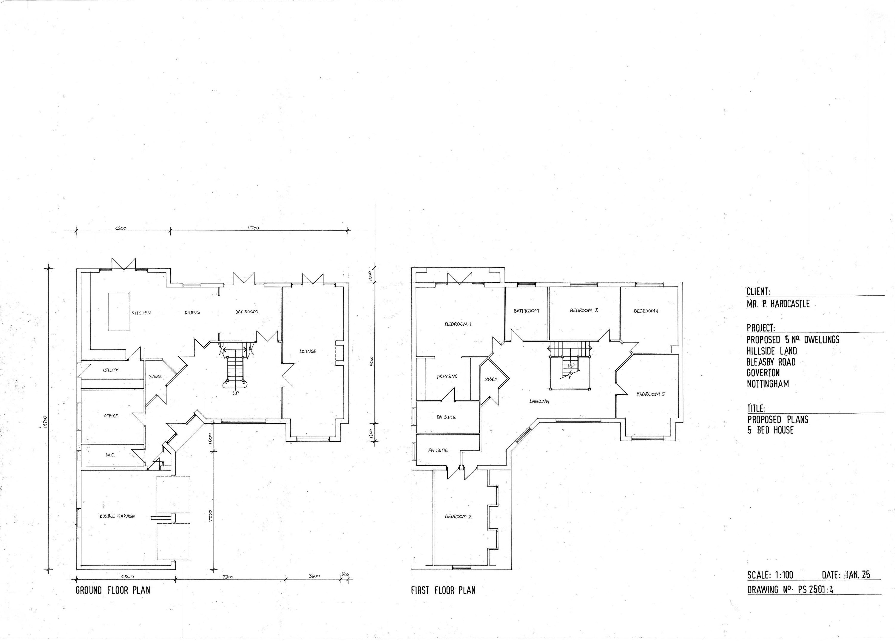
5 new dwellings; 2 x 2 bed bungalows, 1 x 4 bed house and 2 x 5 bed houses including new access road to serve dwellings and access to adjacent land.
Documents
2 BED BUNGALOW PROPOSED FLOOR AND ELEVATIONS PLANS
Drawing or Plan
5 BED HOUSE PROPOSED ELEVATIONS
Drawing or Plan
A RAMSEY
Neighbour or Public Comment
ALISON GLAZEBROOK
Neighbour or Public Comment
APPLICATION FORM - WITHOUT PERSONAL DATA
Application Form
ARCHAEOLOGY COMMENTS
Consultee Comment
B AND P CAST
Neighbour or Public Comment
BARBARA AND PETER CAST
Neighbour or Public Comment
BIODIVERSITY NET GAIN ASSESSMENT
Support Information
C DURNIN
Neighbour or Public Comment
COMMENTS FROM BLEASBY PC
Consultee Comment
COMMENTS FROM CADENT
Consultee Comment
COMMENTS FROM CADENT - MAP
Consultee Comment
COMMENTS FROM PETER CAST - LEAD FLOOD WARDEN FOR BLEASBY
Consultee Comment
D F COOPER
Neighbour or Public Comment
D PIGGIN
Neighbour or Public Comment
DESIGN GUIDE FOR BUILDING GABION RETAINING WALLS
Support Information
DR M MANDHAR
Neighbour or Public Comment
DR NITA MANDHAR
Neighbour or Public Comment
FLOOD RISK ASSESSMENT
Support Information
H DAVIES
Neighbour or Public Comment
J BELL
Neighbour or Public Comment
J THOMPSON
Neighbour or Public Comment
J WILSON
Neighbour or Public Comment
K COSTELLOE
Neighbour or Public Comment
L CLARK
Neighbour or Public Comment
LAUREN CLARK
Neighbour or Public Comment
LOCATION PLAN
Site Location Plan
M AND J BELL
Neighbour or Public Comment
M AND M TIERNEY
Neighbour or Public Comment
MR & MRS BENNETT
Neighbour or Public Comment
MR & MRS KING
Neighbour or Public Comment
MR ALAN DODD
Neighbour or Public Comment
MR MARTIN GILL
Neighbour or Public Comment
MRS CAROL BURTON
Neighbour or Public Comment
MRS J HILLARY
Neighbour or Public Comment
NCC FLOOD TEAM
Consultee Comment
NCC HIGHWAYS
Consultee Comment
NSDC TREE CONSULTANT
Consultee Comment
P ANDERSON
Neighbour or Public Comment
PLANNING STATEMENT
Support Information
PRE-DEVELOPMENT TREE SURVEY AND SUPPORTING INFO
Support Information
PRELIMINARY ECOLOGICAL APPRAISAL
Support Information
S HARDIMAN
Neighbour or Public Comment
STATUTORY BNG METRIC CALCULATIONS
Support Information
T AND C GIBBONS
Neighbour or Public Comment
TOPOGRAPHICAL SURVEY
Drawing or Plan
Take Action
Make your voice heard. Authorities need to hear from people who support new homes.