← Back to Newark & Sherwood District Council
25/01836/FUL
Newark & Sherwood District Council · IDOX
Status
Awaiting decision
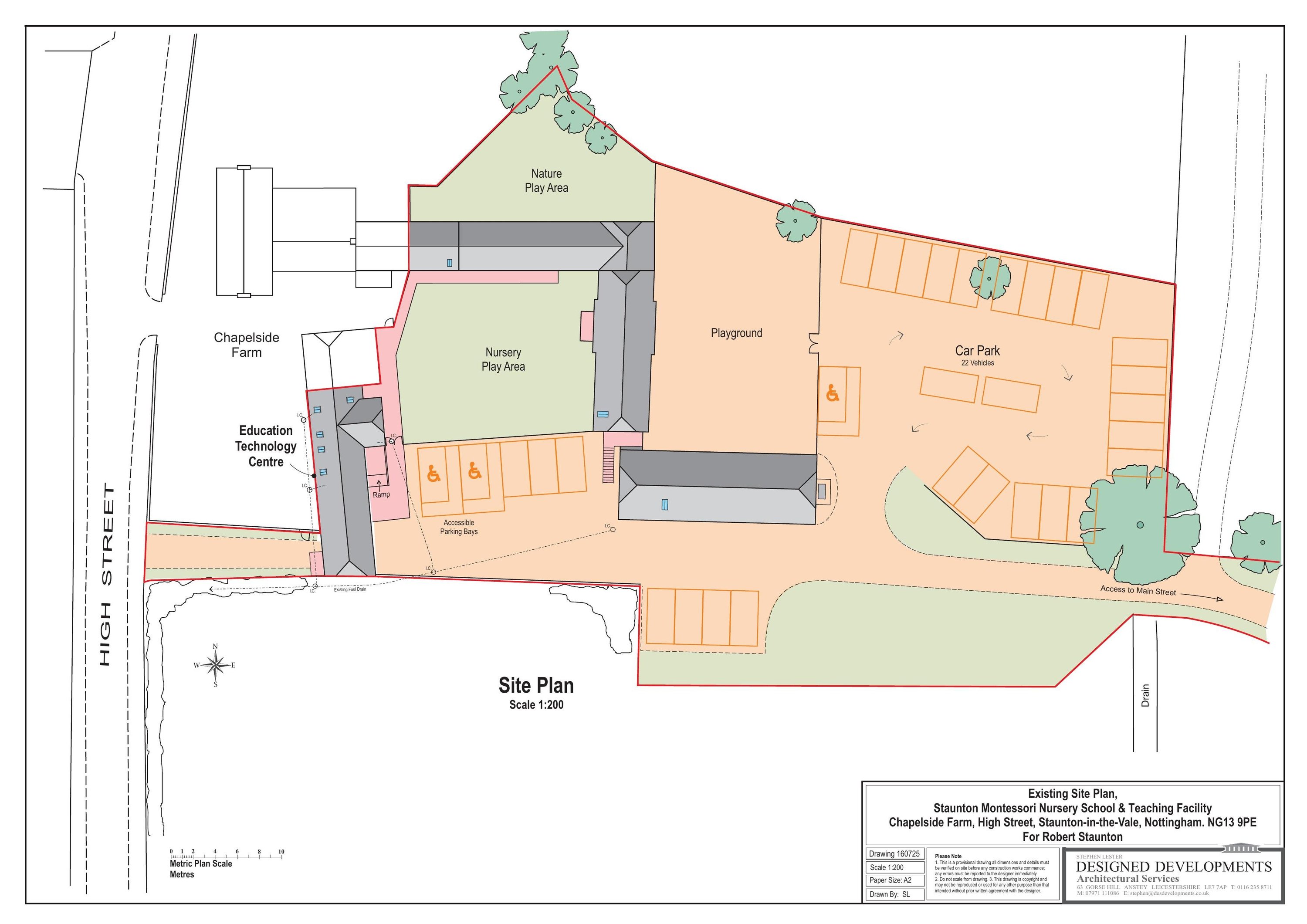
New housing
Received
24 Oct 2025
New dwellings
1
Full Proposal
Proposed new dwelling for caretaker utilising existing access and services
Documents
PLANNING APPLICATION STATEMENT INC DESIGN AND ACCESS STATEMENT
Support Information
Not archived
· Council Link
Take Action
Make your voice heard. Authorities need to hear from people who support new homes.