← Back to Newark & Sherwood District Council

Status

Registered New housing
Received
11 Nov 2025
New dwellings
6

Summary

Residential development of six dwellings.

Full Proposal

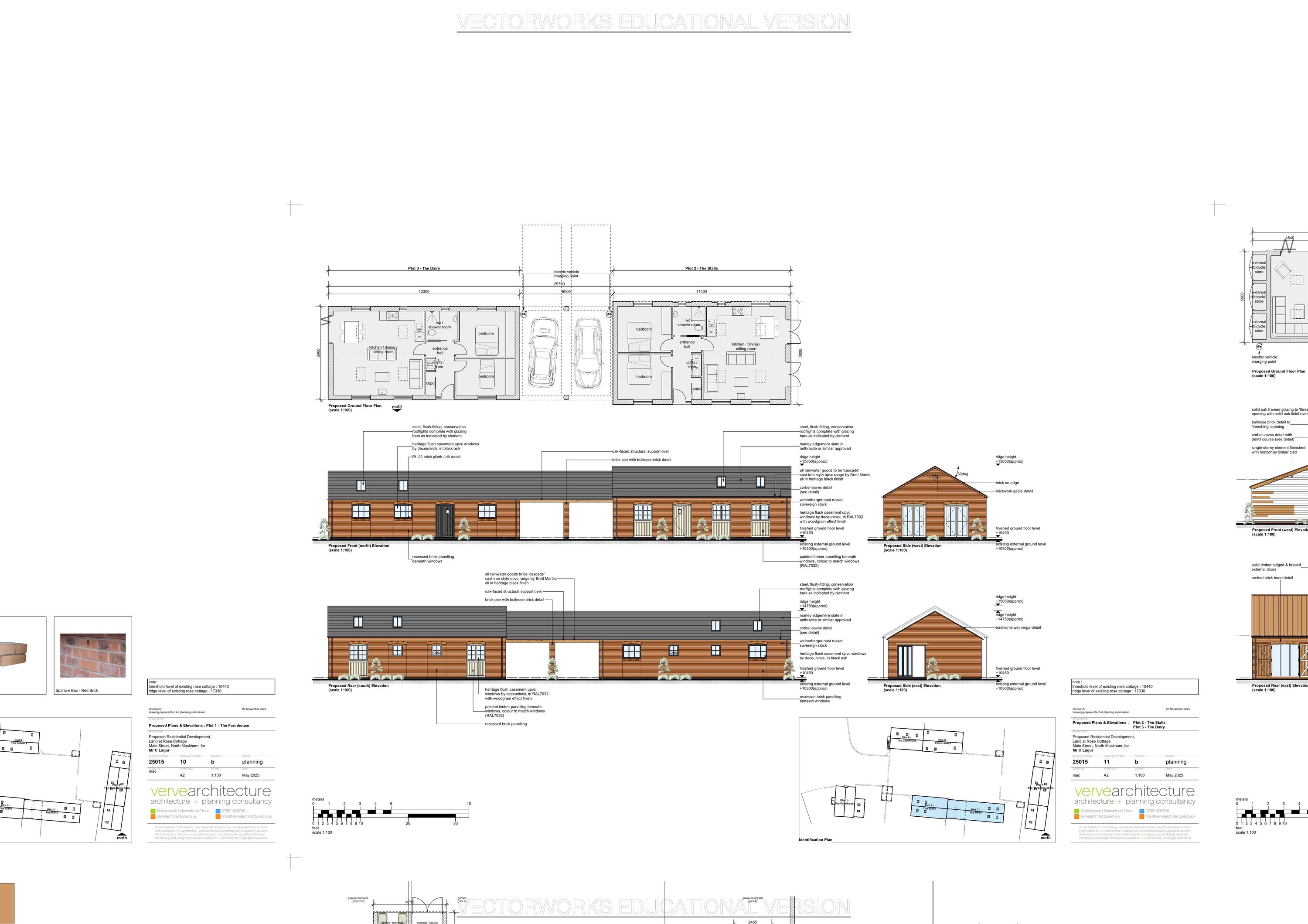
Proposed Residential Development of Six Dwellings

Documents

3D VISUALISATION
Drawing or Plan
Not archived · Council Link
3D VISUALISATION 2
Drawing or Plan
Not archived · Council Link
3D VISUALISATION 3
Drawing or Plan
Not archived · Council Link
3D VISUALISATION 4
Drawing or Plan
Not archived · Council Link
3D VISUALISATION 5
Drawing or Plan
Not archived · Council Link
3D VISUALISATION 6
Drawing or Plan
Not archived · Council Link
APPLICATION FORM - WITHOUT PERSONAL DATA
Application Form
Not archived · Council Link
BIODIVERSITY NET GAIN ASSESSMENT
Support Information
Not archived · Council Link
BOUNDARY WALL, FENCE AND BIN, CYCLE STORE DETAILS
Drawing or Plan
Not archived · Council Link
COMMENTS FROM HIGHWAYS
Consultee Comment
Not archived · Council Link
DRAINAGE STRATEGY REPORT
Support Information
Not archived · Council Link
EAVES, VERGE, WINDOW AND CHIMNEY DETAILS
Drawing or Plan
Not archived · Council Link
ENVIRONMENTAL SERVICES - CONTAMINATED LAND
Consultee Comment
Not archived · Council Link
NORTH MUSKHAM PARISH COUNCIL
Consultee Comment
Not archived · Council Link
PRELIMINARY ECOLOGICAL APPRAISAL
Support Information
Not archived · Council Link
PROPOSED DRAINAGE LAYOUT
Drawing or Plan
Not archived · Council Link
PROPOSED SITE LAYOUT
Drawing or Plan
Not archived · Council Link
STATUTORY BNG METRIC
Support Information
Not archived · Council Link
SUPPORTING STATEMENT
Support Information
Not archived · Council Link
TREE SURVEY
Support Information
Not archived · Council Link

Take Action

Make your voice heard. Authorities need to hear from people who support new homes.

✉️ Write Email in Support View on Council Portal