← Back to Newark & Sherwood District Council
Status
Registered
Demolition
Summary
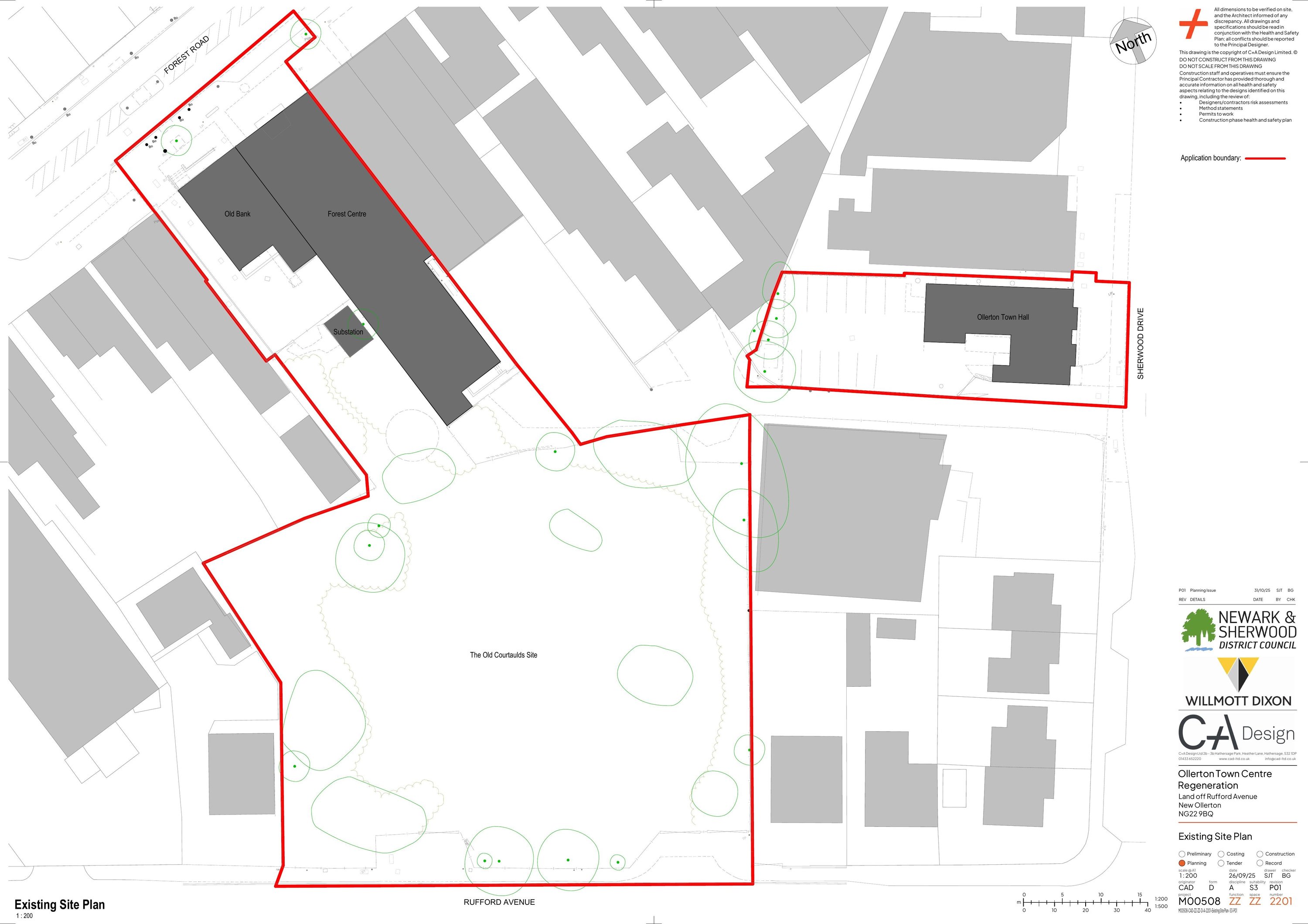
Demolition and mixed-use redevelopment: cinema, retail, office units, public realm, and three dwellings.
Full Proposal
Demolition of The Forest Centre 111 Forest Road, the Former Lloyds TSB Bank Forest Road and the Town Hall, Sherwood Drive, and the erection of a mixed use proposed development including: a cinema/ leisure use/ café building; retail (Class E(a)), customer service/office facilities (class E(c)) and ancillary/shared areas; commercial office units (Class E(c)); and associated infrastructure; landscaping; public realm areas; and the erection of three dwellings with access and parking
Documents
ARBORICULTURAL REPORT
Support Information
BAT ACTIVITY SURVEY REPORT
Support Information
BNG METRIC CALCULATIONS
Support Information
BNG REPORT
Support Information
BUILDING 1-PROPOSED ELEVATIONS-S3-P01
Drawing or Plan
BUILDING 1-PROPOSED SECTIONS-S3-P01
Drawing or Plan
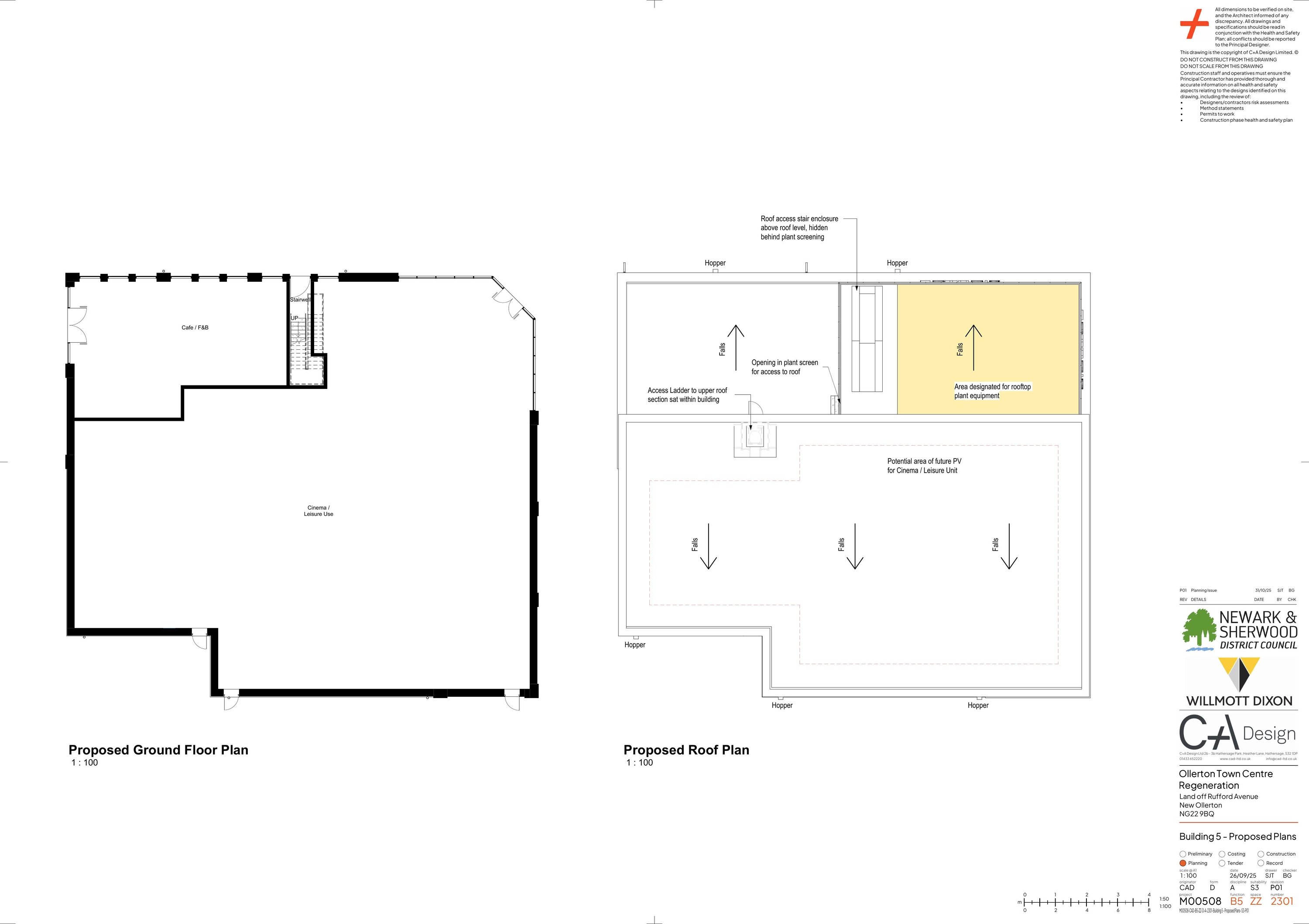
BUILDING 5-PROPOSED ELEVATIONS-S3-P01
Drawing or Plan
BUILDING 5-PROPOSED SECTIONS-S3-P01
Drawing or Plan
CANDENT GAS
Consultee Comment
CANDENT GAS PLAN
Consultee Comment
CCTV SURVEY
Drawing or Plan
CCTV SURVEY REPORT
Support Information
COMMENTS FROM OLLERTON TC
Consultee Comment
DEMOLITION PLAN-S3-P01
Drawing or Plan
DRAINAGE STRATEGY P06
Drawing or Plan
ENVIRONMENTAL SERVICES - CONTAMINATED LAND
Consultee Comment
EXTERNAL LIGHTING
Drawing or Plan
EXTERNAL WORKS GENERAL ARRANGEMENT P02
Drawing or Plan
FOREST CENTRE EXISTING ELEVATIONS-S3-P01
Drawing or Plan
FOREST CENTRE EXISTING PLANS-S3-P01
Drawing or Plan
FOREST ROAD STREET SCENE-S3-P01
Drawing or Plan
GENERAL ARRANGEMENT PLAN P03
Drawing or Plan
LANDSCAPE STRATEGY
Drawing or Plan
LOCATION PLAN
Site Location Plan
MANHOLE SCHEDULE P03
Drawing or Plan
MRS DAWN TURNER
Neighbour or Public Comment
NSDC CONSERVATION
Consultee Comment
NSDC ENV HEALTH
Consultee Comment
OLD BANK EXISTING ELEVATIONS-S3-P01
Drawing or Plan
OLD BANK EXISTING PLANS-S3-P01
Drawing or Plan
PLANTING STRATEGY
Drawing or Plan
PRELIMINARY ECOLOGICAL APPRAISAL (PEA) SURVEY REPORT
Support Information
PRELIMINARY UNEXPLODED ORDNANCE RISK ASSESSMENT
Support Information
PRIVATE DRAINAGE DETAILS SHEET 1 OF 3 P02
Drawing or Plan
PRIVATE DRAINAGE DETAILS SHEET 2 OF 3 P02
Drawing or Plan
PRIVATE DRAINAGE DETAILS SHEET 3 OF 3 P02
Drawing or Plan
PROPOSED BLOCK PLAN-S3-P01
Drawing or Plan
PROPOSED BOUNDARY TREATMENTS PLAN-S3-P01
Drawing or Plan
PROPOSED LEVELS P04
Drawing or Plan
RESIDENTIAL-PROPOSED ELEVATIONS-S3-P01
Drawing or Plan
RESIDENTIAL-PROPOSED SECTIONS-S3-P01
Drawing or Plan
RIBA STAGE 3 FIRE SAFETY STRATEGY REPORT
Support Information
RUFFORD AVE STREET SCENE-S3-P01
Drawing or Plan
SHERWOOD DRIVE STREET SCENE-S3-P01
Drawing or Plan
TOPOGRAPHICAL SURBEY
Drawing or Plan
TOPOGRAPHICAL SURVEY SHEET 1
Drawing or Plan
TOPOGRAPHICAL SURVEY SHEET 2
Drawing or Plan
TOWN HALL EXISTING ELEVATIONS-S3-P01
Drawing or Plan
TOWN HALL EXISTING PLANS-S3-P01
Drawing or Plan
TREE CONSTRAINTS PLAN-S3-P01
Drawing or Plan
TREE MANAGEMENT SPEC
Support Information
UNDERGROUND SERVICES SURVEY SHEET 2
Drawing or Plan
UNDERGROUND SERVICES SURVEY SHEET1
Drawing or Plan
WASTE COLLECTION STRATEGY-S3-P01
Drawing or Plan
Take Action
Make your voice heard. Authorities need to hear from people who support new homes.