← Back to Newham

Status

Unknown status New housing
Received
n/a
New dwellings
0

Full Proposal

Hybrid planning application for the demolition of all existing buildings and structures to facilitate a mixed-use development comprising: Development in outline (with all matters reserved) for the demolition of existing buildings and structures and construction of a mixed-use development (on the land identified for the Outline Phase as shown on the Phasing Parameter Plan ref: KNR-AAM-ZZ-ZZ-DR-A-10202) consisting of the erection of residential dwellings and ancillary residential facilities (Use Class C3) comprising up to 121,611 sq.m GEA; up to 12,446 sq.m GEA non-residential floorspace comprising flexible commercial, business and service uses (Use Class E / Sui Generis), flexible industrial floorspace (Use Class B2 / B8 / E(g)(iii)), community use (Use Class F2), provision of new pedestrian and vehicular access, public realm, hard and soft landscaping, plant, car and cycle parking and associated infrastructure works including remediation and river wall works and highway works; and Development in full for the construction of a mixed use development (on the land identified for the Detailed Phase as shown on the Phasing Parameter Plan ref: KNR-AAM-ZZ-ZZ-DR-A-10202) comprising 643 residential dwellings and ancillary residential facilities (Use Class C3) comprising 77,643 sqm GEA, within three buildings ranging in height from ground plus 5 storeys to ground plus 17 storeys, non-residential floorspace comprising 2,264 sqm GEA flexible commercial, business and service uses (Use Class E / Sui Generis), 137 sq.m GEA community use (Use Class F2), provision of new pedestrian and vehicular access, public realm, hard and soft landscaping, plant, car and cycle parking and other associated works including highway works. APPLICATION IS ACCOMPANIED BY AN ENVIRONMENTAL STATEMENT APPLICATION EFFECTS THE SETTING OF A LISTED BUILDING RE-CONSULTATION ON AMENDED PLANS AND DOCUMENTATION

Documents

AFFORDABLE HOUSING STATEMENT
Documentation
Not archived · Council Link
AGENT OF CHANGE REPORT - JUNE 2025
Revised Documentation
Not archived · Council Link
AMENITY SPACE PROVISION
Drawing
Not archived · Council Link
APPLICANT RESPONSE TO ARUP COMMENTS ON FLOOD RISK
Revised Documentation
Not archived · Council Link
APPLICATIONFORMREDACTED
Application Form (Public)
Not archived · Council Link
ARBORICULTURAL IMPACT ASSESSMENT
Documentation
Not archived · Council Link
ARBORICULTURAL METHOD STATEMENT
Documentation
Not archived · Council Link
ARUP - 2ND ROUND ES REVIEW
Consultee Comment
Not archived · Council Link
ARUP - ES REVIEW FINAL RESPONSE
Consultee Comment
Not archived · Council Link
ARUP 1ST REVIEW OF ES
Consultee Comment
Not archived · Council Link
AVIATION SAFEGUARDING ASSESSMENT
Documentation
Not archived · Council Link
BAT REPORT
Documentation
Not archived · Council Link
BIODIVERSITY NET GAIN ASSESSMENT
Documentation
Not archived · Council Link
BLACK REDSTART REPORT
Documentation
Not archived · Council Link
BLOCK A - COURTYARD BAY STUDY
Superseded
Not archived · Council Link
BLOCK A - COURTYARD BAY STUDY
Revised Drawing
Not archived · Council Link
BLOCK A - EAST AND WEST COURTYARD ELEVATION
Revised Drawing
Not archived · Council Link
BLOCK A - EAST AND WEST COURTYARD ELEVATION
Superseded
Not archived · Council Link
BLOCK A - EAST COURTYARD ELEVATION
Revised Drawing
Not archived · Council Link
BLOCK A - EAST COURTYARD ELEVATION
Superseded
Not archived · Council Link
BLOCK A - EAST ELEVATION
Superseded
Not archived · Council Link
BLOCK A - EAST ELEVATION
Revised Drawing
Not archived · Council Link
BLOCK A - EAST ELEVATION BAY STUDY
Revised Drawing
Not archived · Council Link
BLOCK A - EAST ELEVATION BAY STUDY
Superseded
Not archived · Council Link
BLOCK A - FLOOR PLANS
Drawing
Not archived · Council Link
BLOCK A - NORTH AND SOUTH COURTYARD ELEVATION
Revised Drawing
Not archived · Council Link
BLOCK A - NORTH AND SOUTH COURTYARD ELEVATION
Superseded
Not archived · Council Link
BLOCK A - NORTH ELEVATION
Superseded
Not archived · Council Link
BLOCK A - NORTH ELEVATION
Revised Drawing
Not archived · Council Link
BLOCK A - NORTH ELEVATION BAY STUDY
Revised Drawing
Not archived · Council Link
BLOCK A - NORTH ELEVATION BAY STUDY
Superseded
Not archived · Council Link
BLOCK A - SECTION AA
Superseded
Not archived · Council Link
BLOCK A - SECTION BB
Revised Drawing
Not archived · Council Link
BLOCK A - SECTION BB
Superseded
Not archived · Council Link
BLOCK A - SECTION CC
Superseded
Not archived · Council Link
BLOCK A - SECTION CC
Revised Drawing
Not archived · Council Link
BLOCK A - SOUTH ELEVATION
Revised Drawing
Not archived · Council Link
BLOCK A - SOUTH ELEVATION
Superseded
Not archived · Council Link
BLOCK A - SOUTH ELEVATION BAY STUDY 01
Superseded
Not archived · Council Link
BLOCK A - SOUTH ELEVATION BAY STUDY 02
Superseded
Not archived · Council Link
BLOCK A - SOUTH ELEVATION BAY STUDY 1
Revised Drawing
Not archived · Council Link
BLOCK A - SOUTH ELEVATION BAY STUDY 2
Revised Drawing
Not archived · Council Link
BLOCK A - WEST ELEVATION
Superseded
Not archived · Council Link
BLOCK A - WEST ELEVATION
Revised Drawing
Not archived · Council Link
BLOCK A - WEST ELEVATION BAY STUDY
Superseded
Not archived · Council Link
BLOCK A - WEST ELEVATION BAY STUDY
Revised Drawing
Not archived · Council Link
BLOCK A SECTION AA
Revised Drawing
Not archived · Council Link
BLOCK A1 - AXO 01
Superseded
Not archived · Council Link
BLOCK A1 - AXO 02
Superseded
Not archived · Council Link
BLOCK A1 - AXO 1
Revised Drawing
Not archived · Council Link
BLOCK A1 - AXO 2
Revised Drawing
Not archived · Council Link
BLOCK A2 - AXO 01
Superseded
Not archived · Council Link
BLOCK A2 - AXO 1
Revised Drawing
Not archived · Council Link
BLOCK A3 - AXO 01
Superseded
Not archived · Council Link
BLOCK A3 - AXO 02
Superseded
Not archived · Council Link
BLOCK A3 - AXO 1
Revised Drawing
Not archived · Council Link
BLOCK A3 - AXO 2
Revised Drawing
Not archived · Council Link
BLOCK A4 - AXO 01
Superseded
Not archived · Council Link
BLOCK A4 - AXO 02
Superseded
Not archived · Council Link
BLOCK A4 - AXO 1
Revised Drawing
Not archived · Council Link
BLOCK A4 - AXO 2
Revised Drawing
Not archived · Council Link
BLOCK B - CHAMFERRED ELEVATION
Revised Drawing
Not archived · Council Link
BLOCK B - CHAMFERRED ELEVATION
Superseded
Not archived · Council Link
BLOCK B - COURTYARD NORTH EAST ELEVATION
Revised Drawing
Not archived · Council Link
BLOCK B - COURTYARD NORTH EAST ELEVATION
Superseded
Not archived · Council Link
BLOCK B - COURTYARD SOUTH ELEVATION
Revised Drawing
Not archived · Council Link
BLOCK B - COURTYARD SOUTH ELEVATION
Superseded
Not archived · Council Link
BLOCK B - COURTYARD WEST ELEVATION
Revised Drawing
Not archived · Council Link
BLOCK B - COURTYARD WEST ELEVATION
Superseded
Not archived · Council Link
BLOCK B - EAST ELEVATION
Superseded
Not archived · Council Link
BLOCK B - EAST ELEVATION
Revised Drawing
Not archived · Council Link
BLOCK B - EAST ELEVATION BAY STUDY 01
Superseded
Not archived · Council Link
BLOCK B - EAST ELEVATION BAY STUDY 02
Superseded
Not archived · Council Link
BLOCK B - EAST ELEVATION BAY STUDY 1
Revised Drawing
Not archived · Council Link
BLOCK B - EAST ELEVATION BAY STUDY 2
Revised Drawing
Not archived · Council Link
BLOCK B - FLOOR PLANS
Drawing
Not archived · Council Link
BLOCK B - GABLE ELEVATIONS
Revised Drawing
Not archived · Council Link
BLOCK B - GABLE ELEVATIONS
Superseded
Not archived · Council Link
BLOCK B - NORTH ELEVATION
Superseded
Not archived · Council Link
BLOCK B - NORTH ELEVATION
Revised Drawing
Not archived · Council Link
BLOCK B - NORTH ELEVATION BAY STUDY 01
Superseded
Not archived · Council Link
BLOCK B - NORTH ELEVATION BAY STUDY 1
Revised Drawing
Not archived · Council Link
BLOCK B - SECTION AA
Superseded
Not archived · Council Link
BLOCK B - SECTION BB
Revised Drawing
Not archived · Council Link
BLOCK B - SECTION BB
Revised Drawing
Not archived · Council Link
BLOCK B - SECTION BB
Superseded
Not archived · Council Link
BLOCK B - SECTION CC
Superseded
Not archived · Council Link
BLOCK B - SECTION CC
Revised Drawing
Not archived · Council Link
BLOCK B - SOUTH ELEVATION
Revised Drawing
Not archived · Council Link
BLOCK B - SOUTH ELEVATION
Superseded
Not archived · Council Link
BLOCK B - SOUTH ELEVATION BAY STUDY 01
Superseded
Not archived · Council Link
BLOCK B - SOUTH ELEVATION BAY STUDY 1
Revised Drawing
Not archived · Council Link
BLOCK B - WEST ELEVATION
Revised Drawing
Not archived · Council Link
BLOCK B - WEST ELEVATION
Superseded
Not archived · Council Link
BLOCK B - WEST ELEVATION BAY STUDY 01
Superseded
Not archived · Council Link
BLOCK B - WEST ELEVATION BAY STUDY 02
Superseded
Not archived · Council Link
BLOCK B - WEST ELEVATION BAY STUDY 03
Superseded
Not archived · Council Link
BLOCK B - WEST ELEVATION BAY STUDY 1
Revised Drawing
Not archived · Council Link
BLOCK B - WEST ELEVATION BAY STUDY 2
Revised Drawing
Not archived · Council Link
BLOCK B - WEST ELEVATION BAY STUDY 3
Revised Drawing
Not archived · Council Link
BLOCK B2 - AXO 01
Superseded
Not archived · Council Link
BLOCK B2 - AXO 02
Drawing
Not archived · Council Link
BLOCK B2 - AXO 1
Revised Drawing
Not archived · Council Link
BLOCK B2 - AXO 2
Revised Drawing
Not archived · Council Link
BLOCK B3 - AXO 2
Revised Drawing
Not archived · Council Link
BLOCK B3 AND B4 - AXO 01
Drawing
Not archived · Council Link
BLOCK B3 AXO 02
Superseded
Not archived · Council Link
BLOCK B4 - AXO 3
Revised Drawing
Not archived · Council Link
BLOCK B4 - AXO 4
Revised Drawing
Not archived · Council Link
BLOCK B4 AXO 03
Superseded
Not archived · Council Link
BLOCK B4 AXO 04
Superseded
Not archived · Council Link
BLOCK B5 - AXO 01
Superseded
Not archived · Council Link
BLOCK B5 - AXO 1
Revised Drawing
Not archived · Council Link
BLOCK L - AXO 01
Superseded
Not archived · Council Link
BLOCK L - AXO 02
Superseded
Not archived · Council Link
BLOCK L - AXO 1
Revised Drawing
Not archived · Council Link
BLOCK L - AXO 2
Revised Drawing
Not archived · Council Link
BLOCK L - EAST ELEVATION
Superseded
Not archived · Council Link
BLOCK L - EAST ELEVATION
Revised Drawing
Not archived · Council Link
BLOCK L - EAST ELEVATION BAY STUDY
Superseded
Not archived · Council Link
BLOCK L - EAST ELEVATION BAY STUDY 1
Revised Drawing
Not archived · Council Link
BLOCK L - FLOORPLANS
Drawing
Not archived · Council Link
BLOCK L - NORTH ELEVATION
Revised Drawing
Not archived · Council Link
BLOCK L - NORTH ELEVATION
Superseded
Not archived · Council Link
BLOCK L - NORTH ELEVATION BAY STUDY
Superseded
Not archived · Council Link
BLOCK L - NORTH ELEVATION BAY STUDY 1
Revised Drawing
Not archived · Council Link
BLOCK L - SECTION AA
Revised Drawing
Not archived · Council Link
BLOCK L - SECTION PLANS AA BB CC
Superseded
Not archived · Council Link
BLOCK L - SECTIONS BB AND CC
Revised Drawing
Not archived · Council Link
BLOCK L - SOUTH ELEVATION
Revised Drawing
Not archived · Council Link
BLOCK L - SOUTH ELEVATION
Superseded
Not archived · Council Link
BLOCK L - WEST ELEVATION
Superseded
Not archived · Council Link
BLOCK L - WEST ELEVATION
Revised Drawing
Not archived · Council Link
BNG METRIC - PHASE 1
Documentation
Not archived · Council Link
BNG METRIC - SITE WIDE
Documentation
Not archived · Council Link
BNPP FVA REVIEW
Consultee Comment
Not archived · Council Link
BNPP FVA REVIEW - AUG 2025
Consultee Comment
Not archived · Council Link
BREEAM PRE-ASSESSMENT
Documentation
Not archived · Council Link
BUILDING HEIGHTS PARAMETER PLAN
Drawing
Not archived · Council Link
CADANT
Consultee Comment
Not archived · Council Link
CADENT
Consultee Comment
Not archived · Council Link
CANAL & RIVER TRUST
Consultee Comment
Not archived · Council Link
CANAL AND RIVER TRUST
Consultee Comment
Not archived · Council Link
CAR PARKING PROVISION
Drawing
Not archived · Council Link
CARBON EMISSIONS CALCULATIONS
Revised Documentation
Not archived · Council Link
CARBON EMISSIONS REPORTING
Documentation
Not archived · Council Link
CHAPTER 9 - ACOUSTIC DESIGN REPORT PART 1
Revised Environmental Statement
Not archived · Council Link
CHAPTER 9 - ACOUSTIC DESIGN REPORT PART 2
Revised Environmental Statement
Not archived · Council Link
CHAPTER 9 - ACOUSTIC DESIGN REPORT PART 3
Revised Environmental Statement
Not archived · Council Link
CHAPTER 9 - ACOUSTIC DESIGN REPORT PART 4
Revised Environmental Statement
Not archived · Council Link
CHAPTER 9 - ACOUSTIC DESIGN REPORT PART 5
Revised Environmental Statement
Not archived · Council Link
CHAPTER 9 - ACOUSTIC DESIGN REPORT PART 6
Revised Environmental Statement
Not archived · Council Link
CHAPTER 9 - NOISE AND VIBRATION - UPDATED
Revised Environmental Statement
Not archived · Council Link
CHAPTER 9 - NOISE MITIGATION THVIA
Revised Environmental Statement
Not archived · Council Link
CHAPTER 9 - PRIMROSE WHARF TRAFFIC ASSESSMENT
Revised Environmental Statement
Not archived · Council Link
CHAPTER 9 - SUPPLEMENTARY INFORMATION REPORT
Revised Environmental Statement
Not archived · Council Link
CIRCULAR ECONOMY CALCULATIONS
Revised Documentation
Not archived · Council Link
CIRCULAR ECONOMY REPORT - MARCH 2025
Revised Documentation
Not archived · Council Link
CIRCULAR ECONOMY REPORTING SPREADSHEET
Revised Documentation
Not archived · Council Link
CIRCULAR ECONOMY STATEMENT MATRIX
Superseded
Not archived · Council Link
CIRCULAR ECONOMY STRATEGY
Superseded
Not archived · Council Link
Drawing
Archived · Council Link
CONSTRUCTION ENVIRONMENTAL MANAGEMENT PLAN
Documentation
Not archived · Council Link
CONSTRUCTION LOGISTICS PLAN
Documentation
Not archived · Council Link
COVERING LETTER
Superseded
Not archived · Council Link
COVERING LETTER - JUNE 2025
Revised Documentation
Not archived · Council Link
CROSSRAIL
Consultee Comment
Not archived · Council Link
CROSSRAIL
Consultee Comment
Not archived · Council Link
CYCLE STORAGE PROVISION
Drawing
Not archived · Council Link
DAS ADDENDUM PART 1
Revised Documentation
Not archived · Council Link
DAS ADDENDUM PART 2
Revised Documentation
Not archived · Council Link
DAS ADDENDUM PART 3
Revised Documentation
Not archived · Council Link
DAS ADDENDUM PART 4
Revised Documentation
Not archived · Council Link
DAS ADDENDUM PART 5
Revised Documentation
Not archived · Council Link
DAS ADDENDUM PART 6
Revised Documentation
Not archived · Council Link
DAS ADDENDUM PART 7
Revised Documentation
Not archived · Council Link
DAS ADDENDUM PART 8
Revised Documentation
Not archived · Council Link
DAS PART 1
Documentation
Not archived · Council Link
DAS PART 2
Documentation
Not archived · Council Link
DAS PART 3
Documentation
Not archived · Council Link
DAS PART 4
Documentation
Not archived · Council Link
DAS PART 5
Documentation
Not archived · Council Link
DAS PART 6
Documentation
Not archived · Council Link
DAS PART 7
Documentation
Not archived · Council Link
DAS PART 8
Documentation
Not archived · Council Link
DECARBONISATION PLAN
Revised Documentation
Not archived · Council Link
DECARBONISATION STRATEGY - APRIL 2025
Superseded
Not archived · Council Link
Drawing
Archived · Council Link
DESIGN CODE
Documentation
Not archived · Council Link
DESIGNING OUT CRIME OFFICE
Consultee Comment
Not archived · Council Link
DETAILED COMPONENT - AREA SCHEDULE
Documentation
Not archived · Council Link
DETAILED COMPONENT - BLOCK A AXO
Superseded
Not archived · Council Link
DETAILED COMPONENT - BLOCK A BAY STUDIES
Superseded
Not archived · Council Link
DETAILED COMPONENT - BLOCK A ELEVATIONS
Superseded
Not archived · Council Link
DETAILED COMPONENT - BLOCK A SECTIONS
Superseded
Not archived · Council Link
DETAILED COMPONENT - BLOCK B AXO
Superseded
Not archived · Council Link
DETAILED COMPONENT - BLOCK B BAY STUDIES
Superseded
Not archived · Council Link
DETAILED COMPONENT - BLOCK B ELEVATIONS PART 1
Superseded
Not archived · Council Link
DETAILED COMPONENT - BLOCK B ELEVATIONS PART 2
Superseded
Not archived · Council Link
DETAILED COMPONENT - BLOCK B SECTIONS
Superseded
Not archived · Council Link
DETAILED COMPONENT - BLOCK L BAY STUDIES
Superseded
Not archived · Council Link
DETAILED COMPONENT - BLOCK L ELEVATIONS
Superseded
Not archived · Council Link
DETAILED COMPONENT - BLOCK L SECTIONS
Drawing
Not archived · Council Link
DETAILED COMPONENT - GEA AREA SCHEDULE BY BUILDING
Documentation
Not archived · Council Link
DETAILED COMPONENT - GIA AREA SCHEDULE BY BUILDING
Documentation
Not archived · Council Link
DETAILED COMPONENT - NIA AREA SCHEDULE BY BUILDING
Documentation
Not archived · Council Link
DETAILED COMPONENT - PART M4(3) HOMES SCHEDULE
Documentation
Not archived · Council Link
DETAILED COMPONENT - SUMMARY UNIT MIX
Documentation
Not archived · Council Link
DETAILED COMPONENT ADOPTED ROADS
Drawing
Not archived · Council Link
DETAILED COMPONENT TENURE PLANS - GROUND, 1ST-5TH, 17TH FLOOR
Drawing
Not archived · Council Link
DETAILED COMPONENT TENURE PLANS LEVELS 13-16
Drawing
Not archived · Council Link
DETAILED COMPONENT TENURE PLANS LEVELS 6-12
Drawing
Not archived · Council Link
DETAILED COMPONENT- SCHEDULE OF ACCOMODATION
Documentation
Not archived · Council Link
DEVELOPMENT SPECIFICATION
Documentation
Not archived · Council Link
ECOLOGICAL IMPACT ASSESSMENT
Documentation
Not archived · Council Link
EMERGENCY VEHICLE ACCESS
Drawing
Not archived · Council Link
EMPLOYMENT AND MARKET ASSESSMENT REPORT
Documentation
Not archived · Council Link
ENERGY REPORTING SPREADSHEET
Revised Documentation
Not archived · Council Link
ENERGY STRATEGY
Superseded
Not archived · Council Link
ENERGY STRATEGY - JUNE 2025
Revised Documentation
Not archived · Council Link
ENVIRONMENT AGENCY
Consultee Comment
Not archived · Council Link
ENVIRONMENT AGENCY
Consultee Comment
Not archived · Council Link
ENVIRONMENT AGENCY
Consultee Comment
Not archived · Council Link
ENVIRONMENTAL STATEMENT REVIEW SPREADSHEET RESPONSES
Revised Documentation
Not archived · Council Link
ES REVIEW RESPONSE APPENDICES
Revised Documentation
Not archived · Council Link
EXISTING AND PROPOSED SITE LEVELS PARAMETER PLAN
Drawing
Not archived · Council Link
EXISTING EAST ELEVATIONS
Drawing
Not archived · Council Link
EXISTING NORTH AND WEST ELEVATIONS
Drawing
Not archived · Council Link
Drawing
Archived · Council Link
EXISTING SOUTH ELEVATIONS
Drawing
Not archived · Council Link
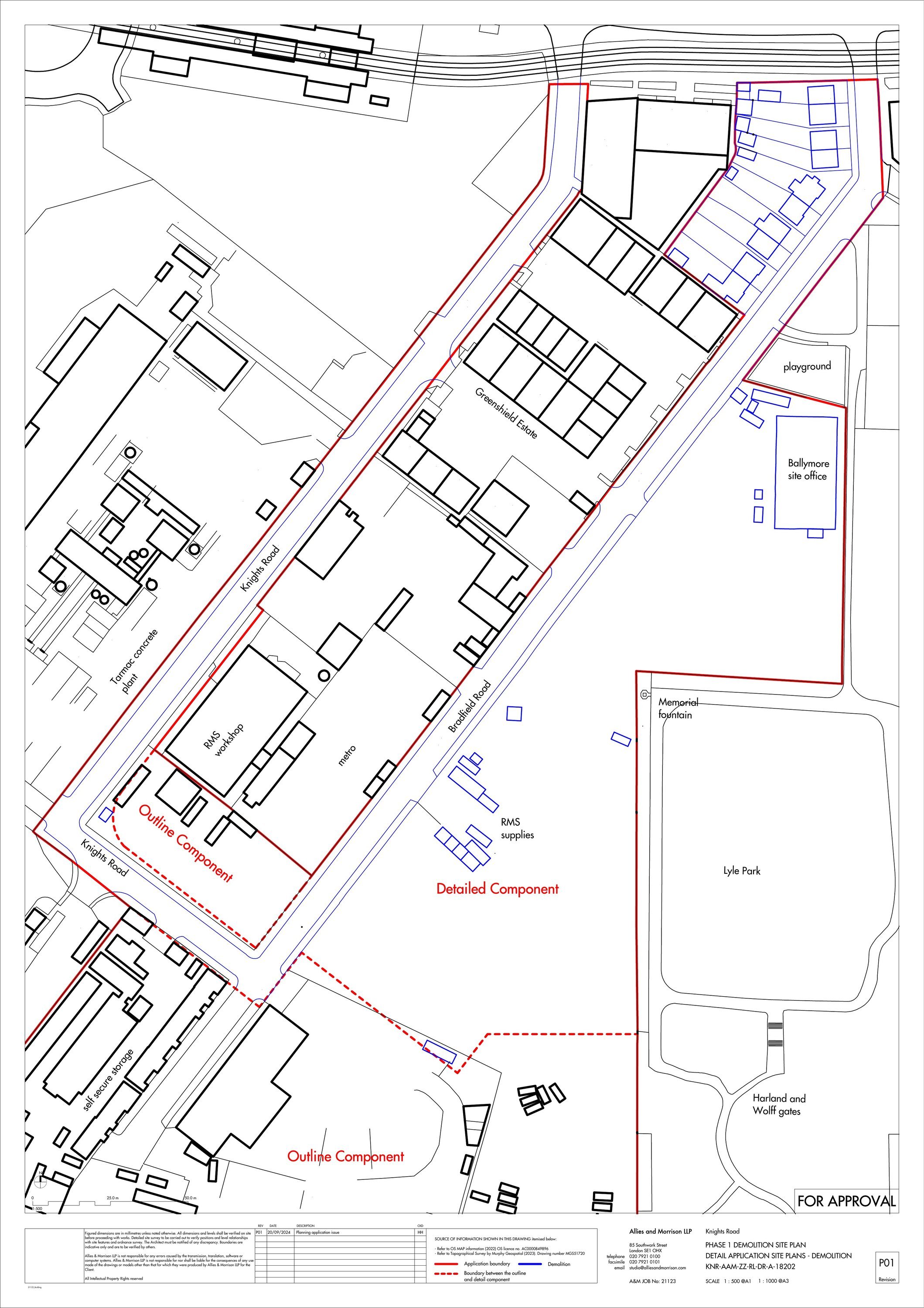
EXTENT OF DEMOLITION PARAMETER PLAN
Drawing
Not archived · Council Link
FINANCIAL VIABILITY REPORT
Documentation
Not archived · Council Link
FIRE STATEMENT
Documentation
Not archived · Council Link
FIRSTPLAN
Consultee Comment
Not archived · Council Link
FIRSTPLAN (ON BEHALF OF SAFEGUARDED WHARVES)
Consultee Comment
Not archived · Council Link
FIRSTPLAN - TECHNICAL NOTE
Consultee Comment
Not archived · Council Link
FLOOD RISK ASSESSMENT DESIGN NOTE
Revised Documentation
Not archived · Council Link
GLA
Consultee Comment
Not archived · Council Link
GLA STAGE 1 REPORT
Consultee Comment
Not archived · Council Link
GLAAS
Consultee Comment
Not archived · Council Link
GLAAS
Consultee Comment
Not archived · Council Link
GLAAS - FURTHER COMMENTS
Consultee Comment
Not archived · Council Link
GROUND AND FIRST LEVEL LAND USES PARAMETER PLANS
Drawing
Not archived · Council Link
GROUND FLOOR AND FIRST LEVEL FRONTAGES PARAMETER PLANS
Drawing
Not archived · Council Link
HEALTH IMPACT ASSESSMENT
Documentation
Not archived · Council Link
HIGHWAYS AUTHORITY
Consultee Comment
Not archived · Council Link
HISTORIC ENGLAND
Consultee Comment
Not archived · Council Link
HISTORIC ENGLAND
Consultee Comment
Not archived · Council Link
ILLUSTRATIVE LANDSCAPE MASTERPLAN - GROUND LEVEL
Drawing
Not archived · Council Link
ILLUSTRATIVE LANDSCAPE MASTERPLAN - ROOF LEVEL
Drawing
Not archived · Council Link
ILLUSTRATIVE MASTERPLAN
Revised Drawing
Not archived · Council Link
Superseded
Archived · Council Link
INTERNAL DAYLIGHT AND SUNLIGHT ASSESSMENT
Revised Documentation
Not archived · Council Link
INTERNAL DAYLIGHT AND SUNLIGHT REPORT
Superseded
Not archived · Council Link
LANDSCAPE GA - DETAILED COMPONENT - GROUND LEVEL
Drawing
Not archived · Council Link
LANDSCAPE GA - DETAILED COMPONENT - GROUND LEVEL - SHEET 0
Drawing
Not archived · Council Link
LANDSCAPE GA - DETAILED COMPONENT - GROUND LEVEL - SHEET 0
Drawing
Not archived · Council Link
LANDSCAPE GA - DETAILED COMPONENT - ROOF AND PODIUM LEVELS
Drawing
Not archived · Council Link
LANDSCAPE GA - DETAILED COMPONENT - ROOF AND PODIUM LEVELS
Drawing
Not archived · Council Link
LANDSCAPE GA - DETAILED COMPONENT - ROOF AND PODIUM LEVELS
Drawing
Not archived · Council Link
LANDSCAPE GA - DETAILED COMPONENT - ROOF AND PODIUM LEVELS
Drawing
Not archived · Council Link
LBN AIRPORT MONITORING
Consultee Comment
Not archived · Council Link
LBN AIRPORT SAFEGUARDING
Consultee Comment
Not archived · Council Link
LBN AIRPORT SAFEGUARDING - REVISED COMMENTS
Consultee Comment
Not archived · Council Link
LBN DESIGN
Consultee Comment
Not archived · Council Link
LBN DESIGN
Consultee Comment
Not archived · Council Link
LBN ECONOMIC DEVELOPMENT
Consultee Comment
Not archived · Council Link
LBN ENV CONTROL
Consultee Comment
Not archived · Council Link
LBN ENV CONTROL
Consultee Comment
Not archived · Council Link
LBN TRANSPORT
Consultee Comment
Not archived · Council Link
LBN TRANSPORTATION
Consultee Comment
Not archived · Council Link
LBN WASTE
Consultee Comment
Not archived · Council Link
LBN WASTE FOLLOW UP
Consultee Comment
Not archived · Council Link
LBN WASTE MANAGEMENT
Consultee Comment
Not archived · Council Link
LCY REVISED COMMENTS
Consultee Comment
Not archived · Council Link
LLFA
Consultee Comment
Not archived · Council Link
LOCATION PLAN
Drawing
Not archived · Council Link
LONDON CITY AIRPORT
Consultee Comment
Not archived · Council Link
LONDON CITY AIRPORT
Consultee Comment
Not archived · Council Link
MASTERPLANNING STATEMENT - JULY 2025
Revised Documentation
Not archived · Council Link
MAXIMUM BUILDING LINES PARAMETER PLAN
Drawing
Not archived · Council Link
MEANS OF ACCESS PARAMETER PLAN
Drawing
Not archived · Council Link
MINIMUM BUILDING LINES PARAMETER PLAN
Drawing
Not archived · Council Link
NATURAL ENGLAND
Consultee Comment
Not archived · Council Link
NATURAL ENGLAND
Consultee Comment
Not archived · Council Link
NHS INFRASTRUCTURE
Consultee Comment
Not archived · Council Link
NON TECHNICAL SUMMARY
Environmental Statement
Not archived · Council Link
OUTLINE COMPONENT - MAXIMUM PARAMETERS AREA SCHEDULE
Documentation
Not archived · Council Link
OUTLINE COMPONENT - MINIMUM PARAMETERS AREA SCHEDULE
Documentation
Not archived · Council Link
OUTLINE FIRE STRATEGY
Documentation
Not archived · Council Link
OUTLINE WASTE MANAGEMENT STRATEGY
Revised Documentation
Not archived · Council Link
OUTLINE WASTE MANAGEMENT STRATEGY
Superseded
Not archived · Council Link
PHASE 1 ADOPTED ROADS
Drawing
Not archived · Council Link
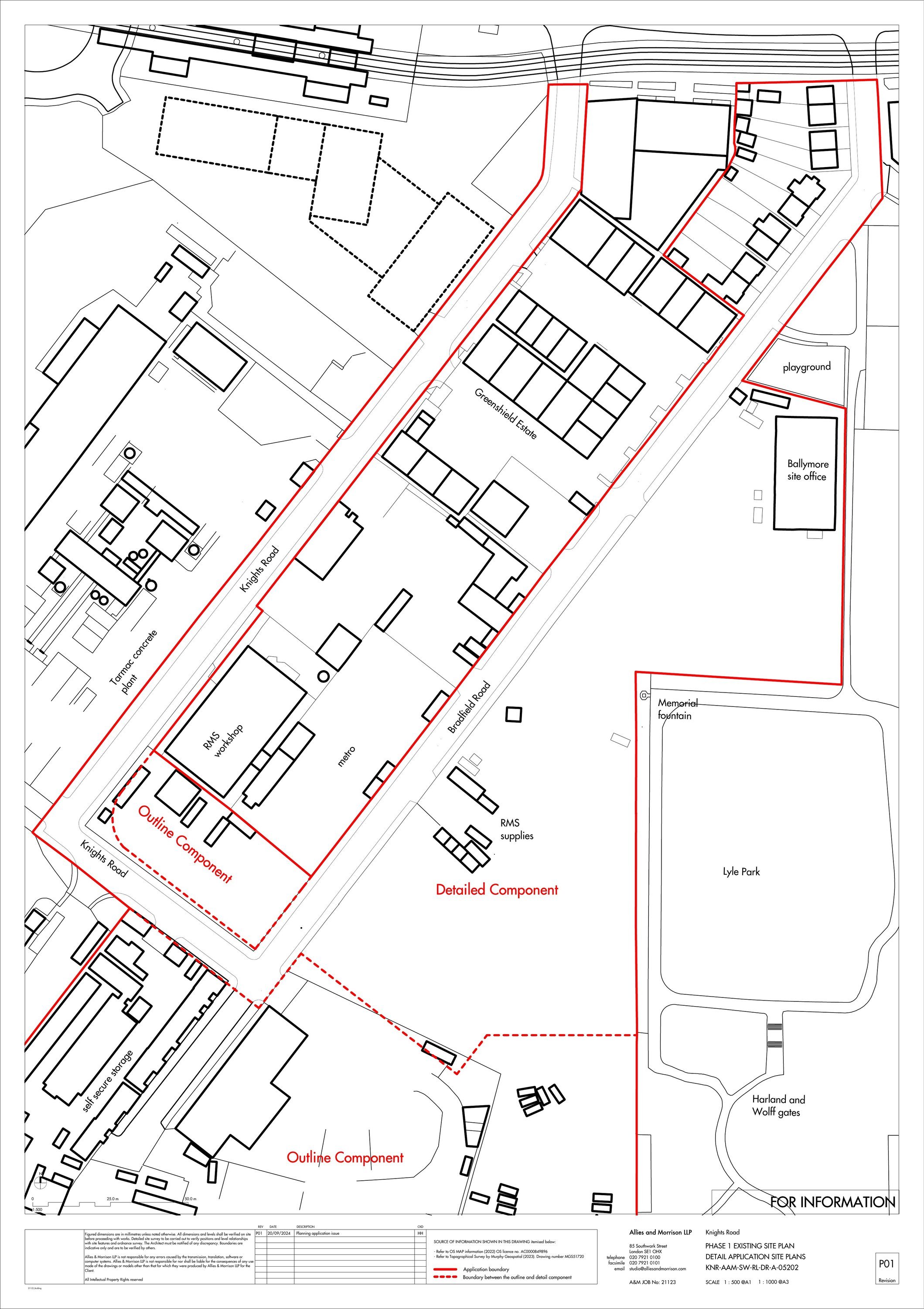
PHASE 1 EXISTING SITE AODS
Drawing
Not archived · Council Link
PHASE 1 EXISTING SITE PLAN WITHAODS
Drawing
Not archived · Council Link
PHASE 1 PROPOSED SITE LEVELS
Drawing
Not archived · Council Link
PHASING PLAN
Drawing
Not archived · Council Link
PLA - SUPPLEMENTARY COMMENTS
Consultee Comment
Not archived · Council Link
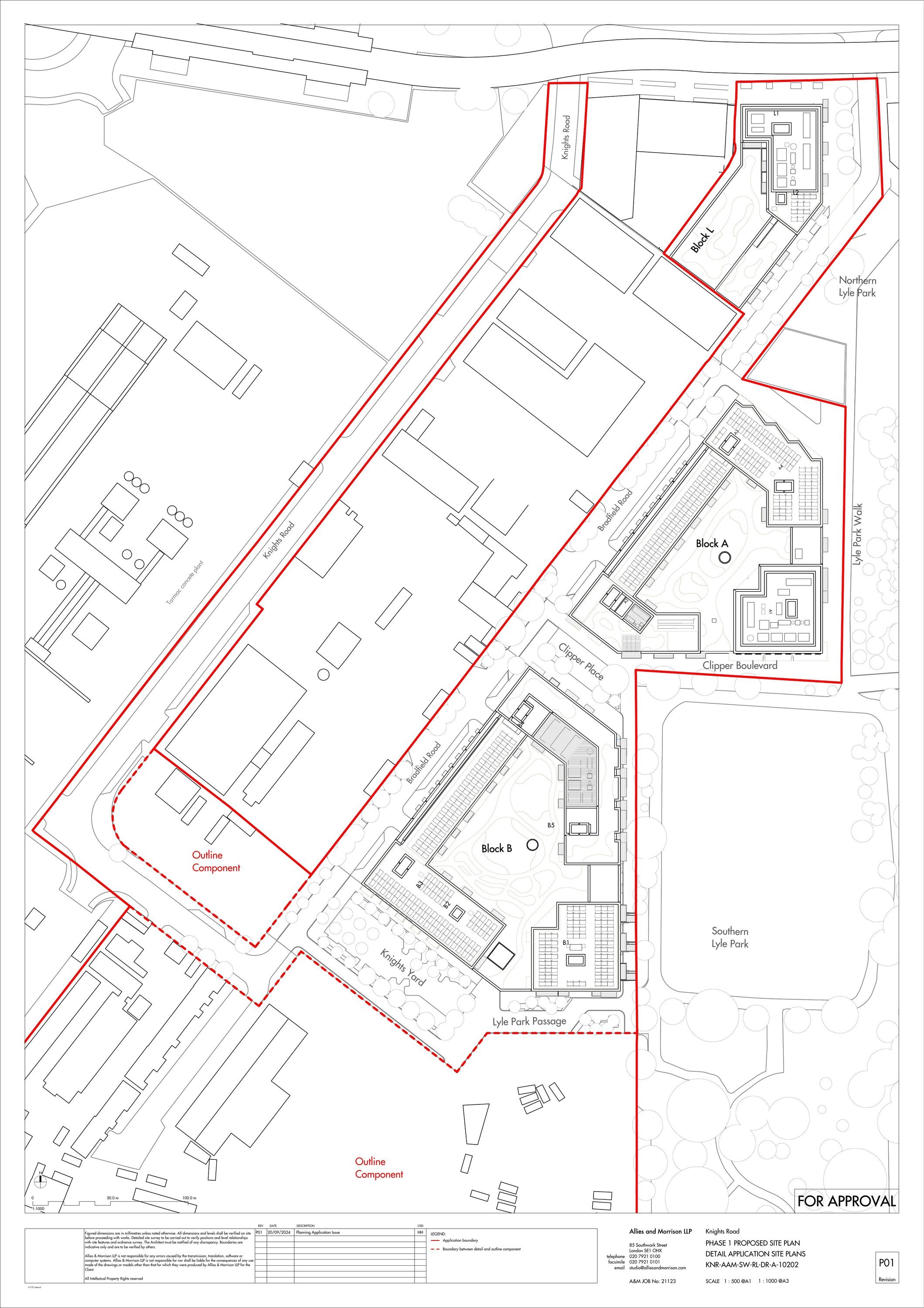
PLANNING APPLICATION BOUNDARY
Drawing
Not archived · Council Link
PLANNING APPLICATION DRAWINGS REGISTER
Drawing
Not archived · Council Link
PLANNING STATEMENT
Documentation
Not archived · Council Link
PORT OF LONDON AUTHORITY
Consultee Comment
Not archived · Council Link
PRE-DEMOLITION AUDIT PART 1
Documentation
Not archived · Council Link
PRE-DEMOLITION AUDIT PART 2
Documentation
Not archived · Council Link
PRE-DEMOLITION AUDIT PART 3
Documentation
Not archived · Council Link
PRE-DEMOLITION AUDIT PART 4
Documentation
Not archived · Council Link
PRE-DEVELOPMENT AUDIT
Documentation
Not archived · Council Link
PROPOSED LAYOUT PLANS
Drawing
Not archived · Council Link
PUBLIC REALM PARAMETER PLAN
Drawing
Not archived · Council Link
REFUSE STORAGE PROVISION
Drawing
Not archived · Council Link
REVISED COVERING LETTER
Revised Documentation
Not archived · Council Link
RIVER WALL ASSESSMENT - JULY 2024
Revised Documentation
Not archived · Council Link
RIVER WALL DESIGN NOTE
Revised Documentation
Not archived · Council Link
ROAD SAFETY AUDIT
Revised Documentation
Not archived · Council Link
ROAD SAFETY AUDIT - BRIEFING NOTE
Revised Documentation
Not archived · Council Link
ROAD SAFETY AUDIT - DESIGNER RESPONSES
Revised Documentation
Not archived · Council Link
Drawing
Archived · Council Link
SITE WASTE MANAGEMENT STRATEGY
Documentation
Not archived · Council Link
SPORT ENGLAND
Consultee Comment
Not archived · Council Link
SPORT ENGLAND
Consultee Comment
Not archived · Council Link
STATEMENT OF COMMUNITY INVOLVEMENT
Documentation
Not archived · Council Link
SUSTAINABILITY STATEMENT
Documentation
Not archived · Council Link
TARMAC
Consultee Comment
Not archived · Council Link
TATE AND LYLE
Consultee Comment
Not archived · Council Link
TECHNICAL NOTE IN RESPONSE TO EA COMMENTS
Revised Documentation
Not archived · Council Link
TFL INFRASTRUCTURE
Consultee Comment
Not archived · Council Link
TFL INFRASTRUCTURE
Consultee Comment
Not archived · Council Link
TFL PLANNING
Consultee Comment
Not archived · Council Link
TFL SPATIAL
Consultee Comment
Not archived · Council Link
THAMES WATER
Consultee Comment
Not archived · Council Link
THAMES WATER
Consultee Comment
Not archived · Council Link
THAMES WATER - SECOND RESPONSE
Consultee Comment
Not archived · Council Link
TOWN CENTRE IMPACT STUDY
Documentation
Not archived · Council Link
TRANSPORT ASSESSMENT ADDENDUM - JUNE 2025
Revised Documentation
Not archived · Council Link
TRANSPORT ASSESSMENT APPENDICES - JUNE 2025
Revised Documentation
Not archived · Council Link
TRANSPORT ASSESSMENT PART 1
Documentation
Not archived · Council Link
TRANSPORT ASSESSMENT PART 2
Documentation
Not archived · Council Link
TREE PROTECTION PLAN
Documentation
Not archived · Council Link
UK POWER NETWORKS
Consultee Comment
Not archived · Council Link
UKPN - REVISED COMMENTS
Consultee Comment
Not archived · Council Link
UPPER LEVELS LAND USES PARAMETER PLANS
Drawing
Not archived · Council Link
UTILITIES REPORT
Documentation
Not archived · Council Link
VIABILITY RESPONSE - JULY 2025
Revised Documentation
Not archived · Council Link
VOL 2 THVIA
Environmental Statement
Not archived · Council Link
VOL 3 AIR QUALITY AND ODOUR APPENDICES
Environmental Statement
Not archived · Council Link
VOL 3 ARCHAEOLOGY APPENDICES
Environmental Statement
Not archived · Council Link
VOL 3 CLIMATE CHANGE AND GHG APPENDICES
Environmental Statement
Not archived · Council Link
VOL 3 DAYLIGHT SUNLIGHT, OVERSHADOWING APPENDICES
Environmental Statement
Not archived · Council Link
VOL 3 EIA METHODOLOGY APPENDICES
Environmental Statement
Not archived · Council Link
VOL 3 INTRODUCTION APPENDICES
Environmental Statement
Not archived · Council Link
VOL 3 PART 1 GROUND CONDITIONS AND WATER QUALITY APPENDIX
Environmental Statement
Not archived · Council Link
VOL 3 PART 1 NOISE AND VIBRATION APPENDIX
Environmental Statement
Not archived · Council Link
VOL 3 PART 2 GROUND CONDITIONS AND WATER QUALITY APPENDIX
Environmental Statement
Not archived · Council Link
VOL 3 PART 2 NOISE AND VIBRATION APPENDIX
Environmental Statement
Not archived · Council Link
VOL 3 PART 3 GROUND CONDITIONS AND WATER QUALITY APPENDIX
Environmental Statement
Not archived · Council Link
VOL 3 PART 3 NOISE AND VIBRATION APPENDIX
Environmental Statement
Not archived · Council Link
VOL 3 PART 4 GROUND CONDITIONS AND WATER QUALITY APPENDIX
Environmental Statement
Not archived · Council Link
VOL 3 PART 4 NOISE AND VIBRATION APPENDIX
Environmental Statement
Not archived · Council Link
VOL 3 PART 5 NOISE AND VIBRATION APPENDIX
Environmental Statement
Not archived · Council Link
VOL 3 SOCIO-ECONOMICS APPENDICES
Environmental Statement
Not archived · Council Link
VOL 3 TABLE OF CONTENTS
Environmental Statement
Not archived · Council Link
VOL 3 TRAFFIC & MOVEMENT APPENDICES
Environmental Statement
Not archived · Council Link
VOL 3 WATER RESOURCE AND FLOOD RISK APPENDICES
Environmental Statement
Not archived · Council Link
VOL 3 WIND MICROCLIMATE APPENDICES
Environmental Statement
Not archived · Council Link
VOL1 CH02 EIA METHODOLOGY
Environmental Statement
Not archived · Council Link
VOL1 CH03 ALTERNATIVES AND DESIGN EVOLUTION
Environmental Statement
Not archived · Council Link
VOL1 CH04 PROPOSED DEVELOPMENT
Environmental Statement
Not archived · Council Link
VOL1 CH05 ENABLING DEMOLITION AND CONSTRUCTION
Environmental Statement
Not archived · Council Link
VOL1 CH06 SOCIO-ECONOMICS
Environmental Statement
Not archived · Council Link
VOL1 CH07 CLIMATE CHANGE AND GHGS
Environmental Statement
Not archived · Council Link
VOL1 CH08 AIR QUALITY AND ODOUR
Environmental Statement
Not archived · Council Link
VOL1 CH09 NOISE AND VIBRATION
Superseded
Not archived · Council Link
VOL1 CH10 DAYLIGHT SUNLIGHT OSGLP
Environmental Statement
Not archived · Council Link
VOL1 CH11 WIND MICROCLIMATE
Environmental Statement
Not archived · Council Link
VOL1 CH12 TRAFFIC AND MOVEMENT
Environmental Statement
Not archived · Council Link
VOL1 CH13 GROUND CONDITIONS AND WATER QUALITY
Environmental Statement
Not archived · Council Link
VOL1 CH14 ARCHAEOLOGY
Environmental Statement
Not archived · Council Link
VOL1 CH15 FLOOD RISK AND WATER RESOURCES
Environmental Statement
Not archived · Council Link
VOL1 CH16 EFFECT INTERACTIONS
Environmental Statement
Not archived · Council Link
VOL1 CH17 LIKELY SIGNIFICANT EFFECTS
Environmental Statement
Not archived · Council Link
VOL1 CH18 MITIGATION AND MONITORING
Environmental Statement
Not archived · Council Link
VOL1 CONTENTS AND INTRODUCTION
Environmental Statement
Not archived · Council Link
WASTE CAPACITY STUDY REPORT
Documentation
Not archived · Council Link
WASTE OPERATIONS NOTE - JUNE 2025
Revised Documentation
Not archived · Council Link
WHOLE LIFE CARBON REPORT - MAY 2025
Revised Documentation
Not archived · Council Link
WHOLE LIFE CARBON SPREADSHEET
Revised Documentation
Not archived · Council Link
WLC ASSESSMENT
Superseded
Not archived · Council Link
WLC ASSESSMENT MATRIX
Superseded
Not archived · Council Link

Take Action

Make your voice heard. Authorities need to hear from people who support new homes.

✉️ Write Email in Support View on Council Portal