← Back to Newham

Status

Unknown status Change of use
Received
n/a
New dwellings
2

Full Proposal

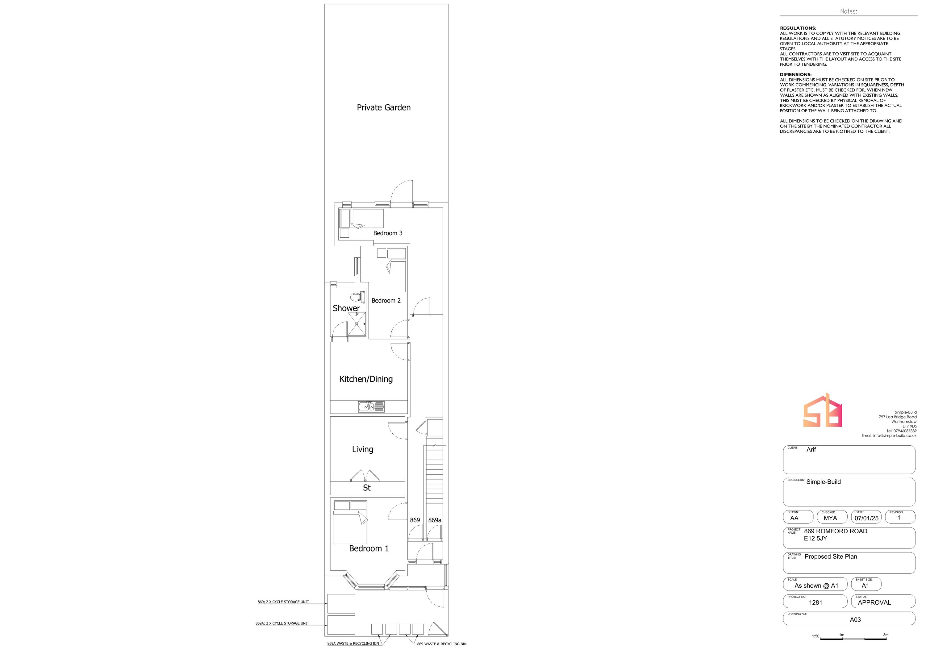
Conversion of existing single dwelling house into 1 x 2 bed flat and 1 x 3 bed flat with associated refuse and cycle storage facilities.

Documents

APPLICATIONFORMREDACTED
Application Form (Public)
Not archived · Council Link
DECISION NOTICE
Decision
Not archived · Council Link
DELEGATED REPORT
Decision
Not archived · Council Link
DESIGN AND ACCESS STATEMENT
Documentation
Not archived · Council Link
EXISTING BLOCK PLAN
Drawing
Not archived · Council Link
EXISTING PLANS AND ELEVATIONS
Drawing
Not archived · Council Link
FIRE STATEMENT
Documentation
Not archived · Council Link
FLOOD MAP
Documentation
Not archived · Council Link
FORM_1_CIL_ADDITIONAL_INFORMATION
CIL
Not archived · Council Link
LOCATION PLAN
Drawing
Not archived · Council Link
PROPOSED BLOCK PLAN
Drawing
Not archived · Council Link
Drawing
Archived · Council Link

Take Action

Make your voice heard. Authorities need to hear from people who support new homes.

✉️ Write Email in Support View on Council Portal