← Back to Newham

Status

Unknown status House extension
Received
n/a
New dwellings
0

Summary

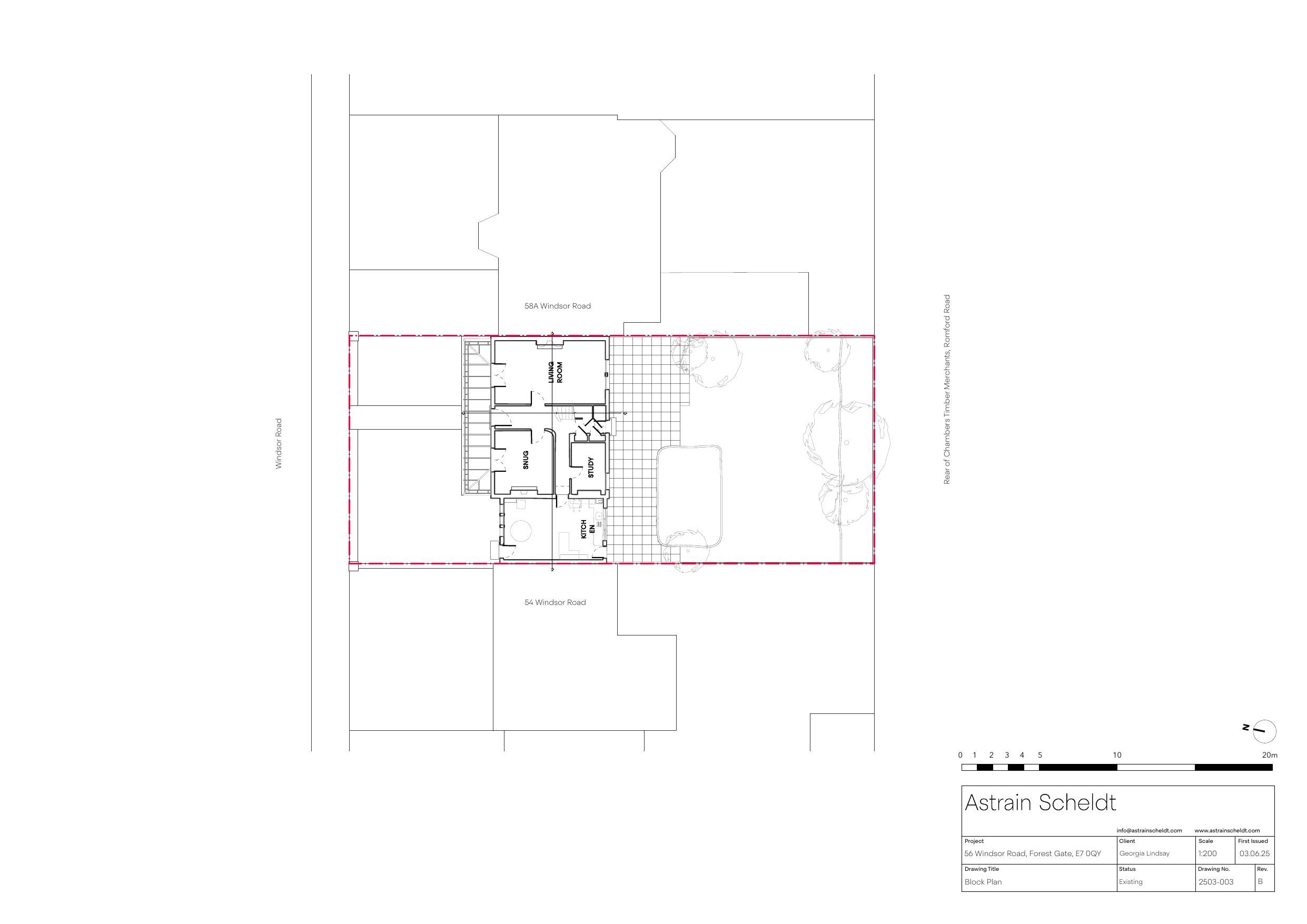
Ground-floor rear and first-floor side extension to annexe with additional rooflights.

Full Proposal

Erection of ground floor rear extension and first floor side extension to the existing annexe. 3x rooflights to the rear roof pitch of main house and 1x rooflight to the rear roof pitch of annexe.

Documents

APPLICATIONFORMREDACTED
Application Form (Public)
Not archived · Council Link
DECISION NOTICE
Decision
Not archived · Council Link
DELEGATED REPORT
Decision
Not archived · Council Link
DESIGN & ACCESS STATMENT
Documentation
Not archived · Council Link
EXISTING AND PROPOSED FRONT WALL
Drawing
Not archived · Council Link
EXISTING BASEMENT PLAN
Drawing
Not archived · Council Link
EXISTING EAST ELEVATION
Drawing
Not archived · Council Link
EXISTING FIRST FLOOR PLAN
Drawing
Not archived · Council Link
EXISTING FRONT ELEVATION
Drawing
Not archived · Council Link
EXISTING GROUND FLOOR PLAN
Drawing
Not archived · Council Link
EXISTING REAR ELEVATION
Drawing
Not archived · Council Link
EXISTING ROOF PLAN
Drawing
Not archived · Council Link
EXISTING SECTION AA
Drawing
Not archived · Council Link
EXISTING SECTION BB
Drawing
Not archived · Council Link
Drawing
Archived · Council Link
Drawing
Archived · Council Link
EXISTING WEST ELEVATION
Drawing
Not archived · Council Link
PROPOSED BASEMENT PLAN
Drawing
Not archived · Council Link
PROPOSED EAST ELEVATION
Revised Drawing
Not archived · Council Link
PROPOSED FIRST FLOOR PLAN
Revised Drawing
Not archived · Council Link
PROPOSED FRONT ELEVATION
Drawing
Not archived · Council Link
PROPOSED GROUND FLOOR PLAN
Superseded
Not archived · Council Link
PROPOSED GROUND FLOOR PLAN
Revised Drawing
Not archived · Council Link
PROPOSED REAR ELEVATION
Superseded
Not archived · Council Link
PROPOSED REAR ELEVATION
Revised Drawing
Not archived · Council Link
PROPOSED ROOF PLAN
Revised Drawing
Not archived · Council Link
PROPOSED ROOF PLAN
Superseded
Not archived · Council Link
PROPOSED SECTION AA
Drawing
Not archived · Council Link
PROPOSED SECTION BB
Revised Drawing
Not archived · Council Link
PROPOSED SECTION BB
Superseded
Not archived · Council Link
PROPOSED WEST ELEVATION
Superseded
Not archived · Council Link
PROPOSED WEST ELEVATION
Revised Drawing
Not archived · Council Link
Drawing
Archived · Council Link
TYPICAL SASH WINDOW
Drawing
Not archived · Council Link

Take Action

Make your voice heard. Authorities need to hear from people who support new homes.

✉️ Write Email in Support View on Council Portal