25/02193/FUL
Newham · IDOX
Status
Unknown status
Change of use
Received
n/a
New dwellings
4
Summary
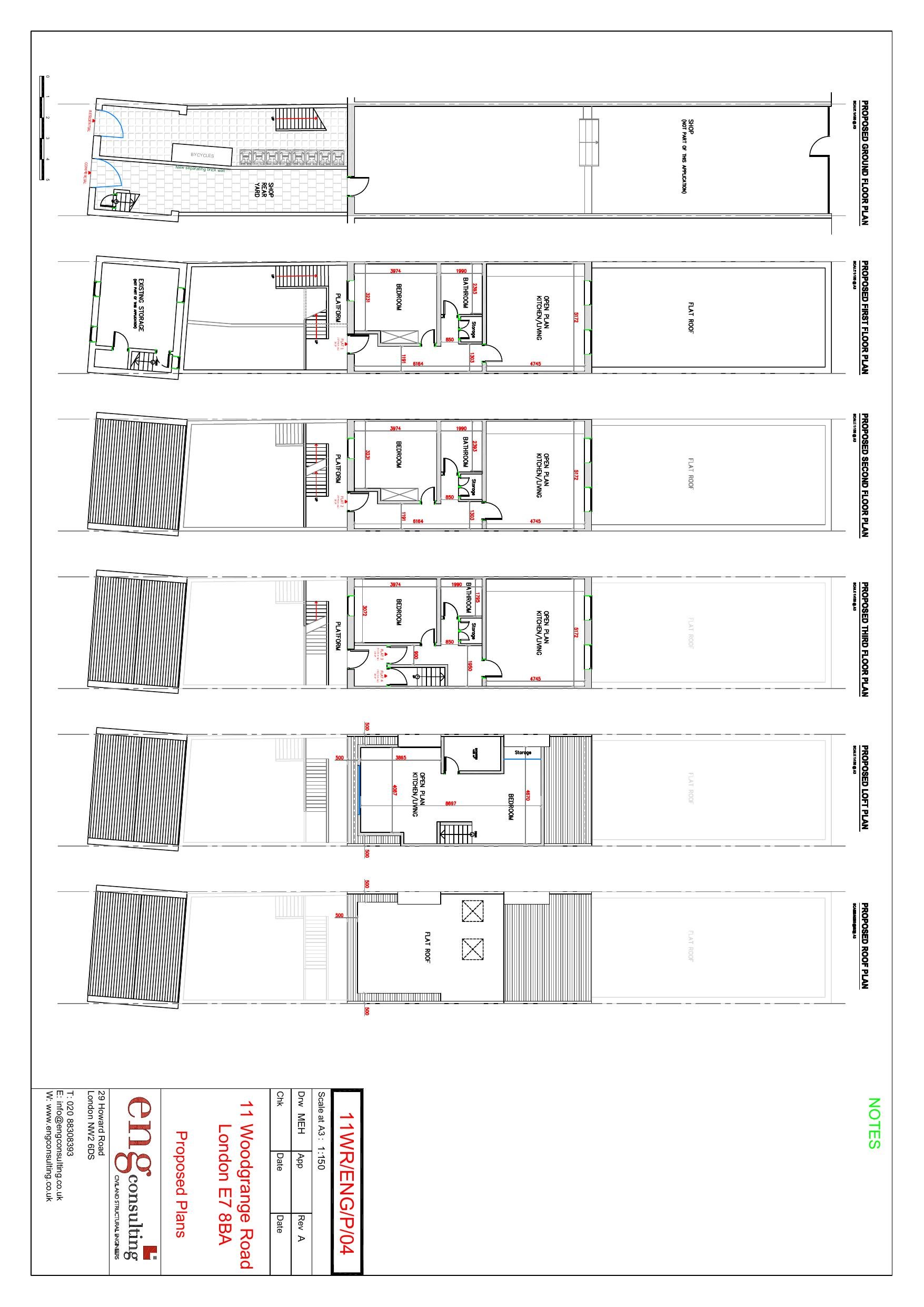
Convert four-bedroom maisonette above shop into four self-contained flats with loft conversion.
Full Proposal
Conversion of 4-bedroom maisonette above existing shop into 4no. self-contained flats including loft conversion, amenity space and waste/cycle storage. (Application site is located within Forest Gate Town Centre Conservation Area).
Documents
Take Action
Make your voice heard. Authorities need to hear from people who support new homes.