← Back to Newham

Status

Unknown status New housing
Received
n/a
New dwellings
79

Summary

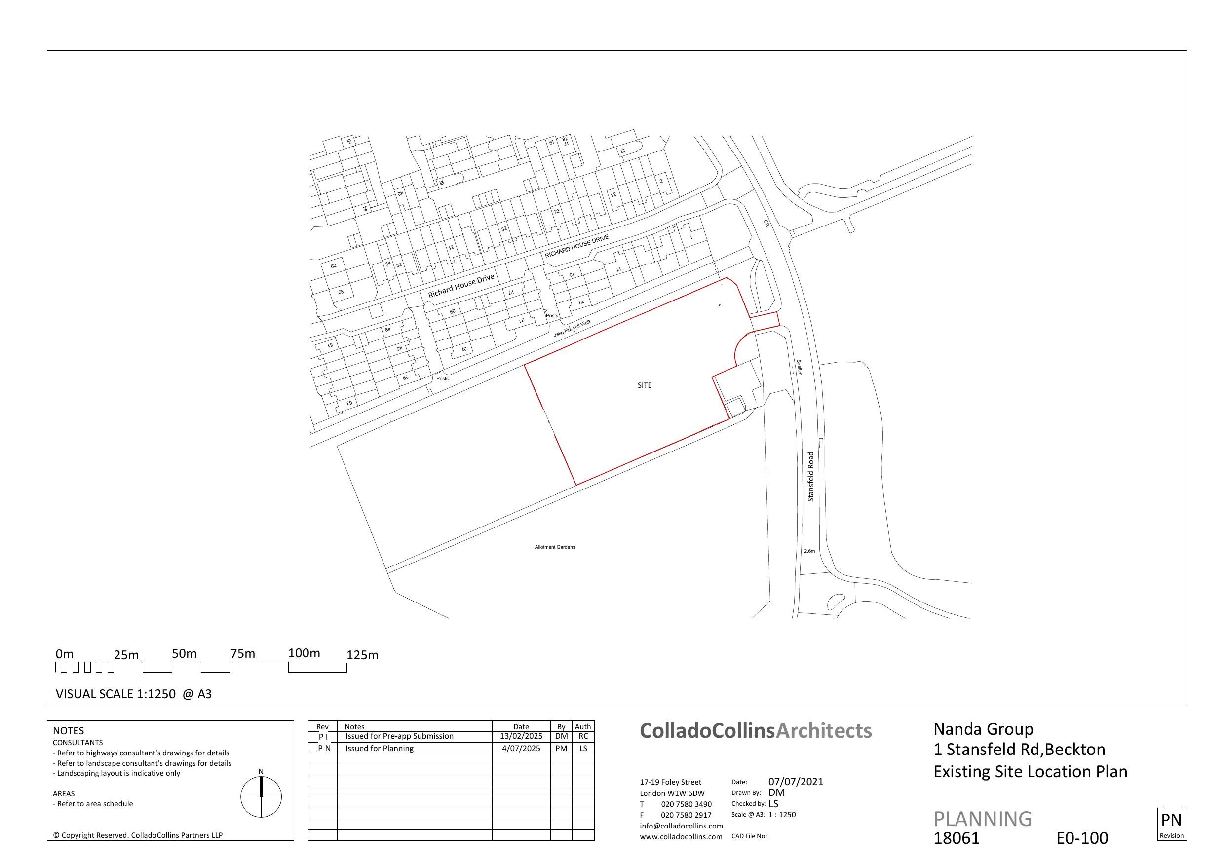
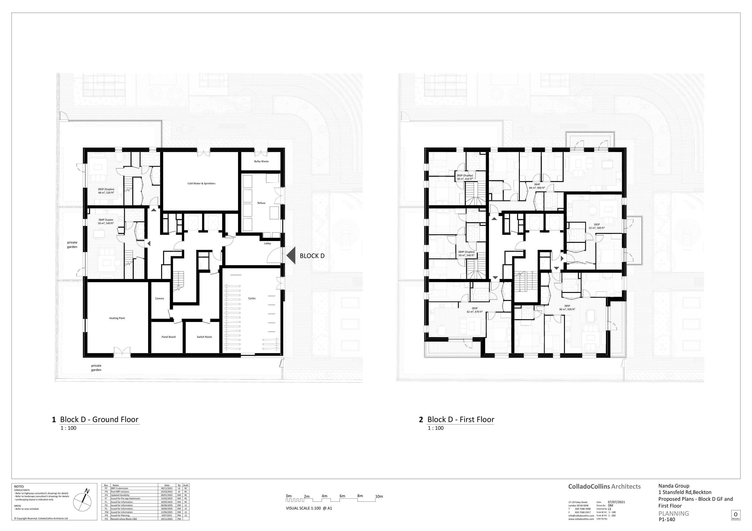
Redevelopment providing four blocks (4–6 storeys) delivering 79 residential units with parking and landscaping.

Full Proposal

Demolition of remaining structure and redevelopment of the site to provide four blocks ranging from 4 to 6 storeys of 79 no. residential accommodation (Use Class C3) together with public realm, plant, disabled car parking and cycle parking facilities, associated refuse and servicing, access and landscaping and all associated ancillary works and structures.

Documents

18061_AREA AND ACCOMMODATION SCHEDULE
Documentation
Not archived · Council Link
18061_E3-001-EXISTING SITE ELEVATIONS-SHEET 1 OF 2_PN
Drawing
Not archived · Council Link
18061_E3-002-EXISTING SITE ELEVATIONS-SHEET 2 OF 2_PN
Drawing
Not archived · Council Link
18061_P0-010-PROPOSED LOCATION PLAN_PN
Drawing
Not archived · Council Link
18061_P2-100-PROPOSED SECTIONS_PN
Drawing
Not archived · Council Link
18061_P3-001-PROPOSED SITE ELEVATIONS-SHEET 1 - NORTH AND EAST_PN
Drawing
Not archived · Council Link
18061_P3-002-PROPOSED SITE ELEVATIONS-SHEET 2 - SOUTH AND WEST_PN
Drawing
Not archived · Council Link
18061_P3-101-PROPOSED ELEVATIONS-SHEET 1-BLOCK A_PN
Drawing
Not archived · Council Link
18061_P3-102-PROPOSED ELEVATIONS-SHEET 2-BLOCK B_PN
Drawing
Not archived · Council Link
18061_P3-103-PROPOSED ELEVATIONS-SHEET 3-BLOCK C - SOUTH AND NORTH_PN
Drawing
Not archived · Council Link
18061_P3-104-PROPOSED ELEVATIONS-SHEET 4-BLOCK C - EAST AND WEST_PN
Drawing
Not archived · Council Link
18061_P3-105-PROPOSED ELEVATIONS-SHEET 5-BLOCK D - NORTH AND SOUTH_PN
Drawing
Not archived · Council Link
18061_P3-106-PROPOSED ELEVATIONS-SHEET 6-BLOCK D - EAST AND WEST_PN
Drawing
Not archived · Council Link
250508 - 1 STANSFELD ROAD - INFRASTRUCTURE SUFFICIENCY STATEMENT
Documentation
Not archived · Council Link
250516 - STANSFELD ROAD - EMPLOYMENT STRATEGY
Documentation
Not archived · Council Link
AIR QUALITY ASSESSMENT
Documentation
Not archived · Council Link
ARBORICULTURAL IMPACT ASSESSMENT REPORT
Documentation
Not archived · Council Link
ARCHAEOLOGICAL DESK BASED ASSESSMENT
Documentation
Not archived · Council Link
BIODIVERSITY METRIC CALCULATION
Documentation
Not archived · Council Link
BNG REPORT
Documentation
Not archived · Council Link
BNPP VIABILITY REVIEW
Documentation
Not archived · Council Link
CADENT GAS
Consultee Comment
Not archived · Council Link
CAR PARK MANAGEMENT PLAN
Documentation
Not archived · Council Link
CIL FORM - FINAL VERSION
CIL
Not archived · Council Link
CONTAMINATION DESK BASED ASSESSMENT
Documentation
Not archived · Council Link
COST PLAN
Documentation
Not archived · Council Link
COVER LETTER
Documentation
Not archived · Council Link
CROSSRAIL COMMENTS
Consultee Comment
Not archived · Council Link
DAYLIGHT AND SUNLIGHT REPORT
Documentation
Not archived · Council Link
DELIVERY AND SERVICING PLAN
Documentation
Not archived · Council Link
DESIGN & ACCESS STATEMENT SECTION 1-3
Documentation
Not archived · Council Link
DESIGN & ACCESS STATEMENT SECTION 4
Documentation
Not archived · Council Link
DESIGN & ACCESS STATEMENT SECTION 5
Documentation
Not archived · Council Link
DESIGN & ACCESS STATEMENT SECTION 6
Documentation
Not archived · Council Link
DESIGN & ACCESS STATEMENT SECTION 7
Documentation
Not archived · Council Link
DESIGN & ACCESS STATEMENT SECTION 8-12
Documentation
Not archived · Council Link
DRAINAGE PROFORMA
Documentation
Not archived · Council Link
DRAINAGE STRATEGY
Documentation
Not archived · Council Link
DRAINAGE STRATEGY
Revised Drawing
Not archived · Council Link
DRAINAGE STRATEGY REPORT
Revised Documentation
Not archived · Council Link
DRAWING ISSUE SHEET
Revised Drawing
Not archived · Council Link
ENERGY ASSESSMENT
Documentation
Not archived · Council Link
ENVIRONMENT AGENCY
Consultee Comment
Not archived · Council Link
FIRE STATEMENT
Documentation
Not archived · Council Link
FLOOD RISK ASSESSMENT
Documentation
Not archived · Council Link
GLAAS COMMENTS
Consultee Comment
Not archived · Council Link
HEALTH IMPACT ASSESSMENT
Documentation
Not archived · Council Link
LANDSCAPE MASTERPLAN
Revised Drawing
Not archived · Council Link
LONDON CITY AIRPORT COMMENTS
Consultee Comment
Not archived · Council Link
MET POLICE
Consultee Comment
Not archived · Council Link
NOISE ASSESSMENT
Documentation
Not archived · Council Link
OVERHEATING ASSESSMENT
Documentation
Not archived · Council Link
PLANNING STATEMENT
Documentation
Not archived · Council Link
PRELIMINARY ECOLOGICAL APPRAISAL REPORT
Documentation
Not archived · Council Link
PROPOSED ELEVATIONS - BLOCK C - EAST & WEST
Revised Drawing
Not archived · Council Link
PROPOSED ELEVATIONS - BLOCK D - EAST & WEST
Revised Drawing
Not archived · Council Link
Revised Drawing
Archived · Council Link
RESPONSE TO PLANNING FEEDBACK - DESIGN
Revised Documentation
Not archived · Council Link
ROAD SAFETY AUDIT AND DESIGNERS RESPONSE
Documentation
Not archived · Council Link
STATEMENT OF COMMUNITY INVOLVEMENT (SCI) STANSFELD ROAD
Documentation
Not archived · Council Link
SUSTAINABILITY STATEMENT
Documentation
Not archived · Council Link
TFL - ELIZABETH LINE
Consultee Comment
Not archived · Council Link
THAMES WATER
Consultee Comment
Not archived · Council Link
TRANSPORT ASSESSMENT
Documentation
Not archived · Council Link
TRAVEL PLAN
Documentation
Not archived · Council Link
TREE CONSTRAINTS PLAN
Documentation
Not archived · Council Link
TREE SURVEY REPORT
Documentation
Not archived · Council Link
V8 2006-001D LANDSCAPE MASTERPLAN
Drawing
Not archived · Council Link
VIABILITY REPORT WITH APPENDICES
Documentation
Not archived · Council Link
WASTE MANAGEMENT STRATEGY
Documentation
Not archived · Council Link

Take Action

Make your voice heard. Authorities need to hear from people who support new homes.

✉️ Write Email in Support View on Council Portal