← Back to Newham

Status

Unknown status Change of use
Received
n/a
New dwellings
3

Full Proposal

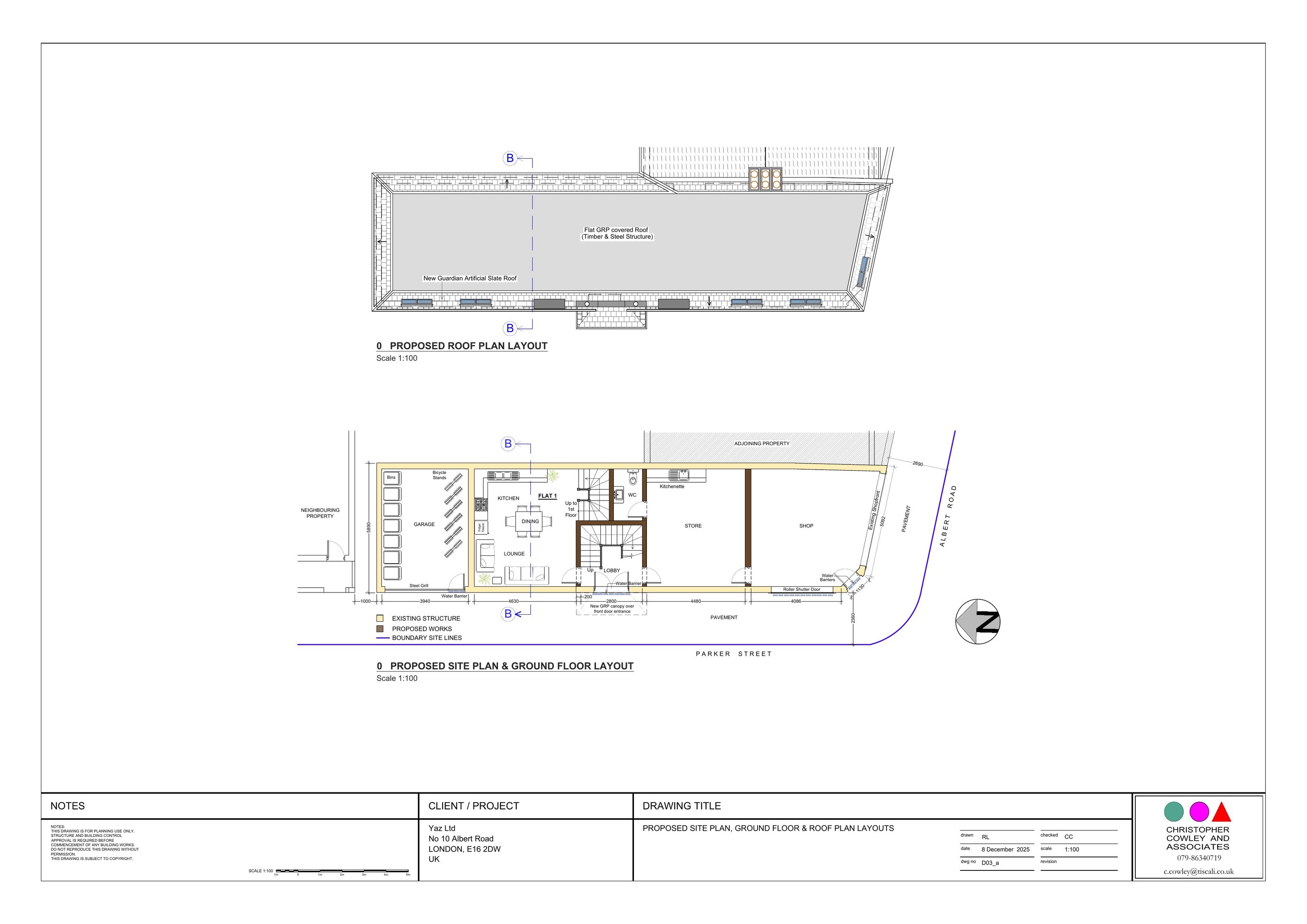
Part change of use of ground floor retail use (Use Class E) to residential use (Use Class C3), first-floor rear and side extension and roof extension to provide 1no. two-bedroom flat, 1no. one-bedroom flat and 1no. three-bedroom flat, with associated alterations to side and front elevations.

Documents

APPLICATIONFORMREDACTED
Application Form (Public)
Not archived · Council Link
BLOCK PLAN
Drawing
Not archived · Council Link
DESIGN AND ACESS STATEMENT
Documentation
Not archived · Council Link
EXISTING ELEVATIONS & SECTION
Drawing
Not archived · Council Link
FLOOD REPORT
Documentation
Not archived · Council Link
PHOTOS
Photo
Not archived · Council Link
PROPOSED 1ST FLOOR & LOFT LAYOUT
Drawing
Not archived · Council Link
PROPOSED ELEVATIONS & SECTION
Drawing
Not archived · Council Link
Drawing
Archived · Council Link

Take Action

Make your voice heard. Authorities need to hear from people who support new homes.

✉️ Write Email in Support View on Council Portal