← Back to Newham

Status

Unknown status Change of use
Received
n/a
New dwellings
1

Summary

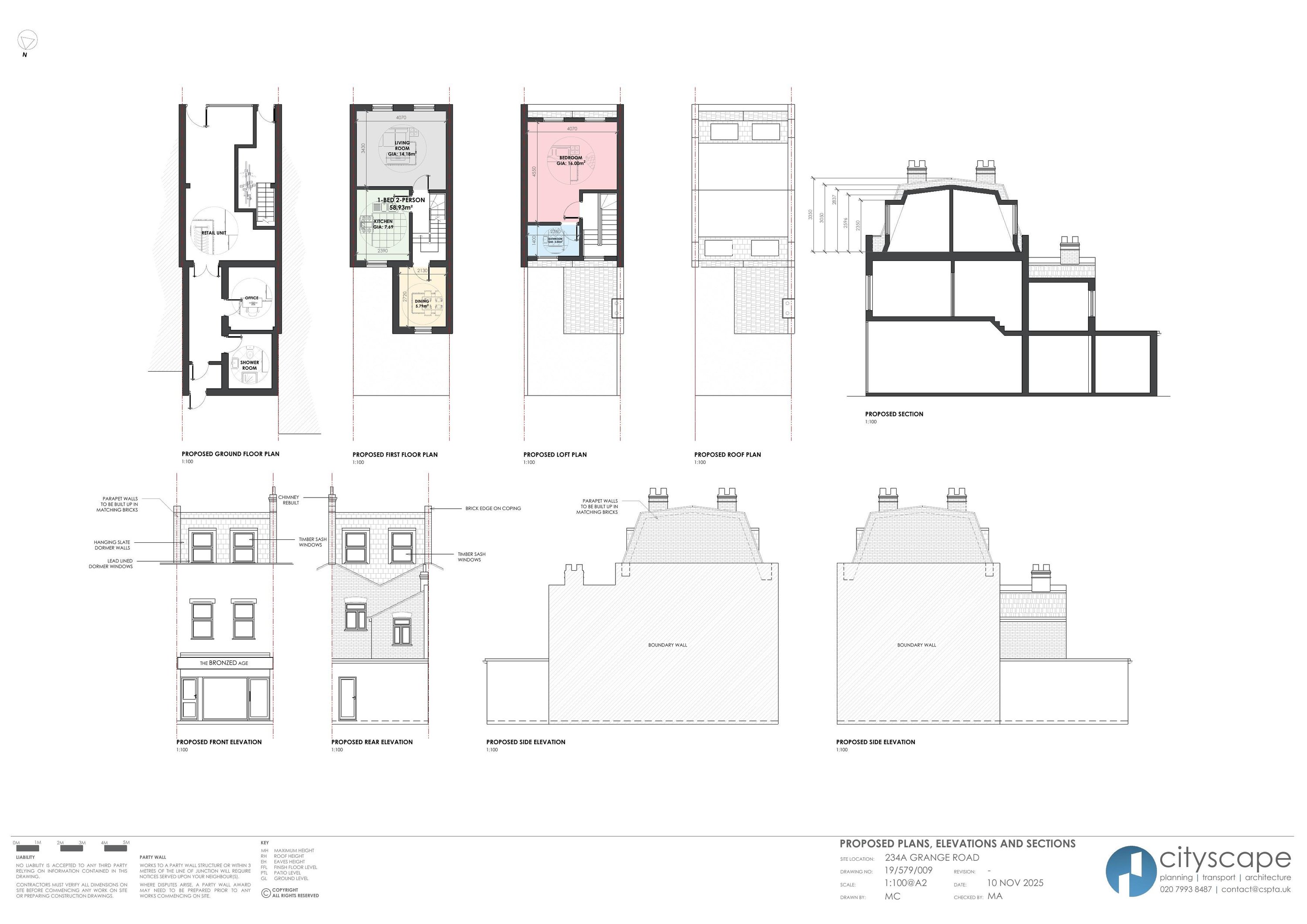
Change of first floor to one-bed flat with mansard and dormer roof extension.

Full Proposal

Change of use of first floor to residential (Use C3) and erection of mansard roof extension with front/rear dormer windows to provide 1x one-bedroom/two-person unit, including waste and cycle storage.

Documents

007 SITE LOCATION AND BLOCK PLAN
Drawing
Not archived · Council Link
008 EXISTING PLANS ELEVATIONS AND SECTIONS
Drawing
Not archived · Council Link
APPLICATIONFORMREDACTED
Application Form (Public)
Not archived · Council Link
DECISION NOTICE
Decision
Not archived · Council Link
DECISION NOTICE
Decision
Not archived · Council Link
DELEGATED REPORT
Decision
Not archived · Council Link
NEWHAM EPPING FOREST SAMMS FORM
Documentation
Not archived · Council Link
PLANNING DESIGN AND ACCESS STATEMENT (INCL. FLOOD RISK ASSESSMENT AND BNG EXEMPT
Documentation
Not archived · Council Link
SITE NOTICE
Application Form
Not archived · Council Link

Take Action

Make your voice heard. Authorities need to hear from people who support new homes.

✉️ Write Email in Support View on Council Portal