← Back to Newham

Status

Unknown status New housing
Received
n/a
New dwellings
4

Summary

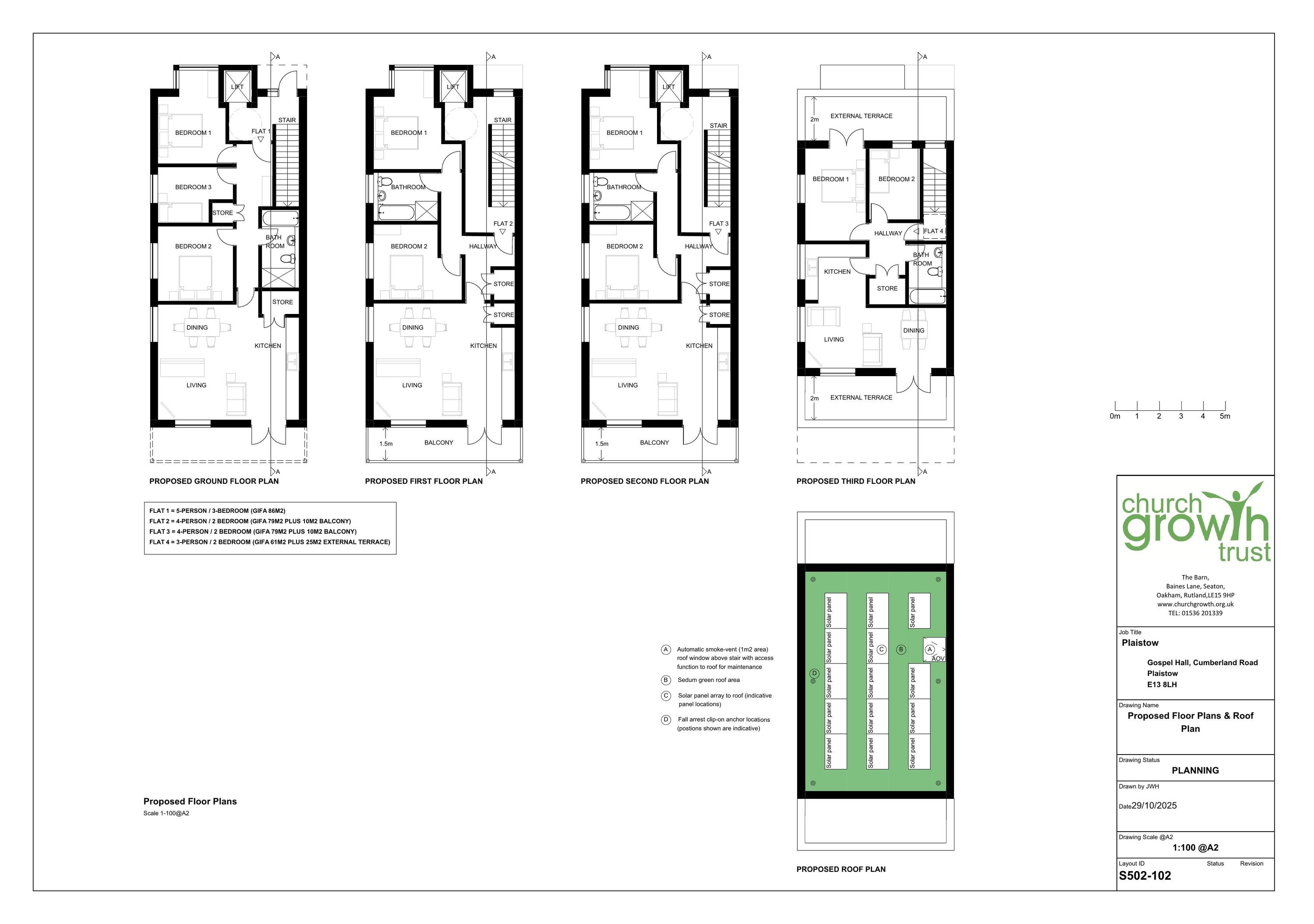
Demolish building and construct part 3/part 4-storey block providing four residential apartments.

Full Proposal

Demolition of existing building and development of part 3 / part 4 storey building to provide 4 new residential apartments comprising of: 3 x 2 bedroom apartments and 1 x 3 bedroom apartments with associated landscaping. (AMENDED DESCRIPTION)

Documents

APPLICATIONFORMREDACTED
Application Form (Public)
Not archived · Council Link
BNG CALCULATOR CUMBERLAND FOR UPLOAD
Documentation
Not archived · Council Link
CIL FORM
CIL
Not archived · Council Link
COVERING LETTER
Documentation
Not archived · Council Link
DAYLIGHT AND SUNLIGHT REPORT
Documentation
Not archived · Council Link
DEMOLITION METHOD STATEMENT
Documentation
Not archived · Council Link
DESIGN & ACCESS STATEMENT
Documentation
Not archived · Council Link
ENERGY AND SUSTAINABILITY STATEMENT
Documentation
Not archived · Council Link
EXISTING AND PROPOSED BLOCK PLAN
Revised Drawing
Not archived · Council Link
EXISTING AND PROPOSED BLOCK PLANS
Revised Drawing
Not archived · Council Link
EXISTING FLOOR PLAN ROOF PLAN AND ELEVATIONS
Drawing
Not archived · Council Link
LANDSCAPE, ARBORICULTURE AND ECOLOGY
Documentation
Not archived · Council Link
NEWHAM EPPING FOREST SAMMS FORM COMPLETED
Documentation
Not archived · Council Link
PLN-2025-09-16-S502-103-PROPOSED ELEVATIONS AND SECTION A-A
Drawing
Not archived · Council Link
PLN-2025-10-29-S502-101-EXISTING AND PROPOSED SITE BLOCK PLAN
Drawing
Not archived · Council Link
PLN-2025-10-29-S502-104-PROPOSED FIRE STRATEGY PLAN
Drawing
Not archived · Council Link
PLN-2025-10-30-S502-105-EXISTING FLOOR PLAN ROOF PLAN AND ELEVATIONS
Drawing
Not archived · Council Link
PROPOSED ELEVATIONS AND SECTION
Revised Drawing
Not archived · Council Link
PROPOSED ELEVATIONS AND SECTION
Revised Drawing
Not archived · Council Link
PROPOSED FIRE STRATEGY PLAN
Drawing
Not archived · Council Link
Drawing
Archived · Council Link
WASTE MANAGEMENT CHECKLISTS
Documentation
Not archived · Council Link

Take Action

Make your voice heard. Authorities need to hear from people who support new homes.

✉️ Write Email in Support View on Council Portal