← Back to Newham

Status

Unknown status New housing
Received
n/a
New dwellings
1

Summary

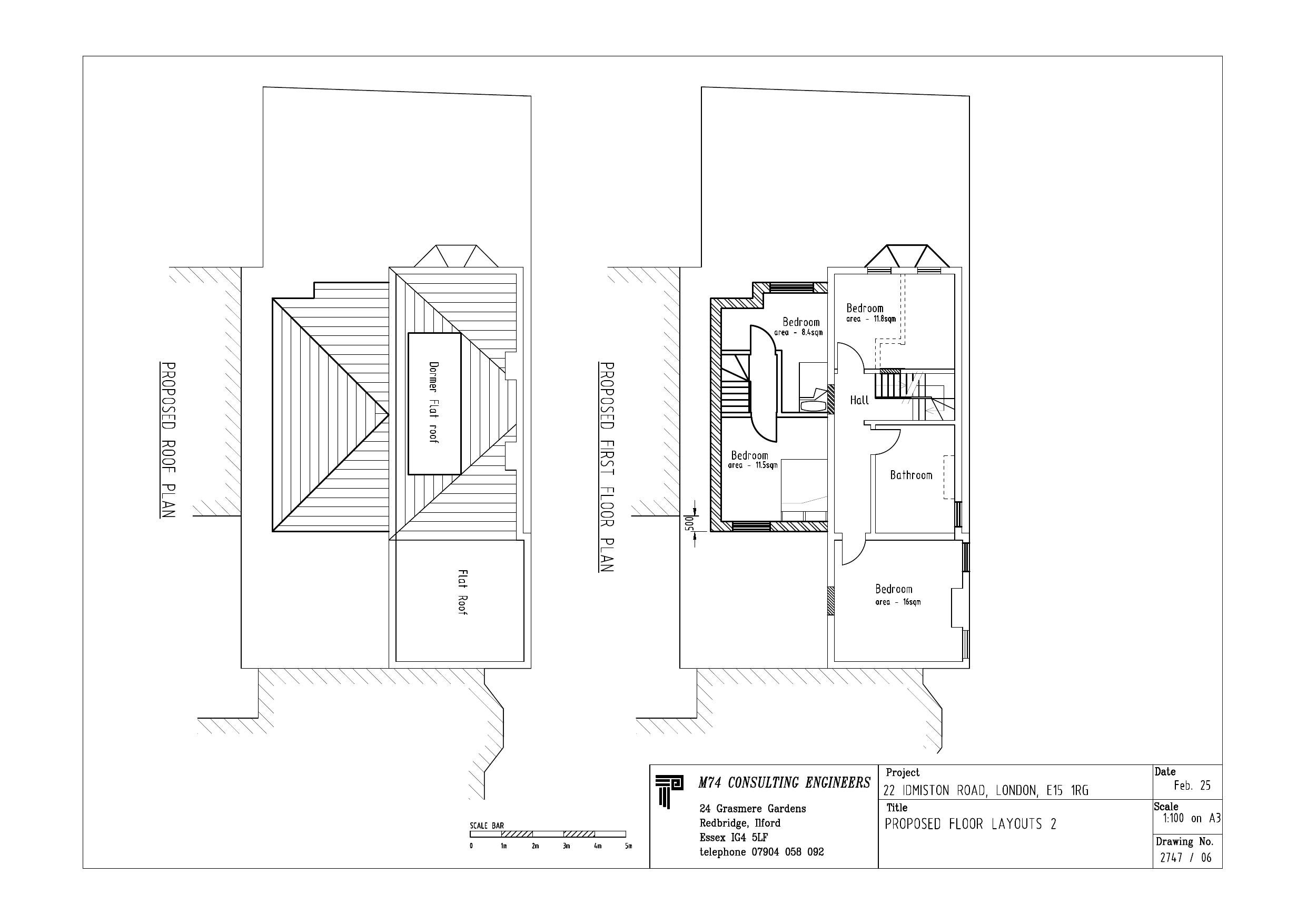
Two-storey side extension creating a 2-bed unit, rear dormer and basement lightwell.

Full Proposal

Proposed two story side extension to create a new 1 x 2 bedroom residential unit. Construction of a rear dormer extension including rooflights to the front and a new light well to the existing basement.

Documents

APPLICATIONFORMREDACTED
Application Form (Public)
Not archived · Council Link
BLOCK PLAN
Drawing
Not archived · Council Link
DESIGN AND ACCESS STATEMENT
Documentation
Not archived · Council Link
EXISTING ELEVATIONS
Drawing
Not archived · Council Link
EXISTING PLANS
Drawing
Not archived · Council Link
EXISTING PLANS
Drawing
Not archived · Council Link
EXISTING SIDE ELEVATIONS
Drawing
Not archived · Council Link
PROPOSED BLOCK PLAN
Drawing
Not archived · Council Link
PROPOSED ELEVATIONS
Drawing
Not archived · Council Link
Drawing
Archived · Council Link
Drawing
Archived · Council Link
PROPOSED SECOND FLOOR PLAN
Drawing
Not archived · Council Link
PROPOSED SIDE ELEVATIONS
Drawing
Not archived · Council Link
Drawing
Archived · Council Link

Take Action

Make your voice heard. Authorities need to hear from people who support new homes.

✉️ Write Email in Support View on Council Portal