← Back to North East Derbyshire District Council

Status

pending New housing
Received
19 Dec 2025
New dwellings
1

Full Proposal

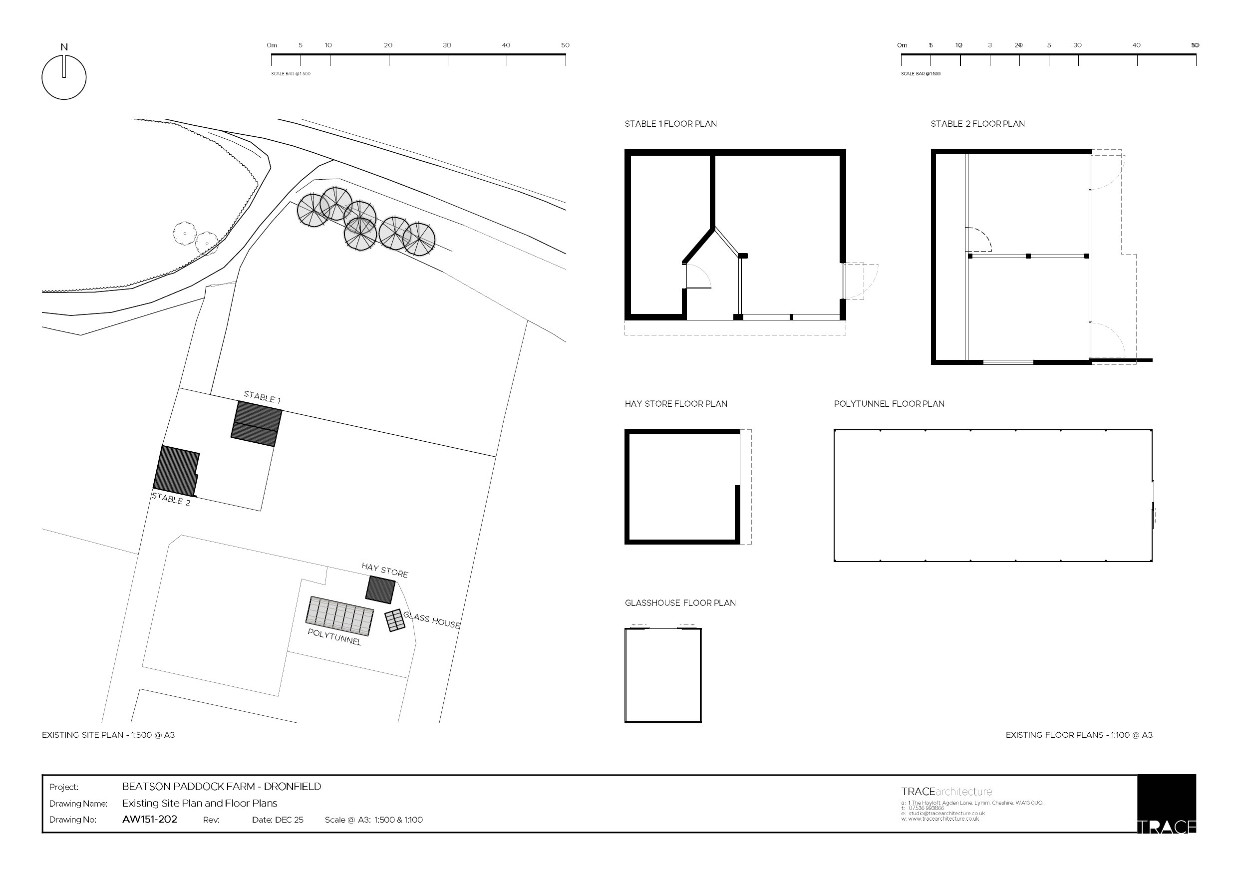
Outline application for Demolition of existing equestrian buildings and replacement with a new dwelling with matters of appearance, scale and layout (custom and self-build scheme) (Amended title)

Documents

APPLICATION FORM - WITHOUT PERSONAL DATA
Application Form
Not archived · Council Link
COAL AUTHORITY COMMENT
Consultee Comment
Not archived · Council Link
COAL MINING RISK ASSESSMENT
Supporting Document
Not archived · Council Link
DWT COMMENTS
Consultee Comment
Not archived · Council Link
EXISTING ELEVATION
Drawing
Not archived · Council Link
HIGHWAYS COMMENTS
Consultee Comment
Not archived · Council Link
OPINION STATEMENT
Supporting Document
Not archived · Council Link
PARAGRAPH 154 (G) OF THE REVISED NPPF (DEC 2024)
Supporting Document
Not archived · Council Link
PLANNING STATEMENT
Supporting Document
Not archived · Council Link
PROPOSED BLOCK PLAN AND FLOOR PLAN
Drawing
Not archived · Council Link
PROPOSED ELEVATION
Drawing
Not archived · Council Link
Drawing
Archived · Council Link
YW COMMENTS
Consultee Comment
Not archived · Council Link

Take Action

Make your voice heard. Authorities need to hear from people who support new homes.

✉️ Write Email in Support View on Council Portal