← Back to North East Lincolnshire Council

Status

Pending Consideration Commercial
Received
n/a
New dwellings
0

Full Proposal

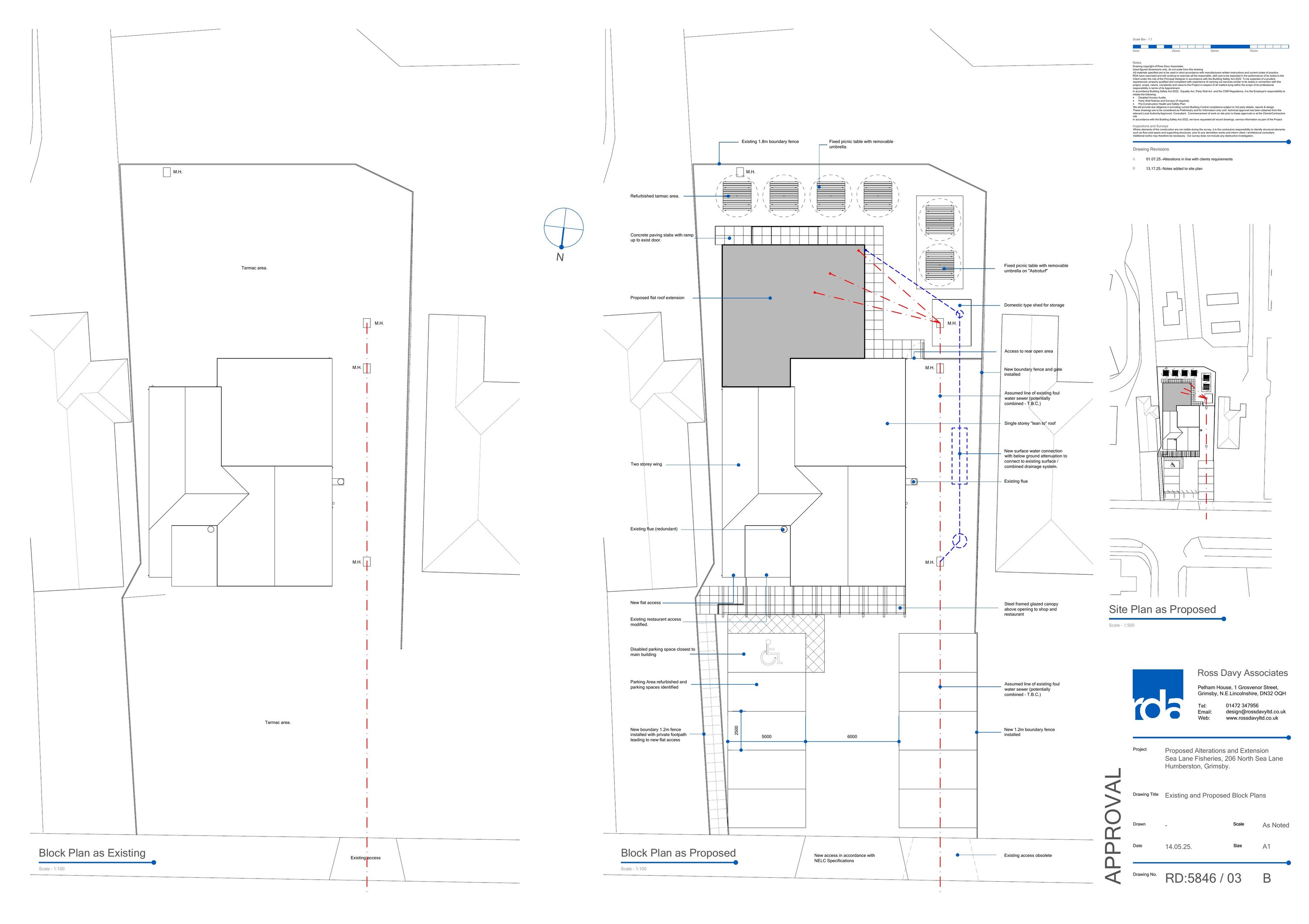
Erect single storey flat roof extension to rear, installation of new glazed canopy to front, creation of external seating area to rear, installation of new vehicular access, alterations to existing car park, boundary treatments and associated works

Documents

APPLICATION FORM
Application Form - No Details
Not archived · Council Link
DESIGN AND ACCESS STATEMENT
Design & Access Statement
Not archived · Council Link
DRAINAGE OFFICER COMMENT
Consultee Comment - No Details
Not archived · Council Link
ENVIRONMENTAL PROTECTION OFFICER COMMENT
Consultee Comment - No Details
Not archived · Council Link
Superseded Plans
Archived · Council Link
EXISTING GROUND FLOOR PLAN,.ELEVATIONS AND BLOCK PLAN - REV-0
Plans & Elevations- Existing
Not archived · Council Link
FLOOD RISK ASSESSMENT
Flood Risk Assessment
Not archived · Council Link
HERITAGE OFFICER COMMENT
Consultee Comment - No Details
Not archived · Council Link
PROPOSED GROUND FLOOR PLAN, ELEVATIONS AND BLOCK PLAN - REV-B
Plans & Elevations- Proposed
Not archived · Council Link
Site Location Plan
Archived · Council Link
TREES AND WOODLANDS OFFICER COMMENT
Consultee Comment - No Details
Not archived · Council Link

Take Action

Make your voice heard. Authorities need to hear from people who support new homes.

✉️ Write Email in Support View on Council Portal