← Back to North Kesteven District Council

Status

Registered Industrial
Received
02 Sep 2025
New dwellings
0

Full Proposal

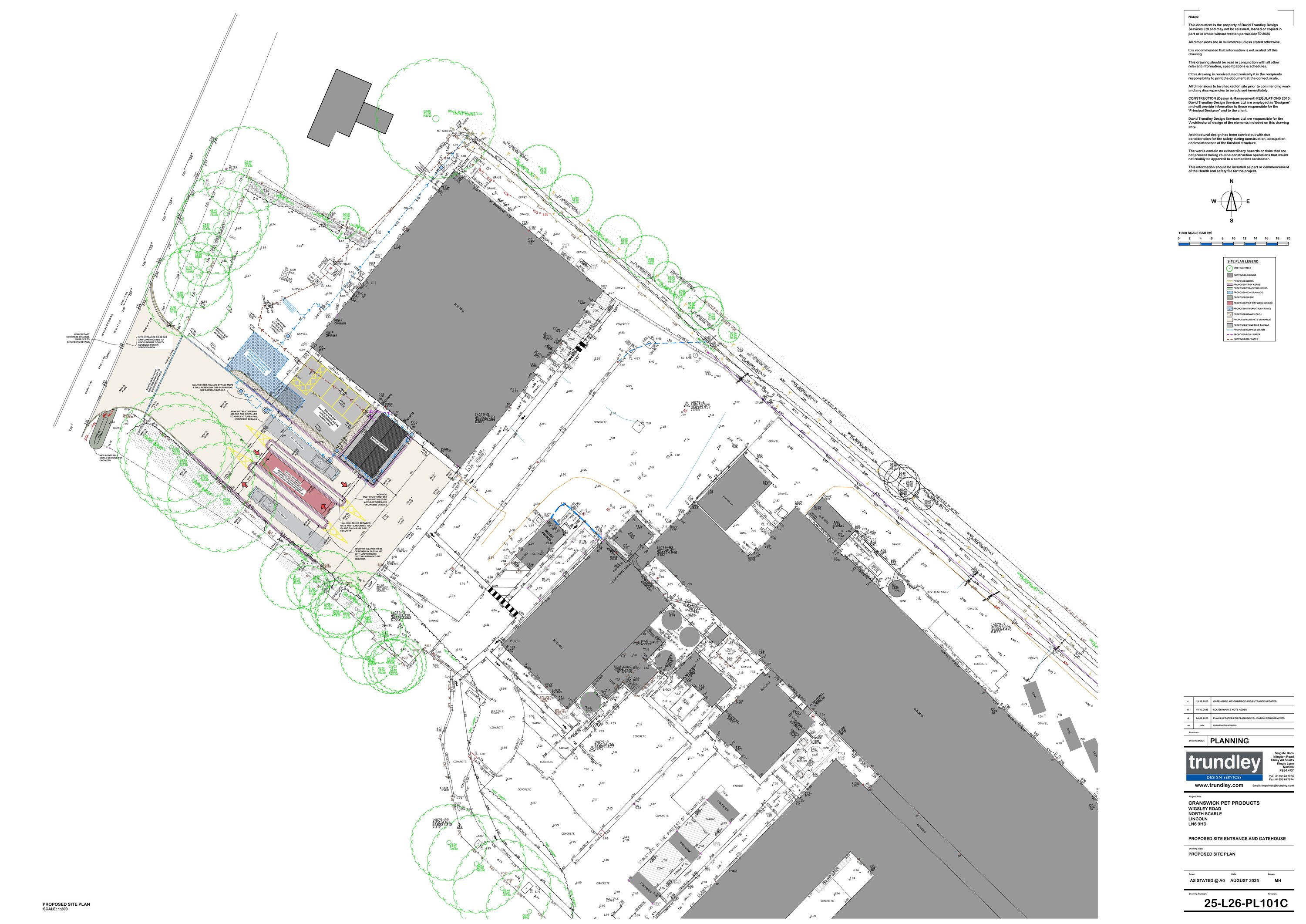
Construction of a new site entrance and gatehouse including vehicular access for HGVs and cars, security gates and fencing, weighbridge and guards office, associated concreting works, drainage measures, and provision of four additional car parking spaces.

Documents

Acknowledgement Letter
Acknowledgement Letter
Not archived · Council Link
Application form - without personal data
Application Form
Not archived · Council Link
Arboricultural impact assessment
Amended Plans
Not archived · Council Link
Arboricultural impact assessment
Superseded Plans
Not archived · Council Link
Biodiversity net gain assessment
Amended Plans
Not archived · Council Link
Biodiversity net gain metric
Amended Plans
Not archived · Council Link
Bng condition assessments
Supporting Documents
Not archived · Council Link
Bng statement
Supporting Documents
Not archived · Council Link
Construction management plan and method statement
Supporting Documents
Not archived · Council Link
Consultee Consultation Letter
Consultee Consultation Letter
Not archived · Council Link
Consultee Consultation Letter
Consultee Consultation Letter
Not archived · Council Link
Consultee Consultation Letter
Consultee Consultation Letter
Not archived · Council Link
Consultee Consultation Letter
Consultee Consultation Letter
Not archived · Council Link
Consultee Consultation Letter
Consultee Consultation Letter
Not archived · Council Link
Consultee Consultation Letter
Consultee Consultation Letter
Not archived · Council Link
Consultee Consultation Letter
Consultee Consultation Letter
Not archived · Council Link
Consultee Correspondence
Consultee Correspondence
Not archived · Council Link
Consultee Correspondence
Consultee Correspondence
Not archived · Council Link
Consultee Correspondence
Consultee Correspondence
Not archived · Council Link
Consultee Correspondence
Consultee Correspondence
Not archived · Council Link
Consultee Correspondence
Consultee Correspondence
Not archived · Council Link
Consultee Correspondence
Consultee Correspondence
Not archived · Council Link
Consultee Correspondence
Consultee Correspondence
Not archived · Council Link
Consultee Correspondence
Consultee Correspondence
Not archived · Council Link
Consultee Correspondence
Consultee Correspondence
Not archived · Council Link
Consultee Correspondence
Consultee Correspondence
Not archived · Council Link
Consultee Correspondence
Consultee Correspondence
Not archived · Council Link
Submitted Plans
Archived · Council Link
Drainage strategy plan
Supporting Documents
Not archived · Council Link
Drainage strategy report
Amended Documents
Not archived · Council Link
Energy statement
Supporting Documents
Not archived · Council Link
Existing block plan
Submitted Plans
Not archived · Council Link
Existing elevations & floor plans - building to be demolished
Submitted Plans
Not archived · Council Link
Flood risk assessment
Amended Documents
Not archived · Council Link
Location plan
Submitted Plans
Not archived · Council Link
Preliminary ecological appraisal
Supporting Documents
Not archived · Council Link
Proposed block plan
Superseded Plans
Not archived · Council Link
Proposed floor plan and elevations gatehouse and weighbridge
Amended Plans
Not archived · Council Link
Proposed gatehouse & weighbridge details
Superseded Plans
Not archived · Council Link
Superseded Plans
Archived · Council Link
Amended Plans
Archived · Council Link
Reply to environment agency comments
Supporting Documents
Not archived · Council Link
Site Notice
Site Notice
Not archived · Council Link
Site Notice
Site Notice
Not archived · Council Link
Whole life carbon assessment
Supporting Documents
Not archived · Council Link

Take Action

Make your voice heard. Authorities need to hear from people who support new homes.

✉️ Write Email in Support View on Council Portal