← Back to North Kesteven District Council

Status

Awaiting decision Change of use
Received
02 Oct 2025
New dwellings
6

Summary

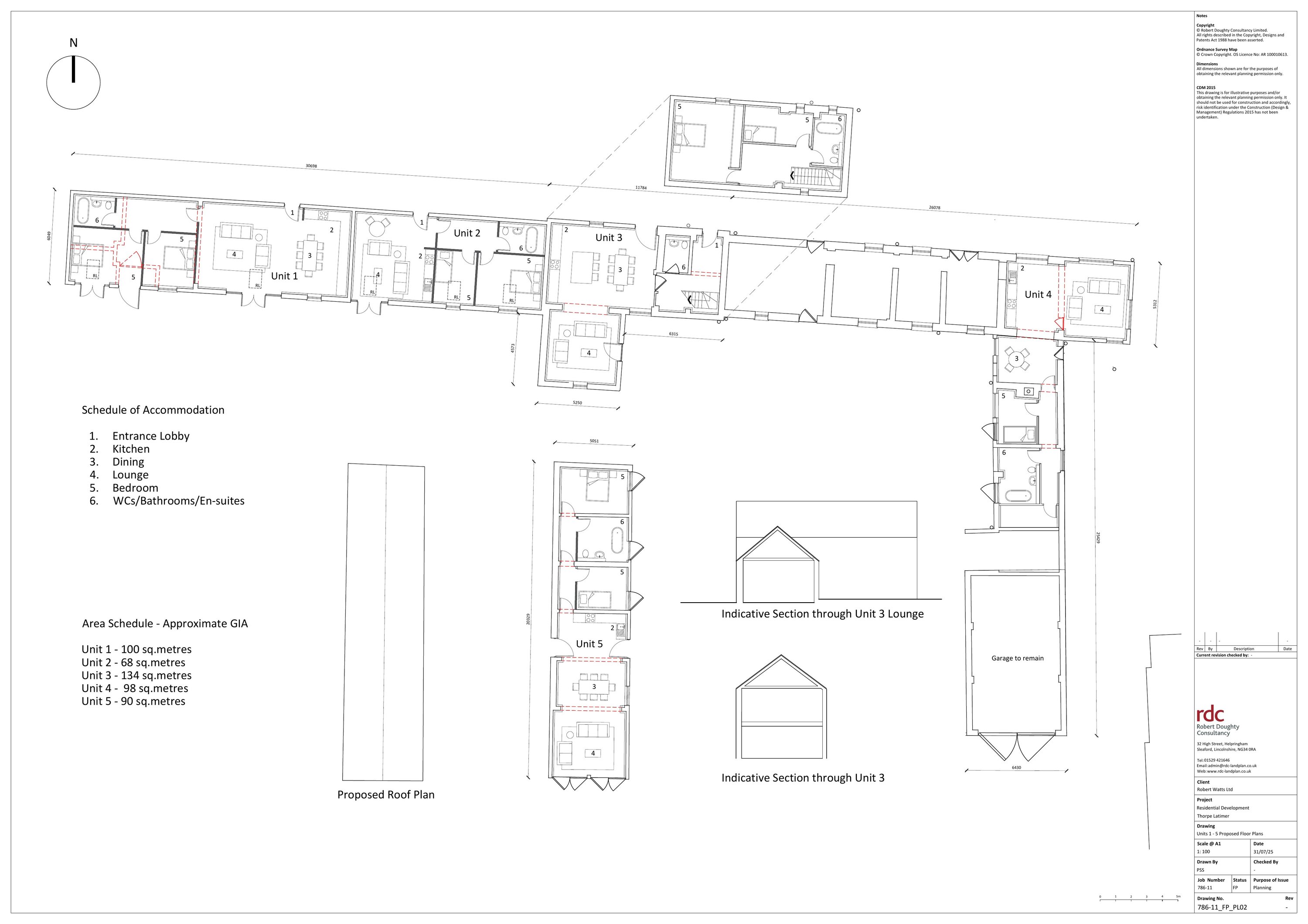
Convert barns into seven residential units; demolish four existing buildings.

Full Proposal

Conversion of barns to 6 short and long term residential stays/lets and a residential annex and demolition of four buildings

Documents

Acknowledgement Letter
Acknowledgement Letter
Not archived · Council Link
Application form - without personal data
Application Form
Not archived · Council Link
Arboricultural impact assessment
Amended Documents
Not archived · Council Link
Biodiversity gain statement
Supporting Documents
Not archived · Council Link
Black sluice guidance notes
Consultee Correspondence
Not archived · Council Link
Consultee Consultation Letter
Consultee Consultation Letter
Not archived · Council Link
Consultee Consultation Letter
Consultee Consultation Letter
Not archived · Council Link
Consultee Consultation Letter
Consultee Consultation Letter
Not archived · Council Link
Consultee Consultation Letter
Consultee Consultation Letter
Not archived · Council Link
Consultee Consultation Letter
Consultee Consultation Letter
Not archived · Council Link
Consultee Consultation Letter
Consultee Consultation Letter
Not archived · Council Link
Consultee Consultation Letter
Consultee Consultation Letter
Not archived · Council Link
Consultee Consultation Letter
Consultee Consultation Letter
Not archived · Council Link
Consultee Consultation Letter
Consultee Consultation Letter
Not archived · Council Link
Consultee Consultation Letter
Consultee Consultation Letter
Not archived · Council Link
Consultee Consultation Letter
Consultee Consultation Letter
Not archived · Council Link
Consultee Correspondence
Consultee Correspondence
Not archived · Council Link
Consultee Correspondence
Consultee Correspondence
Not archived · Council Link
Consultee Correspondence
Consultee Correspondence
Not archived · Council Link
Consultee Correspondence
Consultee Correspondence
Not archived · Council Link
Consultee Correspondence
Consultee Correspondence
Not archived · Council Link
Design and access statement
Supporting Documents
Not archived · Council Link
Ecological appraisal & biodiversity net gain assessment
Supporting Documents
Not archived · Council Link
Existing block plan
Superseded Plans
Not archived · Council Link
Existing block plan
Amended Plans
Not archived · Council Link
Existing elevations - unit 1-4
Amended Plans
Not archived · Council Link
Existing site plan
Submitted Plans
Not archived · Council Link
Floor area plan
Amended Plans
Not archived · Council Link
Floor area plan
Superseded Plans
Not archived · Council Link
Gnc report technical report
Submitted Plans
Not archived · Council Link
Guidance notes from black sluice
Consultee Correspondence
Not archived · Council Link
Policy s13 energy efficiency statement
Supporting Documents
Not archived · Council Link
Proposed bin store
Submitted Plans
Not archived · Council Link
Proposed block plan
Amended Plans
Not archived · Council Link
Proposed block plan
Superseded Plans
Not archived · Council Link
Proposed elevations - unit 1-4
Amended Plans
Not archived · Council Link
Proposed site plan
Submitted Plans
Not archived · Council Link
Proposed swallow barn
Submitted Plans
Not archived · Council Link
Scout (universal ev charging post)
Supporting Documents
Not archived · Council Link
Amended Plans
Archived · Council Link
Superseded Plans
Archived · Council Link
Site Notice
Site Notice
Not archived · Council Link
Statement of heritage signicance
Supporting Documents
Not archived · Council Link
Structural engineers visual inspection
Supporting Documents
Not archived · Council Link
Unit 1 - 4 existing elevations
Superseded Plans
Not archived · Council Link
Submitted Plans
Archived · Council Link
Unit 1-4 proposed elevations
Superseded Plans
Not archived · Council Link
Unit 5 existing elevations
Submitted Plans
Not archived · Council Link
Unit 5 proposed elevations
Submitted Plans
Not archived · Council Link
Units 1 - 5 existing floor plans
Submitted Plans
Not archived · Council Link
Units 1-4 proposed roof plan
Submitted Plans
Not archived · Council Link
Units 6 and 7 existing plans and elevations
Submitted Plans
Not archived · Council Link

Take Action

Make your voice heard. Authorities need to hear from people who support new homes.

✉️ Write Email in Support View on Council Portal