← Back to North Kesteven District Council

Status

Awaiting decision Listed building
Received
02 Oct 2025
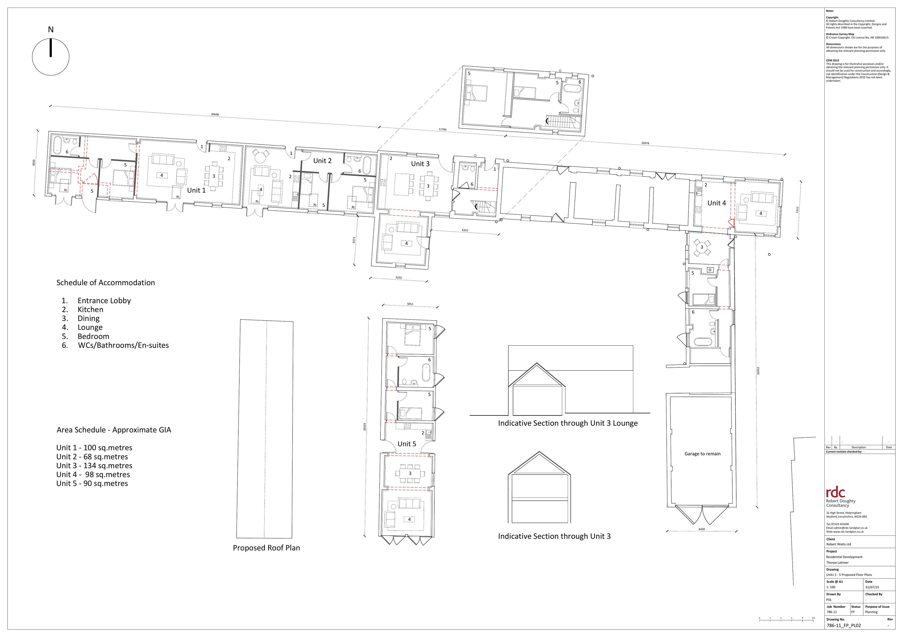
New dwellings
6

Summary

Convert barns into seven residential units; demolish four existing buildings.

Full Proposal

Conversion of barns to 6 short and long term residential stays/lets and a residential annex and demolition of four buildings

Documents

Acknowledgement Letter
Acknowledgement Letter
Not archived · Council Link
Application form - without personal data
Application Form
Not archived · Council Link
Arboricultural impact assessment
Supporting Documents
Not archived · Council Link
Black sluice idb guidance sheet
Consultee Correspondence
Not archived · Council Link
Bng gain statement
Supporting Documents
Not archived · Council Link
Consultee Consultation Letter
Consultee Consultation Letter
Not archived · Council Link
Consultee Consultation Letter
Consultee Consultation Letter
Not archived · Council Link
Consultee Consultation Letter
Consultee Consultation Letter
Not archived · Council Link
Consultee Consultation Letter
Consultee Consultation Letter
Not archived · Council Link
Consultee Consultation Letter
Consultee Consultation Letter
Not archived · Council Link
Consultee Consultation Letter
Consultee Consultation Letter
Not archived · Council Link
Consultee Correspondence
Consultee Correspondence
Not archived · Council Link
Consultee Correspondence
Consultee Correspondence
Not archived · Council Link
Consultee Correspondence
Consultee Correspondence
Not archived · Council Link
Consultee Correspondence
Consultee Correspondence
Not archived · Council Link
Consultee Correspondence
Consultee Correspondence
Not archived · Council Link
Design and access statement
Supporting Documents
Not archived · Council Link
Ecological appraisal and biodiversity net gain assessment
Supporting Documents
Not archived · Council Link
Existing block plan
Superseded Plans
Not archived · Council Link
Existing block plan
Amended Plans
Not archived · Council Link
Existing elevations - unit 1-4
Amended Plans
Not archived · Council Link
Existing site plan
Submitted Plans
Not archived · Council Link
Floor area plan
Amended Plans
Not archived · Council Link
Floor areas plan
Superseded Plans
Not archived · Council Link
Gnc report - technical report
Supporting Documents
Not archived · Council Link
Policys13 energy efficiency statement
Supporting Documents
Not archived · Council Link
Proposed bin store
Submitted Plans
Not archived · Council Link
Proposed block plan
Superseded Plans
Not archived · Council Link
Proposed block plan
Amended Plans
Not archived · Council Link
Proposed elevations - unit 1-4
Amended Plans
Not archived · Council Link
Proposed elevations unit 1-4
Superseded Plans
Not archived · Council Link
Proposed site plan
Submitted Plans
Not archived · Council Link
Proposed swallow barn
Submitted Plans
Not archived · Council Link
Scout universal ev charging post
Supporting Documents
Not archived · Council Link
Superseded Plans
Archived · Council Link
Amended Plans
Archived · Council Link
Site Notice
Site Notice
Not archived · Council Link
Statement of heritage significance
Supporting Documents
Not archived · Council Link
Structural engineer s- visual inspection report
Supporting Documents
Not archived · Council Link
Unit 1 existing floor plans
Submitted Plans
Not archived · Council Link
Unit 1-4 proposed roof plan
Submitted Plans
Not archived · Council Link
Submitted Plans
Archived · Council Link
Unit 5 existing elevations
Submitted Plans
Not archived · Council Link
Unit 5 proposed elevations
Submitted Plans
Not archived · Council Link
Units 1-4 existing elevations
Superseded Plans
Not archived · Council Link
Units 6-7 existing plans and elevations
Submitted Plans
Not archived · Council Link

Take Action

Make your voice heard. Authorities need to hear from people who support new homes.

✉️ Write Email in Support View on Council Portal