← Back to North Kesteven District Council

Status

Registered New housing
Received
17 Nov 2025
New dwellings
4

Summary

Construction of four dwellings with associated garaging and carports.

Full Proposal

Construction of 4 no. dwellings and associated garaging/carports.

Documents

Acknowledgement Letter
Acknowledgement Letter
Not archived · Council Link
Application form - without personal data
Application Form
Not archived · Council Link
Biodiversity assessment - final report
Supporting Documents
Not archived · Council Link
Biodiversity assessment - final report
Supporting Documents
Not archived · Council Link
Biodiversity statement
Supporting Documents
Not archived · Council Link
Bng metric
Supporting Documents
Not archived · Council Link
Condition assessments - existing habitats
Supporting Documents
Not archived · Council Link
Condition assessments - proposed habitats
Supporting Documents
Not archived · Council Link
Condition sheet
Supporting Documents
Not archived · Council Link
Condition sheets
Supporting Documents
Not archived · Council Link
Consultee Consultation Letter
Consultee Consultation Letter
Not archived · Council Link
Consultee Consultation Letter
Consultee Consultation Letter
Not archived · Council Link
Consultee Consultation Letter
Consultee Consultation Letter
Not archived · Council Link
Consultee Consultation Letter
Consultee Consultation Letter
Not archived · Council Link
Consultee Consultation Letter
Consultee Consultation Letter
Not archived · Council Link
Consultee Consultation Letter
Consultee Consultation Letter
Not archived · Council Link
Consultee Consultation Letter
Consultee Consultation Letter
Not archived · Council Link
Consultee Correspondence
Consultee Correspondence
Not archived · Council Link
Consultee Correspondence
Consultee Correspondence
Not archived · Council Link
Design and access statement
Supporting Documents
Not archived · Council Link
Embodied carbon report
Supporting Documents
Not archived · Council Link
Energy checklist
Supporting Documents
Not archived · Council Link
Energy statement
Supporting Documents
Not archived · Council Link
Ground contamination invastigation & assessment phase 1 desk study
Supporting Documents
Not archived · Council Link
Preliminary ecological appraisal
Supporting Documents
Not archived · Council Link
Preliminary ecological appraisal - final report
Supporting Documents
Not archived · Council Link
Proposed access plan
Additional Plans
Not archived · Council Link
Proposed elevations (1 of 2) plot 2
Submitted Plans
Not archived · Council Link
Proposed elevations (1of 2) plot 3
Submitted Plans
Not archived · Council Link
Proposed elevations - plot 4
Submitted Plans
Not archived · Council Link
Proposed elevations 1 of 2 plot 1
Submitted Plans
Not archived · Council Link
Proposed elevations 2 of 2 - plot 2
Submitted Plans
Not archived · Council Link
Proposed elevations 2 of 2 plot 1
Submitted Plans
Not archived · Council Link
Proposed elevations 2 of 2 plot 3
Submitted Plans
Not archived · Council Link
Proposed first floor plot 1
Submitted Plans
Not archived · Council Link
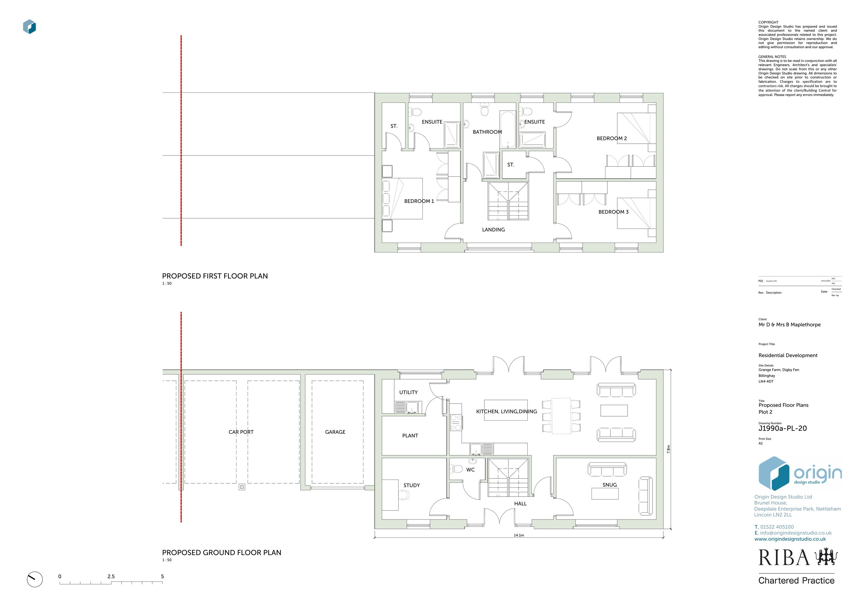
Proposed floor plan
Submitted Plans
Not archived · Council Link
Submitted Plans
Archived · Council Link
Submitted Plans
Archived · Council Link
Proposed garage drawings plot 3
Submitted Plans
Not archived · Council Link
Proposed ground floor plot 1
Submitted Plans
Not archived · Council Link
Submitted Plans
Archived · Council Link
Site Notice
Site Notice
Not archived · Council Link
Statutory biodiversity metric calculation tool
Supporting Documents
Not archived · Council Link
Tree constraints plan
Supporting Documents
Not archived · Council Link
Visibility splays
Additional Plans
Not archived · Council Link

Take Action

Make your voice heard. Authorities need to hear from people who support new homes.

✉️ Write Email in Support View on Council Portal