← Back to North Kesteven District Council

Status

Awaiting decision New housing
Received
17 Nov 2025
New dwellings
1

Full Proposal

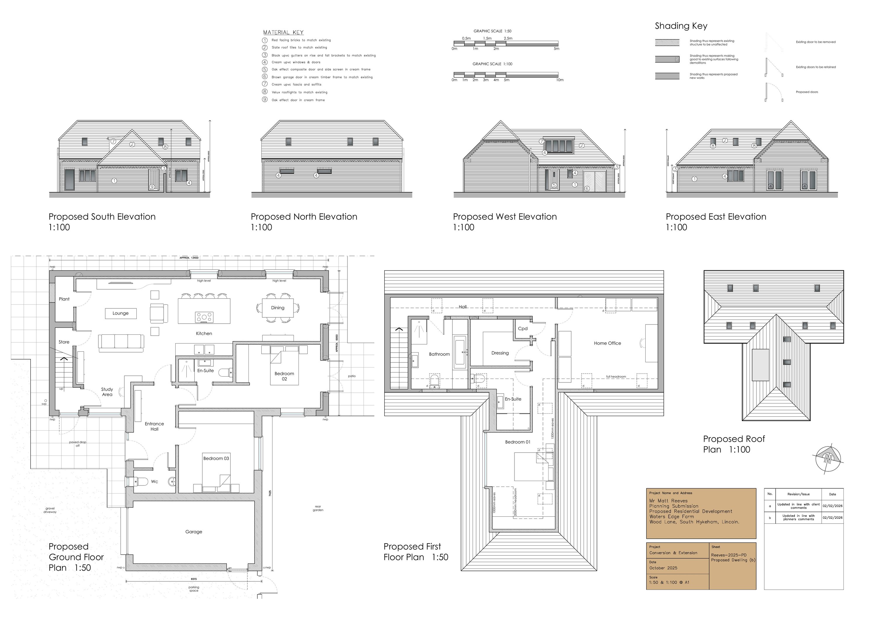
Removal of Welton Garage Vehicle Storage & Sales from the existing property. Conversion & extension of existing annexe building to form single dwelling (custom self build) and associated works including garaging, parking and garden walls

Documents

Acknowledgement Letter
Acknowledgement Letter
Not archived · Council Link
Application Form
Application Form
Not archived · Council Link
Arboricultural impact assessment
Supporting Documents
Not archived · Council Link
Arboricultural method statement
Supporting Documents
Not archived · Council Link
Bng statement
Supporting Documents
Not archived · Council Link
Consultee Consultation Letter
Consultee Consultation Letter
Not archived · Council Link
Consultee Consultation Letter
Consultee Consultation Letter
Not archived · Council Link
Consultee Consultation Letter
Consultee Consultation Letter
Not archived · Council Link
Consultee Consultation Letter
Consultee Consultation Letter
Not archived · Council Link
Consultee Consultation Letter
Consultee Consultation Letter
Not archived · Council Link
Consultee Consultation Letter
Consultee Consultation Letter
Not archived · Council Link
Consultee Consultation Letter
Consultee Consultation Letter
Not archived · Council Link
Consultee Consultation Letter
Consultee Consultation Letter
Not archived · Council Link
Consultee Consultation Letter
Consultee Consultation Letter
Not archived · Council Link
Consultee Correspondence
Consultee Correspondence
Not archived · Council Link
Consultee Correspondence
Consultee Correspondence
Not archived · Council Link
Consultee Correspondence
Consultee Correspondence
Not archived · Council Link
Consultee Correspondence
Consultee Correspondence
Not archived · Council Link
Consultee Correspondence
Consultee Correspondence
Not archived · Council Link
Consultee Correspondence
Consultee Correspondence
Not archived · Council Link
Consultee Correspondence
Consultee Correspondence
Not archived · Council Link
Consultee Correspondence
Consultee Correspondence
Not archived · Council Link
Consultee Correspondence
Consultee Correspondence
Not archived · Council Link
Consultee Correspondence
Consultee Correspondence
Not archived · Council Link
Consultee Correspondence
Consultee Correspondence
Not archived · Council Link
Consultee Correspondence
Consultee Correspondence
Not archived · Council Link
Demolition and construction management plan
Additional Supporting Document
Not archived · Council Link
Existing floor plans and elevations
Submitted Plans
Not archived · Council Link
Existing site location and block plan
Submitted Plans
Not archived · Council Link
Photos
Supporting Documents
Not archived · Council Link
Proposed car port details
Submitted Plans
Not archived · Council Link
Superseded Plans
Archived · Council Link
Proposed site layout plan
Amended Plans
Not archived · Council Link

Take Action

Make your voice heard. Authorities need to hear from people who support new homes.

✉️ Write Email in Support View on Council Portal