← Back to North Kesteven District Council
Status
Registered
New housing
Full Proposal
Erection of 141no. dwellings and associated infrastructure.
Documents
Acknowledgement Letter
Acknowledgement Letter
Application form - without personal data
Application Form
Arboricultural assessment
Supporting Documents
Attenuation basin sections
Submitted Plans
Biodiversity gain statement
Supporting Documents
Biodiversity metric calculation tool
Supporting Documents
Biodiversity survey and report
Supporting Documents
Boundary treatment plan
Submitted Plans
Coloured site layout plan
Supporting Documents
Comments from lincolnshire police
Consultee Correspondence
Consultee Consultation Letter
Consultee Consultation Letter
Consultee Consultation Letter
Consultee Consultation Letter
Consultee Consultation Letter
Consultee Consultation Letter
Consultee Consultation Letter
Consultee Consultation Letter
Consultee Consultation Letter
Consultee Consultation Letter
Consultee Consultation Letter
Consultee Consultation Letter
Consultee Consultation Letter
Consultee Consultation Letter
Consultee Consultation Letter
Consultee Consultation Letter
Consultee Consultation Letter
Consultee Consultation Letter
Consultee Consultation Letter
Consultee Consultation Letter
Consultee Consultation Letter
Consultee Consultation Letter
Consultee Consultation Letter
Consultee Consultation Letter
Consultee Consultation Letter
Consultee Consultation Letter
Consultee Consultation Letter
Consultee Consultation Letter
Consultee Consultation Letter
Consultee Consultation Letter
Consultee Consultation Letter
Consultee Consultation Letter
Consultee Consultation Letter
Consultee Consultation Letter
Consultee Consultation Letter
Consultee Consultation Letter
Consultee Correspondence
Consultee Correspondence
Design and access statement
Supporting Documents
Drainage strategy
Supporting Documents
Ecological impact assessment
Supporting Documents
Energy efficiency checklist
Supporting Documents
Energy report
Supporting Documents
Flood risk assessment & drainage strategy
Supporting Documents
Ground investigation report
Supporting Documents
Levels & retaining - sheet 1 of 2
Submitted Plans
Levels & retaining - sheet 1 of 2
Submitted Plans
Location plan
Submitted Plans
Materials plan
Submitted Plans
Planning statement including heritage, minerals and sci
Supporting Documents
Preliminary ecological appraisal
Supporting Documents
Proposed elevations
Submitted Plans
Proposed elevations
Submitted Plans
Proposed elevations
Submitted Plans
Proposed elevations
Submitted Plans
Proposed elevations
Submitted Plans
Proposed elevations
Submitted Plans
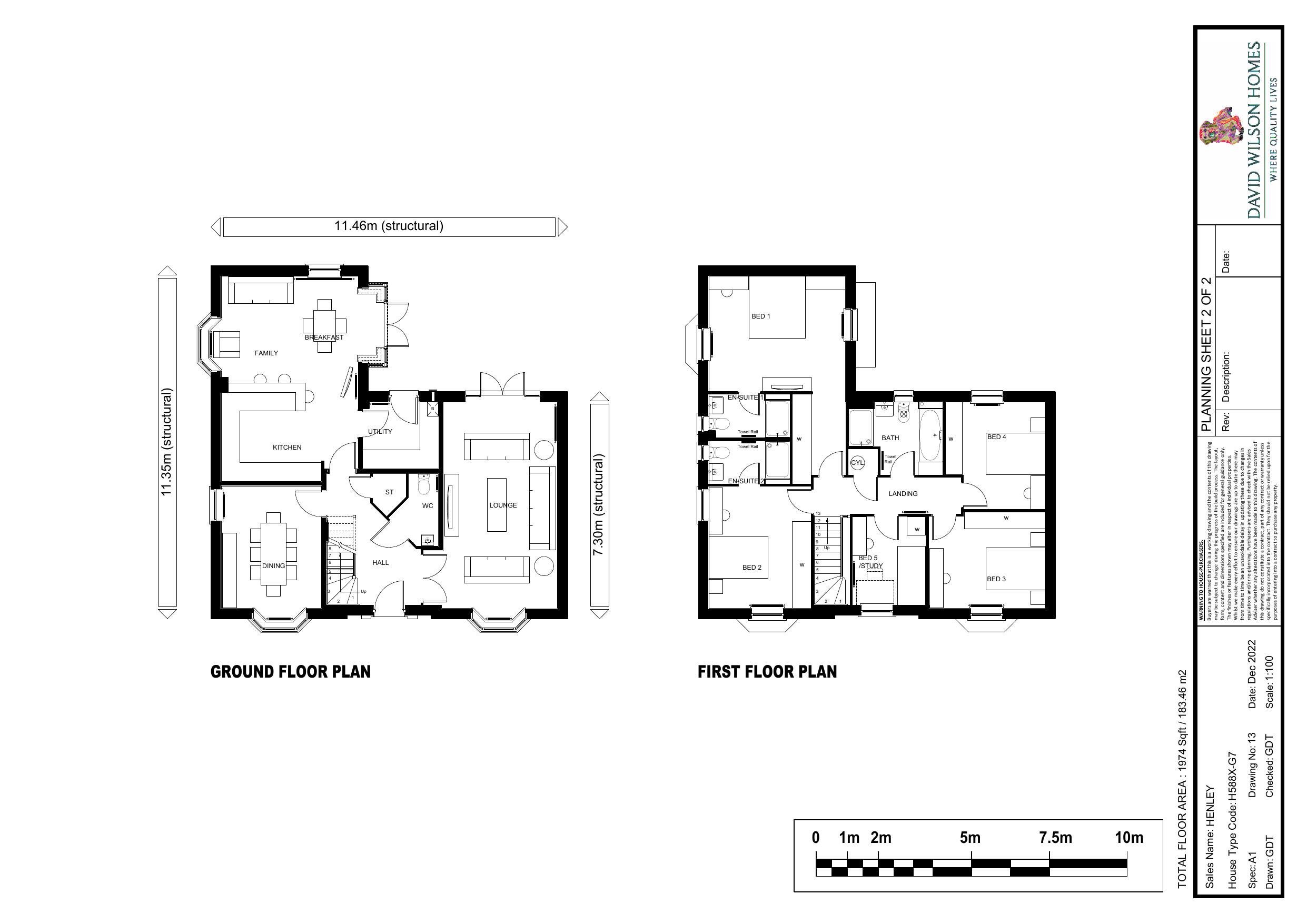
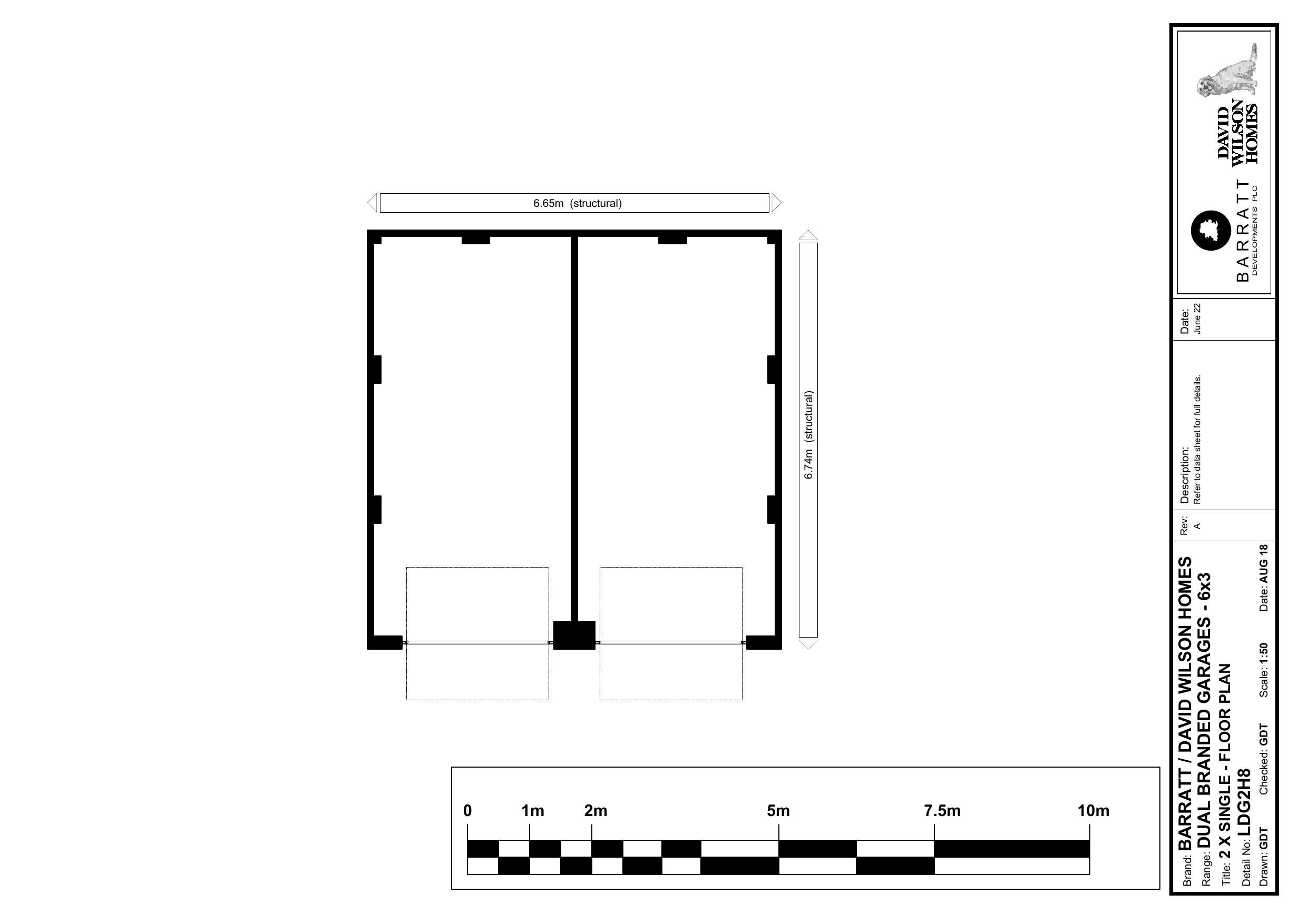
Proposed elevations & floor plans
Submitted Plans
Proposed elevations & floor plans
Submitted Plans
Proposed elevations & floor plans
Submitted Plans
Proposed elevations & floor plans
Submitted Plans
Proposed elevations & floor plans
Submitted Plans
Proposed elevations & floor plans
Submitted Plans
Proposed elevations & floor plans
Submitted Plans
Proposed elevations & floor plans
Submitted Plans
Proposed elevations & floor plans
Submitted Plans
Proposed elevations & floor plans
Submitted Plans
Proposed elevations & floor plans
Submitted Plans
Proposed elevations & floor plans
Submitted Plans
Proposed elevations & floor plans
Submitted Plans
Proposed elevations & floor plans
Submitted Plans
Proposed elevations & floor plans
Submitted Plans
Proposed elevations & floor plans
Submitted Plans
Proposed elevations & floor plans
Submitted Plans
Proposed elevations & floor plans
Submitted Plans
Proposed elevations & floor plans
Submitted Plans
Proposed elevations & floor plans
Submitted Plans
Proposed elevations & floor plans
Submitted Plans
Proposed elevations & floor plans
Submitted Plans
Proposed elevations & floor plans
Submitted Plans
Proposed elevations & floor plansfloor plans
Submitted Plans
Proposed elevations & floor plansfloor plans
Submitted Plans
Proposed elevations & floor plansfloor plans
Submitted Plans
Proposed elevations & floor plansfloor plans
Submitted Plans
Proposed elevations & floor plansfloor plans
Submitted Plans
Proposed elevations & floor plansfloor plans
Submitted Plans
Residential travel plan
Supporting Documents
Road contours
Submitted Plans
Road general arrangement
Submitted Plans
Site survey
Submitted Plans
Soft landscaping - sheet 1 of 4
Submitted Plans
Soft landscaping - sheet 2 of 4
Submitted Plans
Soft landscaping - sheet 3 of 4
Submitted Plans
Soft landscaping - sheet 4 of 4
Submitted Plans
Street scenes
Supporting Documents
Transport statement
Supporting Documents
Watercourse sections catchwater drain
Submitted Plans
Take Action
Make your voice heard. Authorities need to hear from people who support new homes.