← Back to North Kesteven District Council

Status

Registered Change of use
Received
19 days ago
New dwellings
1

Full Proposal

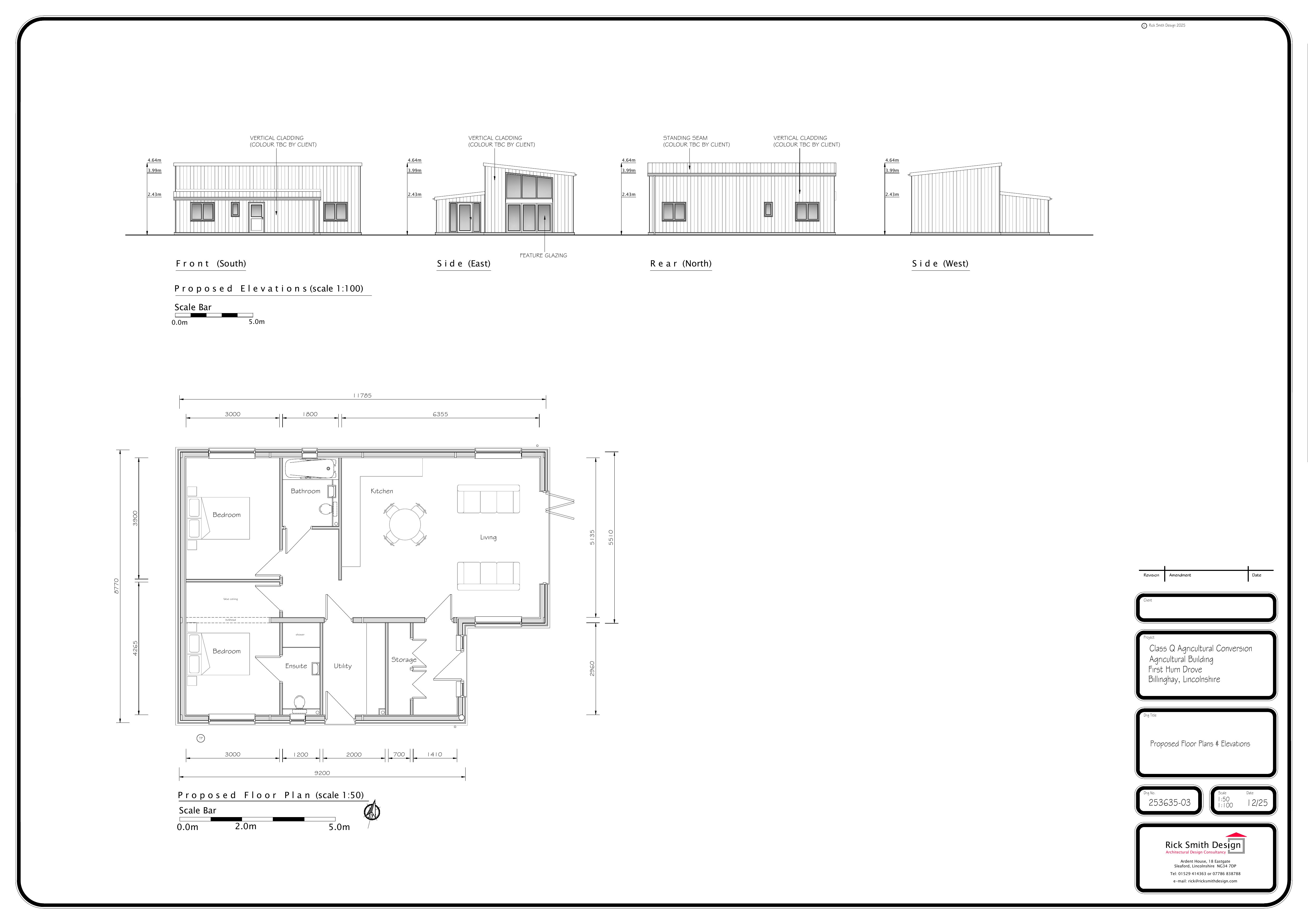
Application under Class Q of the Town and Country Planning (General Permitted Development) Order for prior approval for change of use from agricultural barn to dwelling

Documents

Acknowledgement Letter
Acknowledgement Letter
Not archived · Council Link
Application form - without personal data
Application Form
Not archived · Council Link
Consultee Consultation Letter
Consultee Consultation Letter
Not archived · Council Link
Consultee Consultation Letter
Consultee Consultation Letter
Not archived · Council Link
Consultee Consultation Letter
Consultee Consultation Letter
Not archived · Council Link
Consultee Consultation Letter
Consultee Consultation Letter
Not archived · Council Link
Consultee Consultation Letter
Consultee Consultation Letter
Not archived · Council Link
Consultee Consultation Letter
Consultee Consultation Letter
Not archived · Council Link
Existing floor plans and elevations
Submitted Plans
Not archived · Council Link
Submitted Plans
Archived · Council Link
Submitted Plans
Archived · Council Link
Flood risk assessment
Supporting Documents
Not archived · Council Link
Planning statement
Supporting Documents
Not archived · Council Link
Submitted Plans
Archived · Council Link
Site Notice
Site Notice
Not archived · Council Link

Take Action

Make your voice heard. Authorities need to hear from people who support new homes.

✉️ Write Email in Support View on Council Portal