← Back to North Norfolk District Council

Status

Pending Consideration Change of use
Received
30 Sep 2025
New dwellings
1

Full Proposal

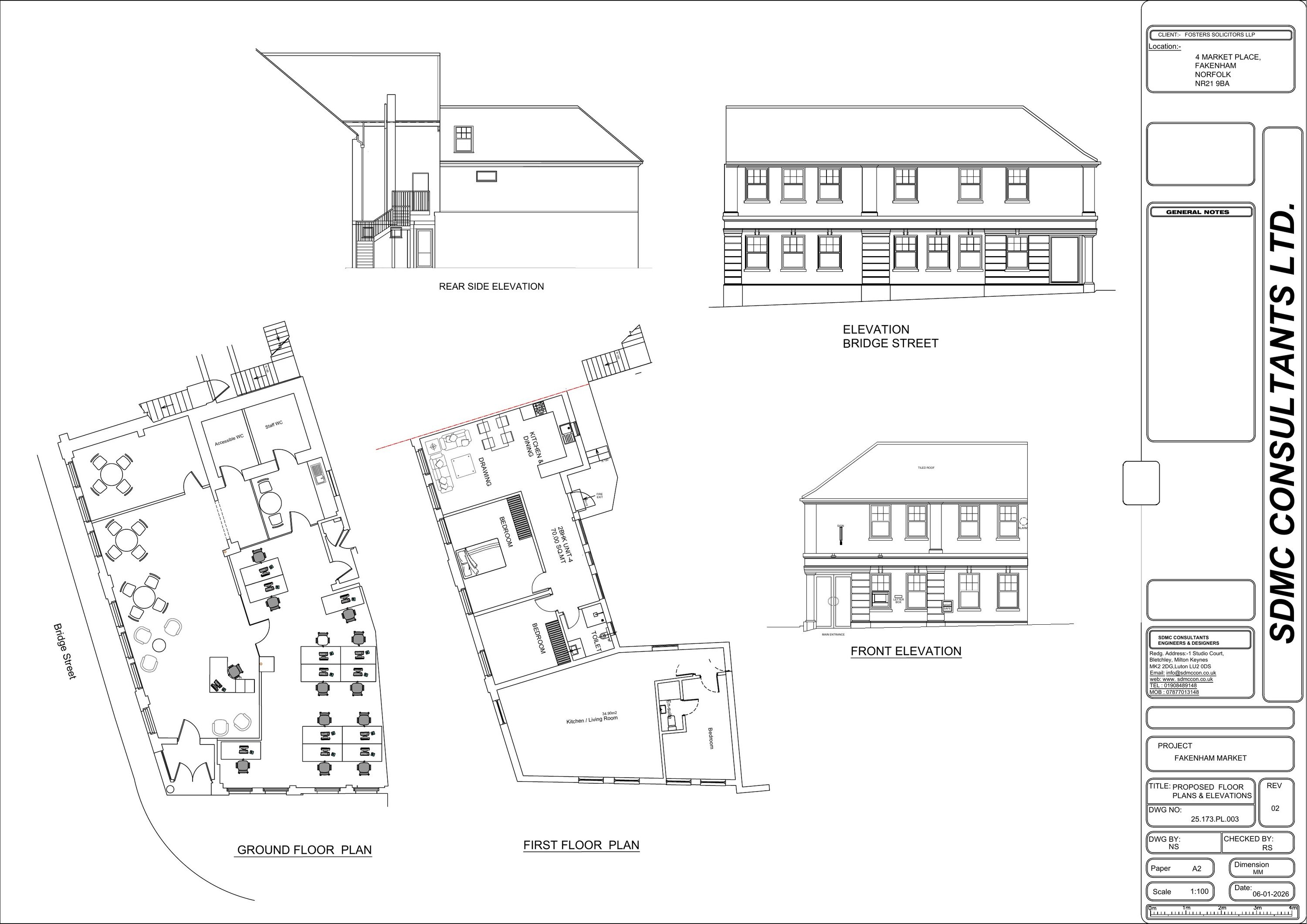
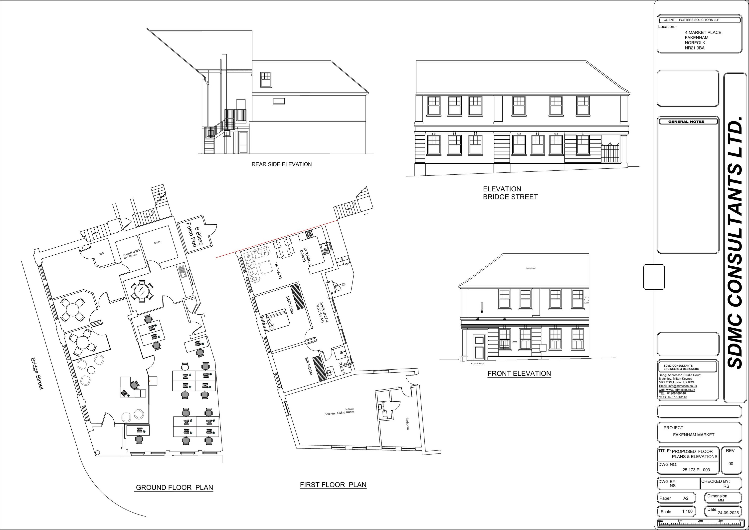
Conversion of first floor vacant class E space into one two-bedroom self contained flat with ground floor internal alterations to create an updated office layout AMENDED PLANS RECD

Documents

Ai declaration
Report / Statement
Not archived · Council Link
Application form
Application Form
Not archived · Council Link
Clerk lesley meanley
Consultee Comment
Not archived · Council Link
Conservation & design response
Consultee Comment
Not archived · Council Link
Design, access & heritage statement
Report / Statement
Not archived · Council Link
Existing plans & elevations
Plan
Not archived · Council Link
Revised Plan
Archived · Council Link
Site notice and map
Other
Not archived · Council Link
Site notice and map
Other
Not archived · Council Link
Town council response
Consultee Comment
Not archived · Council Link

Take Action

Make your voice heard. Authorities need to hear from people who support new homes.

✉️ Write Email in Support View on Council Portal