← Back to North Norfolk District Council

Status

Pending Consideration New housing
Received
19 Nov 2024
New dwellings
4

Full Proposal

Erection of additional four, one bedroom self-contained tree houses for use as short-term holiday let accommodation with external works and servicing (to include solar panels, ponds and car parking provision)

Documents

03 proposed block plan
Plan
Not archived · Council Link
03 proposed east elevation
Plan
Not archived · Council Link
03 proposed north elevation
Plan
Not archived · Council Link
03 proposed roof plan
Plan
Not archived · Council Link
03 proposed site section
Plan
Not archived · Council Link
03 proposed south elevation
Plan
Not archived · Council Link
03 proposed west elevation
Plan
Not archived · Council Link
03 tree house 3 visualisation 01 south
Plan
Not archived · Council Link
03 tree house 3 visualisation 02 east
Plan
Not archived · Council Link
04 ,05,06 proposed location plan cloud
Plan
Not archived · Council Link
04 proposed elevations 01 & 02
Plan
Not archived · Council Link
04 proposed elevations 03 & 04
Plan
Not archived · Council Link
04 proposed roof plan
Plan
Not archived · Council Link
04 proposed sections
Plan
Not archived · Council Link
04 visualisation 1
Plan
Not archived · Council Link
04 visualisation 2
Plan
Not archived · Council Link
05 proposed east elevation
Plan
Not archived · Council Link
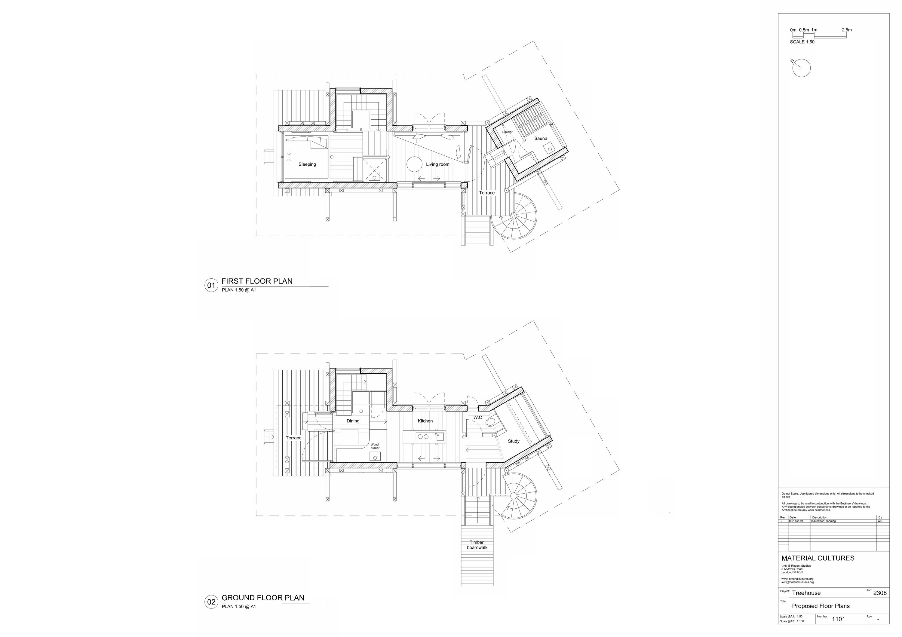
05 proposed first floor plan
Plan
Not archived · Council Link
05 proposed ground floor plan
Plan
Not archived · Council Link
05 proposed north elevation
Plan
Not archived · Council Link
05 proposed roof plan
Plan
Not archived · Council Link
05 proposed second floor plan
Plan
Not archived · Council Link
05 proposed section aa
Plan
Not archived · Council Link
05 proposed section bb
Plan
Not archived · Council Link
05 proposed south elevation
Plan
Not archived · Council Link
05 proposed west elevation
Plan
Not archived · Council Link
06 access plan
Plan
Not archived · Council Link
06 east elevation
Plan
Not archived · Council Link
06 existing location plan
Plan
Not archived · Council Link
06 ground floor plan
Plan
Not archived · Council Link
06 north elevation
Plan
Not archived · Council Link
06 proposed block plan
Plan
Not archived · Council Link
06 proposed long section
Plan
Not archived · Council Link
06 proposed short section
Plan
Not archived · Council Link
06 roof plan
Plan
Not archived · Council Link
Application form
Application Form
Not archived · Council Link
Arboricultural impact assessment
Report / Statement
Not archived · Council Link
Arboricultural impact assessment, tree protection plan, method statement
Superseded Document or Plan
Not archived · Council Link
Baseline habitat condition assessment
Report / Statement
Not archived · Council Link
Baseline habitat condition assessment (bhca)
Report / Statement
Not archived · Council Link
Biodiversity metric calculator
Report / Statement
Not archived · Council Link
Bng - habitat map
Plan
Not archived · Council Link
Bng metric
Report / Statement
Not archived · Council Link
Comments - 34 the street
Public Comment
Not archived · Council Link
Construction environmental management plan
Plan
Not archived · Council Link
Control schedule
Superseded Document or Plan
Not archived · Council Link
Control schedule
Report / Statement
Not archived · Council Link
Denizen works treehouse external layout drawing
Plan
Not archived · Council Link
Denizen works treehouse internal layout drawing
Plan
Not archived · Council Link
Design report
Superseded Document or Plan
Not archived · Council Link
Design report
Report / Statement
Not archived · Council Link
Development committee call in form
Other
Not archived · Council Link
Documents and drawings submission list
Supporting Document
Not archived · Council Link
Draft - habitat management and monitoring plan/landscape environment management
Report / Statement
Not archived · Council Link
Driver schedule
Superseded Document or Plan
Not archived · Council Link
Ecological impact assessment
Report / Statement
Not archived · Council Link
Economic development
Consultee Comment
Not archived · Council Link
Environmental health response
Consultee Comment
Not archived · Council Link
External isoline drawing 1
Plan
Not archived · Council Link
External isoline drawing 2
Report / Statement
Not archived · Council Link
External isoline drawing 3
Plan
Not archived · Council Link
External isoline drawing 4
Plan
Not archived · Council Link
External isoline drawing 5
Plan
Not archived · Council Link
Foul drainage strategy
Report / Statement
Not archived · Council Link
Habitat management & monitoring plan
Report / Statement
Not archived · Council Link
Highways response
Consultee Comment
Not archived · Council Link
Husdon treehouse external layout drawing
Plan
Not archived · Council Link
Husdon treehouse internal layout drawing
Plan
Not archived · Council Link
Inex isoline drawing 5
Plan
Not archived · Council Link
Internal & external isoline drawing 1
Plan
Not archived · Council Link
Internal & external isoline drawing 2
Plan
Not archived · Council Link
Internal & external isoline drawing 3
Plan
Not archived · Council Link
Internal & external isoline drawing 4
Plan
Not archived · Council Link
Internal isoline drawing 1
Plan
Not archived · Council Link
Internal isoline drawing 2
Plan
Not archived · Council Link
Internal isoline drawing 3
Plan
Not archived · Council Link
Landscape and visual impact assessment (lvia)
Report / Statement
Not archived · Council Link
Landscape officer
Consultee Comment
Not archived · Council Link
Landscape response
Correspondence
Not archived · Council Link
Landscape response
Consultee Comment
Not archived · Council Link
Location plan
Plan
Not archived · Council Link
Luminaire schedule
Superseded Document or Plan
Not archived · Council Link
Luminaire schedule
Report / Statement
Not archived · Council Link
Lva01 figures
Plan
Not archived · Council Link
Material culture external layout drawing
Plan
Not archived · Council Link
Material culture internal layout drawing
Plan
Not archived · Council Link
Mole treehouse internal layout drawing
Plan
Not archived · Council Link
Natural england response
Consultee Comment
Not archived · Council Link
Norfolk fire & rescue response
Consultee Comment
Not archived · Council Link
Objection - public comment 22.01.2025
Public Comment
Not archived · Council Link
Parish council comment - fulmodeston and barney
Consultee Comment
Not archived · Council Link
Parish council comment - swanton novers
Consultee Comment
Not archived · Council Link
Photographic sheets
Photo
Not archived · Council Link
Preliminary ecological appraisal
Report / Statement
Not archived · Council Link
Preliminary ecological appraisal ? treehouses 3 - 6
Superseded Document or Plan
Not archived · Council Link
Proposed location plan
Plan
Not archived · Council Link
Proposed location plan
Plan
Not archived · Council Link
Public rights of way response
Consultee Comment
Not archived · Council Link
Recreational impact avoidance & mitigation strategy action plan
Report / Statement
Not archived · Council Link
Response to landscape officer comments
Correspondence
Not archived · Council Link
Sssi impact assessment
Report / Statement
Not archived · Council Link
Statutory biodiversity metric calculation tool
Report / Statement
Not archived · Council Link
Treehouse phase 2 design & access statement
Report / Statement
Not archived · Council Link
Treehouse phase 2 design & access statement
Report / Statement
Not archived · Council Link
Treehouse phase 2 design & access statement
Report / Statement
Not archived · Council Link
Treehouse phase 2 design & access statement
Report / Statement
Not archived · Council Link
Treehouse phase 2 design & access statement
Report / Statement
Not archived · Council Link
Treehouse phase 2 design & access statement
Report / Statement
Not archived · Council Link
Treehouse phase 2 design & access statement
Report / Statement
Not archived · Council Link
Treehouse phase 2 design & access statement
Report / Statement
Not archived · Council Link
Treehouse phase 2 design & access statement
Report / Statement
Not archived · Council Link
Treehouse phase 2 design & access statement
Report / Statement
Not archived · Council Link
Treehouse phase 2 design & access statement
Report / Statement
Not archived · Council Link
Treehouse phase 2 design & access statement
Report / Statement
Not archived · Council Link
Treehouse phase 2 design & access statement
Report / Statement
Not archived · Council Link
Treehouses phase 2 -planning statement
Report / Statement
Not archived · Council Link
Woodland management plan
Report / Statement
Not archived · Council Link
Woodland management plan with appendixes
Report / Statement
Not archived · Council Link

Take Action

Make your voice heard. Authorities need to hear from people who support new homes.

✉️ Write Email in Support View on Council Portal