← Back to North Norfolk District Council

Status

Pending Consideration Demolition
Received
08 Sep 2025
New dwellings
0

Full Proposal

Demolition of existing dwelling and erection of replacement dwelling with private access, parking and amenity

Documents

Application form
Application Form
Not archived · Council Link
Arboricultural impact assessment
Report / Statement
Not archived · Council Link
Arboricultural impact assessment
Superseded Document or Plan
Not archived · Council Link
Biodiversity net gain assessment
Report / Statement
Not archived · Council Link
Biodiversity net gain assessment
Superseded Document or Plan
Not archived · Council Link
Biodiversity net gain metric
Superseded Document or Plan
Not archived · Council Link
Biodiversity net gain metric
Report / Statement
Not archived · Council Link
Conservation & design
Consultee Comment
Not archived · Council Link
Conservation & design response
Consultee Comment
Not archived · Council Link
Contaminated land screening assessment
Report / Statement
Not archived · Council Link
Copy of advert for fakenham and dereham times for 25th september 2025
Other
Not archived · Council Link
Design & access statement rev c
Report / Statement
Not archived · Council Link
Design access & heritage statement
Superseded Document or Plan
Not archived · Council Link
Ecological impact assessment
Superseded Document or Plan
Not archived · Council Link
Ecological impact assessment
Report / Statement
Not archived · Council Link
Environment agency response
Consultee Comment
Not archived · Council Link
Existing plans, elevations, & location plan
Plan
Not archived · Council Link
Flood risk assessment
Report / Statement
Not archived · Council Link
Flood risk assessment
Report / Statement
Not archived · Council Link
Flood risk assessment
Report / Statement
Not archived · Council Link
Heritage, design & access statement
Superseded Document or Plan
Not archived · Council Link
Highways response
Consultee Comment
Not archived · Council Link
Historic environment response
Consultee Comment
Not archived · Council Link
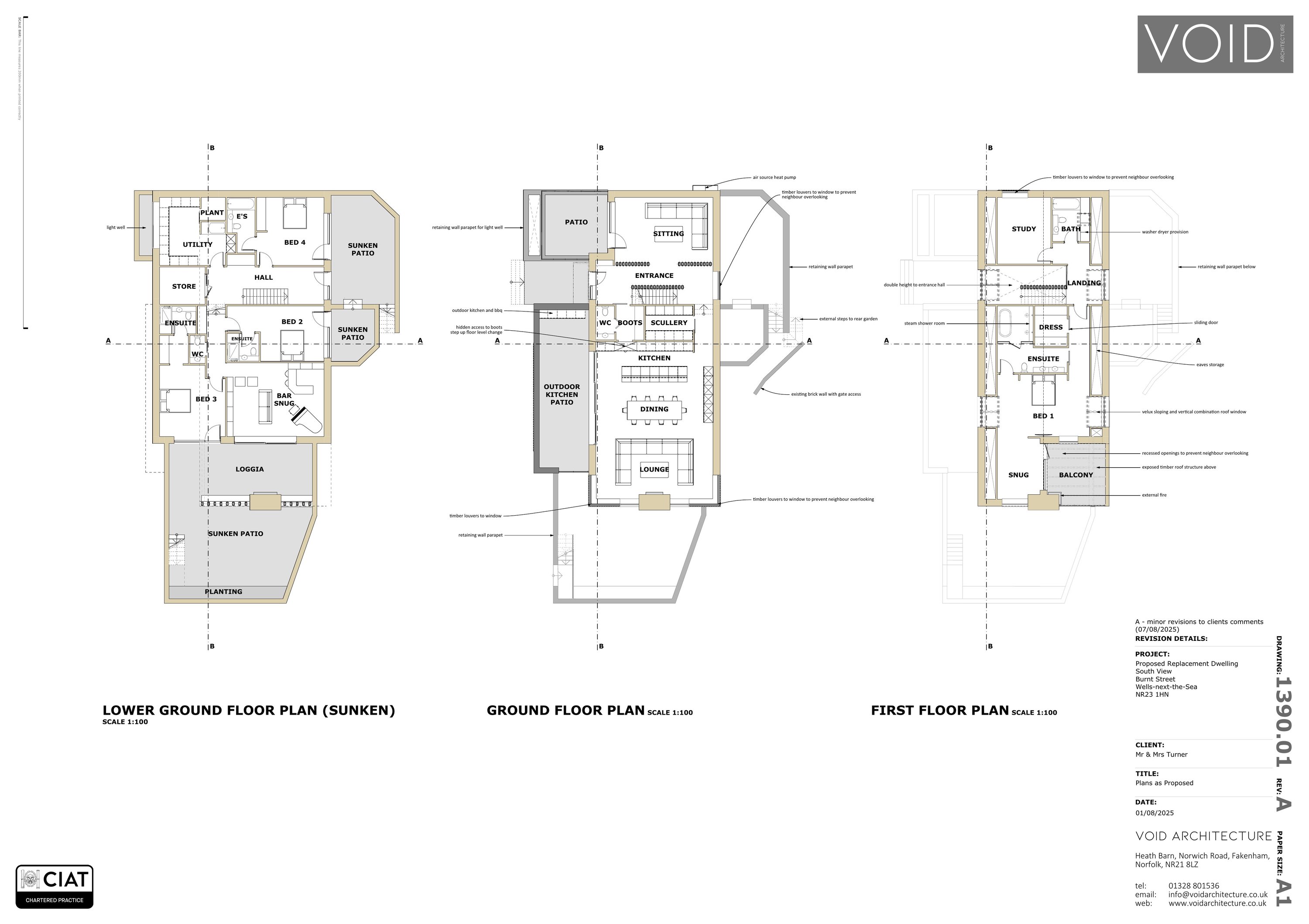
Plans as proposed (a1) - includes first floor
Revised Plan
Not archived · Council Link
Proposed elevations & sections
Superseded Document or Plan
Not archived · Council Link
Proposed elevations and sections
Revised Plan
Not archived · Council Link
Superseded Document or Plan
Archived · Council Link
Superseded Document or Plan
Archived · Council Link
Revised Plan
Archived · Council Link
Superseded Document or Plan
Archived · Council Link
Superseded Document or Plan
Archived · Council Link
Public rights of way response
Consultee Comment
Not archived · Council Link
Revised Plan
Archived · Council Link
Topographical survey overview
Plan
Not archived · Council Link
Town council response
Consultee Comment
Not archived · Council Link
Use of ai declaration
Report / Statement
Not archived · Council Link

Take Action

Make your voice heard. Authorities need to hear from people who support new homes.

✉️ Write Email in Support View on Council Portal