← Back to North Norfolk District Council

Status

Pending Consideration House extension
Received
17 Sep 2025
New dwellings
0

Full Proposal

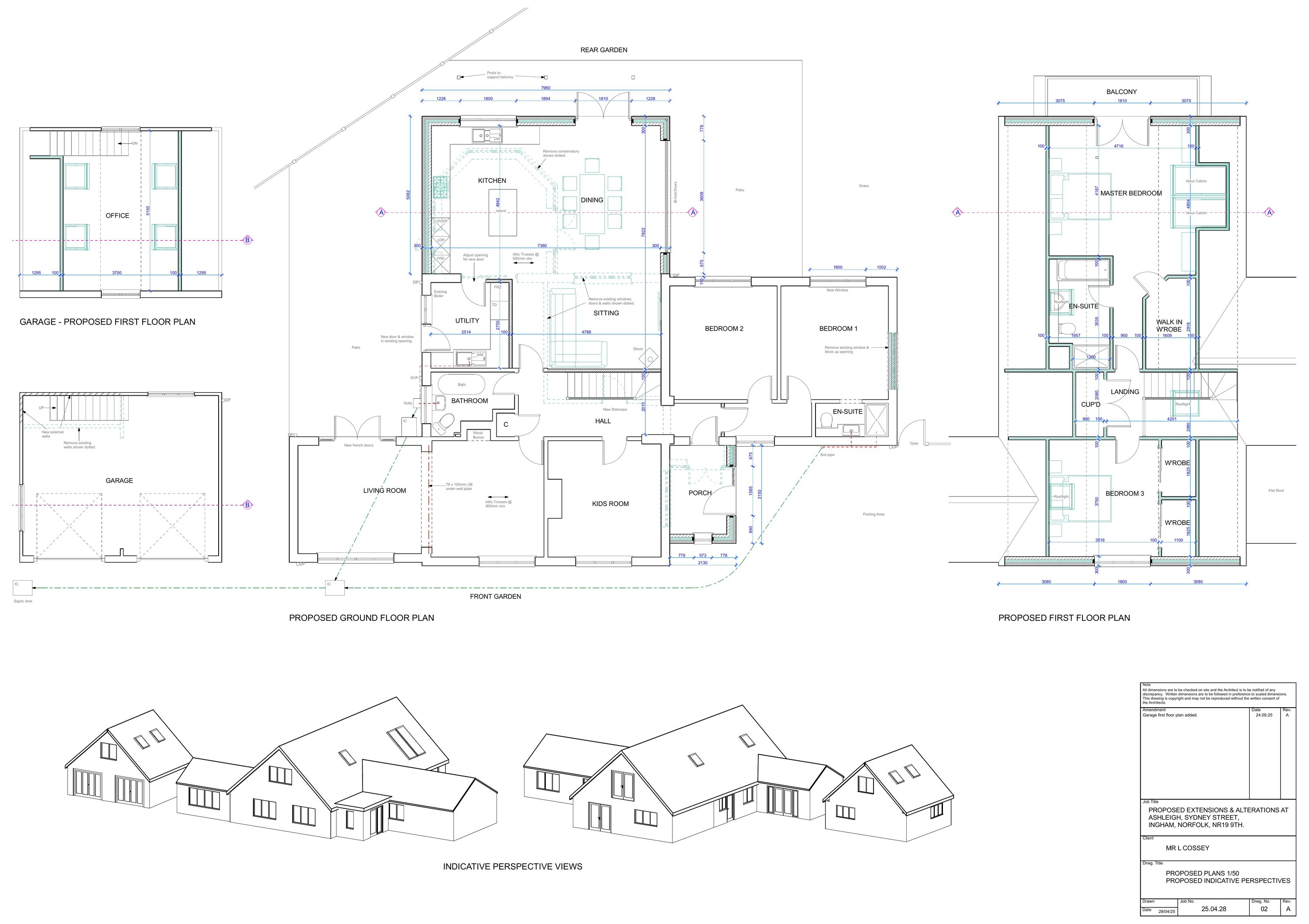
Rear extension to dwelling and, loft extension (raising height of part of roof for additional first floor accommodation), front porch and raising roof of garage to provide home office space. Change of roof tiles and render to external walls

Documents

Application form
Application Form
Not archived · Council Link
Climate emergency / net zero statement
Supporting Document
Not archived · Council Link
Existing plans, elevations, site & location plans
Plan
Not archived · Council Link
Internal drainage board response
Consultee Comment
Not archived · Council Link
Landscape response
Consultee Comment
Not archived · Council Link
Preliminary bat roost assessment
Report / Statement
Not archived · Council Link
Proposed elevations & sections
Plan
Not archived · Council Link
Revised Plan
Archived · Council Link
Superseded Document or Plan
Archived · Council Link
Tree protection plan
Plan
Not archived · Council Link
Use of ai declaration
Supporting Document
Not archived · Council Link

Take Action

Make your voice heard. Authorities need to hear from people who support new homes.

✉️ Write Email in Support View on Council Portal